Bildegalleri

Velkommen til nydelige Furulia 15B! Presentert av Eiendomsmegler Norge v/ Remi Hereide.
Eikangervåg
Nyoppført og delikat bolig med påkostede kvaliteter. Solrik og landlig beliggenhet. Usjenert treterrasse på 22 kvm.
Prisantydning2 890 000 kr
Nøkkelinfo
- Boligtype
- Tomannsbolig
- Eieform
- Eier (Selveier)
- Soverom
- 2
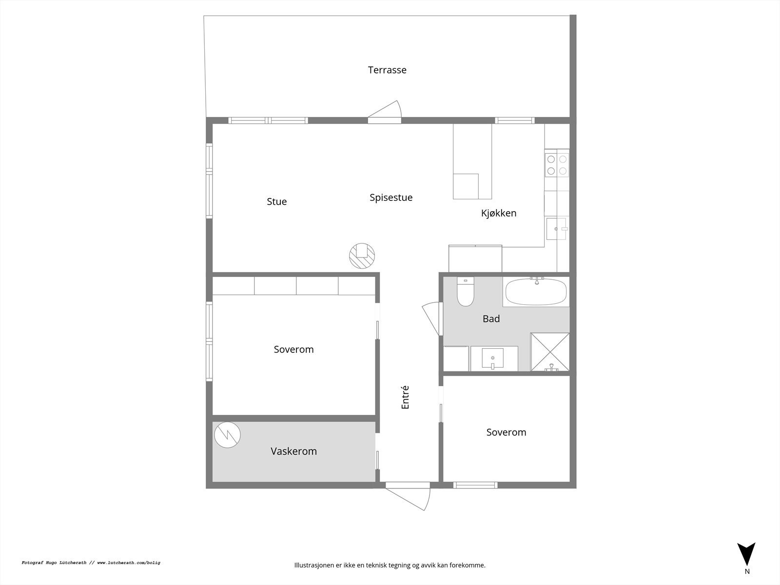
- Internt bruksareal
- 73 m² (BRA-i)
- Bruksareal
- 73 m²
- Balkong/Terrasse
- 22 m² (TBA)
- Etasje
- 1
- Byggeår
- 2025
- Rom
- 3
- Tomteareal
- 1 040 m² (eiet)
Fasiliteter
Balkong/Terrasse
Barnevennlig
Garasje/P-plass
Peis/Ildsted
Rolig
Turterreng
Balansert ventilasjon
Visning
mandag, 16. februar
16:30 – 17:30
Eiendomsmegler Norge sine visninger har påmelding. Påmelding gjøres enkelt ved å benytte knappen under. Ta kontakt med megler dersom oppsatt tidspunkt ikke passer. Det vil ikke bli avholdt visning uten påmelding, frist for påmelding er senest kl. 17.00 dagen før oppsatt visning. Husk å laste ned salgsoppgaven digitalt før visning. Velkommen til en hyggelig visning!
VisningspåmeldingOm boligen
Velkommen til visning i Furulia 15B en ny og lekker bolig med eksklusive kvaliteter! Boligen ble bygget i 2025 og er påkostet av nåværende eier og fremstår som meget delikat. Følgende kvaliteter kan nevnes:
- Eksklusivt Kvik kjøkken med integrerte hvitevarer av høy kvalitet
- Lekker fiskebeinslaminat på gulv i alle oppholdsrom
- Smart hus system
- Delikat bad med eksklusive fliser. Badekar og dusjhjørne
- Eget flislagt vaskerom
- Stort loft med gode lagringsmuligheter
Uteområdet er opparbeidet med en treterrasse mot sør. Gode solforhold med idylliske og rolige omgivelser. Stor gruslagt gårdsplass med gode parkeringsmuligheter for flere bilder.
Det er kort vei til både nærbutikk, barnehage og barneskole. Ca. 20 min kjøring til Knarvik og ca. 45 min. kjøring fra Bergen.
- Eksklusivt Kvik kjøkken med integrerte hvitevarer av høy kvalitet
- Lekker fiskebeinslaminat på gulv i alle oppholdsrom
- Smart hus system
- Delikat bad med eksklusive fliser. Badekar og dusjhjørne
- Eget flislagt vaskerom
- Stort loft med gode lagringsmuligheter
Uteområdet er opparbeidet med en treterrasse mot sør. Gode solforhold med idylliske og rolige omgivelser. Stor gruslagt gårdsplass med gode parkeringsmuligheter for flere bilder.
Det er kort vei til både nærbutikk, barnehage og barneskole. Ca. 20 min kjøring til Knarvik og ca. 45 min. kjøring fra Bergen.
NB: Knappen for å vise hele beskrivelsen har kun en visuell effekt.
NB: Knappen for å vise hele beskrivelsen har kun en visuell effekt.
Salgsoppgaven beskriver vesentlig og lovpålagt informasjon om eiendommen
Se komplett salgsoppgaveNyttige lenker
Nærområdet
Eiendomsmegler Norge Nesttun
Best der du bor
Annonsene kan være mangelfulle i forhold til lovpålagt opplysningsplikt. Før bindende avtale inngås oppfordres interessenter til å innhente komplett informasjon fra meglerforetaket, selger eller utleier.
































