Bildegalleri

Krogsveen v/ Emilio de Paoli Dunne | Romsaas Allé 22
Jessheim
Romslig 2-roms eierleilighet i 2. etasje med balkong (5 kvm.) | Trappefri adkomst | Garasje og heis | Sentralt |
Prisantydning3 100 000 kr
Nøkkelinfo
- Boligtype
- Leilighet
- Eieform
- Eier (Selveier)
- Soverom
- 1
- Internt bruksareal
- 60 m² (BRA-i)
- Bruksareal
- 65 m²
- Eksternt bruksareal
- 5 m² (BRA-e)
- Balkong/Terrasse
- 5 m² (TBA)
- Etasje
- 2
- Byggeår
- 2002
- Energimerking
- C - Lysegrønn
- Rom
- 2
- Tomteareal
- 2 866 m² (eiet)
Fasiliteter
Balkong/Terrasse
Garasje/P-plass
Heis
Kjæledyr tillatt
Offentlig vann/kloakk
Parkett
Sentralt
Om boligen
Attraktiv beliggenhet i gangavstand til Jessheim sentrum og alt det har å by på.
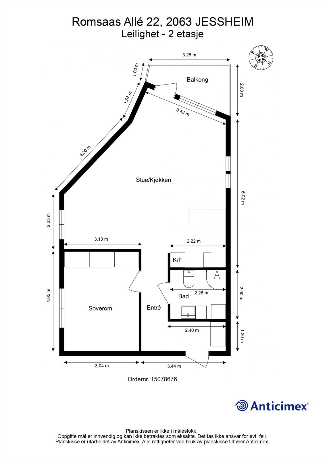
Romslig og prisgunstig 2-roms eierleilighet i 2. etasje med stort potensial og fornuftig planløsning som består av entré/gang, bad, soverom og åpen kjøkken- og stueløsning. Boligen holder en gjennomgående enkel standard, stort potensial og muligheter for å sette sitt eget preg. Fra stuen er det det direkte utgang til solrik balkong på ca. 5 kvm. som blir en naturlig forlengelse av stuen på sommertid, rolig og tilbaketrukket beliggenhet i akkurat passe avstand fra sentrum. Perfekt førstegangskjøp eller utleieobjekt.
Parkeringsplass i garasjeanlegg. Kjellerbod på ca. 5 kvm.
Velkommen!
Romslig og prisgunstig 2-roms eierleilighet i 2. etasje med stort potensial og fornuftig planløsning som består av entré/gang, bad, soverom og åpen kjøkken- og stueløsning. Boligen holder en gjennomgående enkel standard, stort potensial og muligheter for å sette sitt eget preg. Fra stuen er det det direkte utgang til solrik balkong på ca. 5 kvm. som blir en naturlig forlengelse av stuen på sommertid, rolig og tilbaketrukket beliggenhet i akkurat passe avstand fra sentrum. Perfekt førstegangskjøp eller utleieobjekt.
Parkeringsplass i garasjeanlegg. Kjellerbod på ca. 5 kvm.
Velkommen!
NB: Knappen for å vise hele beskrivelsen har kun en visuell effekt.
NB: Knappen for å vise hele beskrivelsen har kun en visuell effekt.
Salgsoppgaven beskriver vesentlig og lovpålagt informasjon om eiendommen
Se komplett salgsoppgaveNyttige lenker
Nærområdet
Krogsveen Jessheim
Verdien av en god megler.
Annonseinformasjon
| FINN-kode | 449774323 |
|---|---|
| Sist endret | 06. feb. 2026 08:12 |
| Referanse | KR63.2611 |
Annonsene kan være mangelfulle i forhold til lovpålagt opplysningsplikt. Før bindende avtale inngås oppfordres interessenter til å innhente komplett informasjon fra meglerforetaket, selger eller utleier.

































