Bildegalleri

Velkommen til Elgtråkket 1C! Lys og trivelig 4-roms leilighet i rolige og hyggelige Blystadlia.
Blystadlia
Lys og gjennomgående 4-roms | Solrik balkong på 19 kvm | Garasjeplass | Vaskerom | Populært og barnevennlig
Prisantydning3 950 000 kr
Nøkkelinfo
- Boligtype
- Leilighet
- Eieform
- Andel
- Soverom
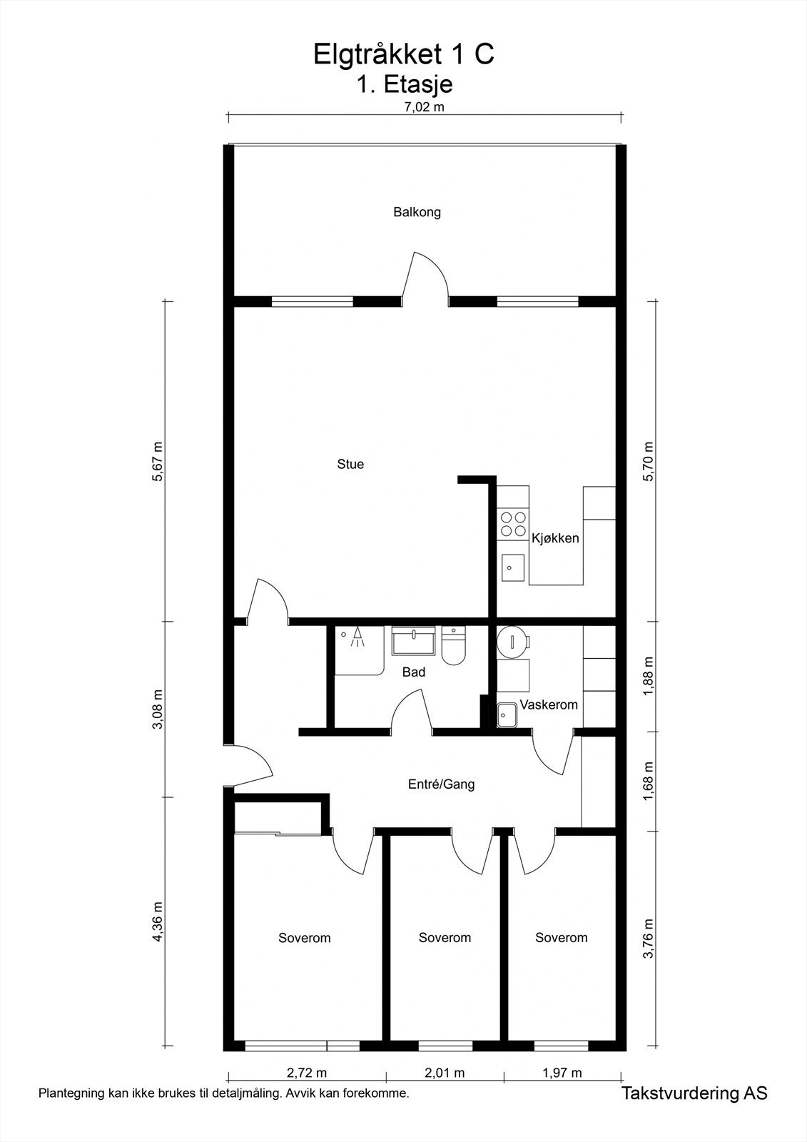
- 3
- Internt bruksareal
- 94 m² (BRA-i)
- Bruksareal
- 98 m²
- Eksternt bruksareal
- 4 m² (BRA-e)
- Balkong/Terrasse
- 19 m² (TBA)
- Etasje
- 1
- Byggeår
- 1978
- Energimerking
- E - Oransje
- Rom
- 4
- Tomteareal
- 28 567 m² (eiet)
Fasiliteter
Balkong/Terrasse
Barnevennlig
Bredbåndstilknytning
Garasje/P-plass
Kjæledyr tillatt
Ingen gjenboere
Kabel-TV
Offentlig vann/kloakk
Rolig
Sentralt
Utsikt
Vaktmester-/vektertjeneste
Turterreng
Om boligen
Velkommen til Elgtråkket 1C! Lys og trivelig 4-roms leilighet i rolige og hyggelige Blystadlia, perfekt for deg som vil bo med nærhet til marka, men samtidig sentralt. Leiligheten byr på en god planløsning med praktisk kjøkken, tre soverom, bod, flislagt bad, romslig stue med utgang til balkong på 19 kvm og flott utsikt. Beliggenheten gir kort vei til barnehager, skoler, butikker og kollektivtransport, samtidig som tur- og friluftsområder ligger rett utenfor døren.
- Lys og romslig stue
- Solrik balkong på 19 kvm med utsikt
- Gode solforhold og hyggelig utsyn
- Tre soverom
- Eget praktisk vaskerom
- Garasjeplass
- Kort vei til barnehage, skole og butikk.
- Populært og barnevennlig boligområde i Blystadlia
- Området har nærhet til Østmarka
- Kort vei til Sandbekken og Løvenstad
- Lys og romslig stue
- Solrik balkong på 19 kvm med utsikt
- Gode solforhold og hyggelig utsyn
- Tre soverom
- Eget praktisk vaskerom
- Garasjeplass
- Kort vei til barnehage, skole og butikk.
- Populært og barnevennlig boligområde i Blystadlia
- Området har nærhet til Østmarka
- Kort vei til Sandbekken og Løvenstad
NB: Knappen for å vise hele beskrivelsen har kun en visuell effekt.
NB: Knappen for å vise hele beskrivelsen har kun en visuell effekt.
Salgsoppgaven beskriver vesentlig og lovpålagt informasjon om eiendommen
Se komplett salgsoppgaveNærområdet
Aktiv Oslo Nord
Annonseinformasjon
| FINN-kode | 449723202 |
|---|---|
| Sist endret | 05. feb. 2026 21:24 |
| Referanse | 1104260007 |
Annonsene kan være mangelfulle i forhold til lovpålagt opplysningsplikt. Før bindende avtale inngås oppfordres interessenter til å innhente komplett informasjon fra meglerforetaket, selger eller utleier.






























