Bildegalleri

EiendomsMegler 1 v/Morten Høvik har gleden av å presentere Myrsetveien 176! Foto: EFKT, Vilde Dahl
Enebolig i landlige omgivelser - Tomt på 4 mål - Garasje / lagerbygg 160kvm
Prisantydning2 750 000 kr
Nøkkelinfo
- Boligtype
- Enebolig
- Eieform
- Eier (Selveier)
- Soverom
- 3
- Internt bruksareal
- 183 m² (BRA-i)
- Bruksareal
- 391 m²
- Eksternt bruksareal
- 208 m² (BRA-e)
- Balkong/Terrasse
- 116 m² (TBA)
- Byggeår
- 1981
- Energimerking
- F - Gul
- Rom
- 4
- Tomteareal
- 4 003 m² (eiet)
Visning
tirsdag, 17. februar
16:30 – 17:30
Våre visninger har påmelding. Dette gjør vi for å kunne yte bedre service for våre kunder. Verdifullt for boligkjøper og for oss. Vi anbefaler at salgsoppgaven lastes ned digitalt før visning, og ring oss gjerne på forhånd for spørsmål om boligen. Passer ikke angitt tidspunkt, ta kontakt så finner vi en løsning. Skulle det mot formodning ikke være påmeldte til angitt visningstidspunkt vil ikke visning bli gjennomført.
Om boligen
EiendomsMegler 1 v/Morten Høvik har gleden av å presentere Myrsetveien 176!
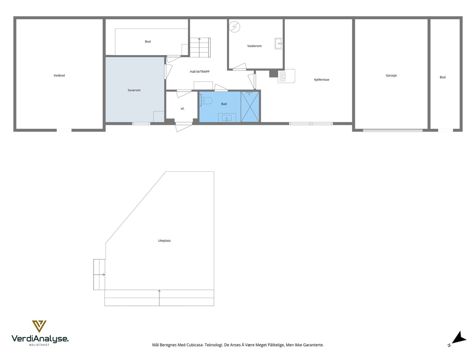
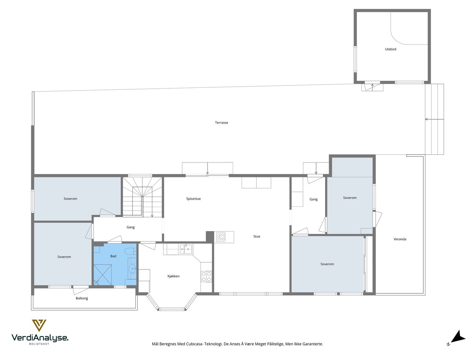
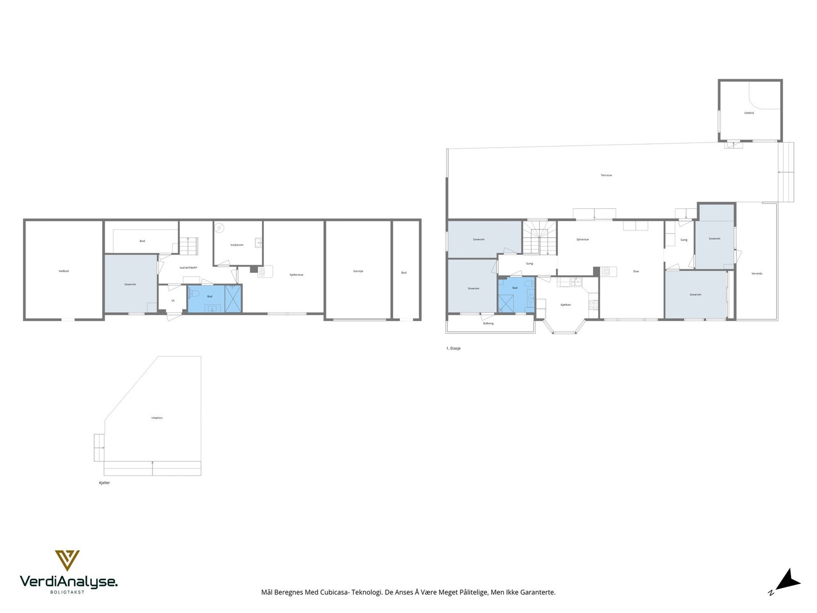
Pen enebolig i landlige omgivelser på Averøy. Eiendommen har stor tomt på ca 4 mål og det er oppført uthus på 14 kvm og lagergarasje (bod og garasje) på 160 kvm på eiendommen. Boligen er oppført i 1981, tilbygget med 2 arbeidsrom og karnapp i senere år og inneholder på bl.a stue, kjøkken, 3 soverom, 2 arbeidsrom, kjellerstue (ikke omsøkt), 2 bad, vaskerom, bod og gangareal. Fra stue er det utgang til solrik sydøstvendt terrasse. Fra soverom er det utgang til balkong og fra arbeidsrom i 1. etasje er det utgang til balkong mot sydvest. Foran boligen har man koselig oppbygd uteplass. Det er god plass for parkering på egen tomt.
Velkommen til visning!
Pen enebolig i landlige omgivelser på Averøy. Eiendommen har stor tomt på ca 4 mål og det er oppført uthus på 14 kvm og lagergarasje (bod og garasje) på 160 kvm på eiendommen. Boligen er oppført i 1981, tilbygget med 2 arbeidsrom og karnapp i senere år og inneholder på bl.a stue, kjøkken, 3 soverom, 2 arbeidsrom, kjellerstue (ikke omsøkt), 2 bad, vaskerom, bod og gangareal. Fra stue er det utgang til solrik sydøstvendt terrasse. Fra soverom er det utgang til balkong og fra arbeidsrom i 1. etasje er det utgang til balkong mot sydvest. Foran boligen har man koselig oppbygd uteplass. Det er god plass for parkering på egen tomt.
Velkommen til visning!
NB: Knappen for å vise hele beskrivelsen har kun en visuell effekt.
NB: Knappen for å vise hele beskrivelsen har kun en visuell effekt.
Salgsoppgaven beskriver vesentlig og lovpålagt informasjon om eiendommen
Se komplett salgsoppgaveNyttige lenker
Nærområdet
EiendomsMegler 1 Kristiansund
Vi loser deg trygt gjennom hele boligsalget
Annonseinformasjon
| FINN-kode | 449711659 |
|---|---|
| Sist endret | 10. feb. 2026 22:36 |
| Referanse | 17260014 |
Annonsene kan være mangelfulle i forhold til lovpålagt opplysningsplikt. Før bindende avtale inngås oppfordres interessenter til å innhente komplett informasjon fra meglerforetaket, selger eller utleier.






























