Bildegalleri

En moderne og stilig eierleilighet med en flott hjørnebeliggenhet i 1. etasje i bygget fra 2021
Tønsberg/Kaldnes
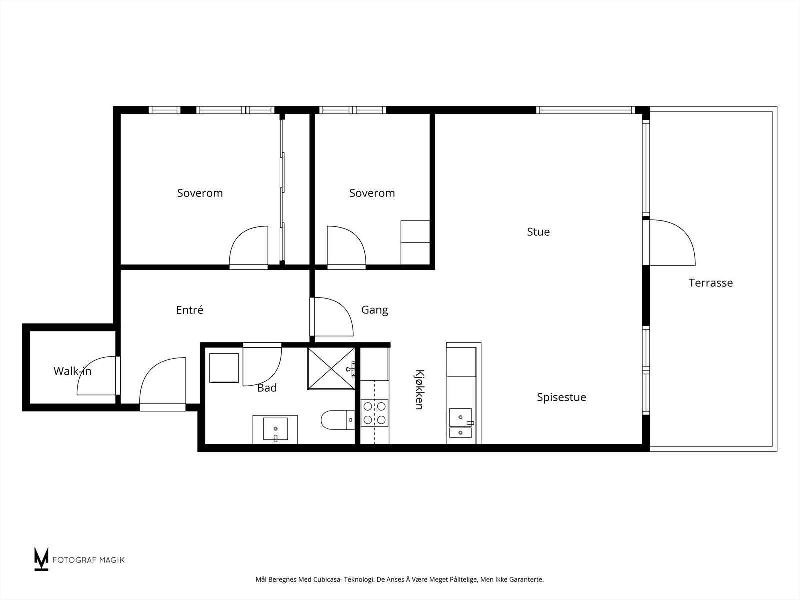
Lys, praktisk og moderne eierleilighet med 2 soverom. Fin uteplass. Sentralt beliggende
Prisantydning5 890 000 kr
Nøkkelinfo
- Boligtype
- Leilighet
- Eieform
- Eier (Selveier)
- Soverom
- 2
- Internt bruksareal
- 76 m² (BRA-i)
- Bruksareal
- 81 m²
- Eksternt bruksareal
- 5 m² (BRA-e)
- Balkong/Terrasse
- 18 m² (TBA)
- Etasje
- 1
- Byggeår
- 2021
- Energimerking
- B - Lysegrønn
- Rom
- 3
- Tomteareal
- 2 406 m² (eiet)
Fasiliteter
Balkong/Terrasse
Heis
Offentlig vann/kloakk
Sentralt
Balansert ventilasjon
Visning
lørdag, 14. februar
12:00 – 13:00
For å delta på visning, ber vi om at du melder deg på. Da sikrer vi at du får nødvendig informasjon og at det er satt av tilstrekkelig med tid. Kontakt megler dersom annet tidspunkt ønskes. Husk å lese salgsoppgaven før visningen, så du stiller forberedt. NB. Visning utgår dersom det ikke er noen påmeldte.
Ønsker du kun å bli holdt orientert, kan du fra eiendommens hjemmeside få varsel om solgtpris, eller kontakte megler.
VisningspåmeldingOm boligen
Stilig eierleilighet i 1. etasje med hjørnebeliggenhet, bygget i 2021. Leiligheten har en vestvendt, delvis overbygget markterrasse på 18 kvm med impregnert gulv og rekkverk i galvanisert jern. Lys og moderne, med vannbåren varme i stue/kjøkken, soverom og gang. Leiligheten har praktiske lagringsmuligheter, 2 soverom og et lekkert bad med dusjhjørne, servantskap og opplegg for vaskemaskin. Åpen stue/kjøkkenløsning med moderne kjøkkeninnredning. Kjøleskap, oppvaskmaskin, platetopp og komfyr følger med.
Muligheter for å leie parkering i parkeringskjeller hos Onepark med adkomst til blokka. (se hjemmesiden for nøyaktig priser og tilgjengelighet) Fra leiligheten er det kort vei til alt du trenger i hverdagen, kun en liten rusletur unna finner du den store matvarebutikken på "hjørnet".
Muligheter for å leie parkering i parkeringskjeller hos Onepark med adkomst til blokka. (se hjemmesiden for nøyaktig priser og tilgjengelighet) Fra leiligheten er det kort vei til alt du trenger i hverdagen, kun en liten rusletur unna finner du den store matvarebutikken på "hjørnet".
NB: Knappen for å vise hele beskrivelsen har kun en visuell effekt.
NB: Knappen for å vise hele beskrivelsen har kun en visuell effekt.
Salgsoppgaven beskriver vesentlig og lovpålagt informasjon om eiendommen
Se komplett salgsoppgaveNyttige lenker
Nærområdet
Krogsveen Tønsberg
Verdien av en god megler.
Annonseinformasjon
| FINN-kode | 449698195 |
|---|---|
| Sist endret | 06. feb. 2026 10:14 |
| Referanse | KR21.269 |
Annonsene kan være mangelfulle i forhold til lovpålagt opplysningsplikt. Før bindende avtale inngås oppfordres interessenter til å innhente komplett informasjon fra meglerforetaket, selger eller utleier.

























































