Bildegalleri

Aktiv Eiendomsmegling v/ Erik Ulseth ønsker velkommen til Skytterveien 28B! Foto: André Tomas Ormset-Paredes
Moderne leilighet med balkong, utsikt og parkering, sentralt beliggende i Myra med nærhet til natur og byliv.
Prisantydning1 190 000 kr
Nøkkelinfo
- Boligtype
- Leilighet
- Eieform
- Andel
- Soverom
- 2
- Internt bruksareal
- 52 m² (BRA-i)
- Bruksareal
- 52 m²
- Balkong/Terrasse
- 13 m² (TBA)
- Etasje
- 2
- Byggeår
- 1975
- Energimerking
- F - Oransje
- Rom
- 3
- Tomteareal
- 5 002 m² (eiet)
Fasiliteter
Balkong/Terrasse
Barnevennlig
Garasje/P-plass
Rolig
Utsikt
Turterreng
Visning
onsdag, 18. februar
17:00 – 17:30
Ved annonsert visning er det viktig at du melder deg på visningen ved å bruke visningspåmeldingsknappen eller kontakter megler. Annonserte visninger hvor det ikke er noen påmeldte innen kl. 16.00 dagen før visningsdagen vil ikke bli avholdt.
For visninger utover dette, ta direkte kontakt med megler.
VisningspåmeldingOm boligen
Aktiv Eiendomsmegling v/ Maria A. Klinge ønsker velkommen til denne flotte leiligheten i Myra i Kristiansund! Denne 2-roms leiligheten ligger i Skytterveien, et område kjent for sin nærhet til sentrum og vakre turterreng som Kringsjå, Klubba og Vanndamman. Her finner du gode bussforbindelser og et rolig nabolag med kort vei til alle nødvendige fasiliteter.
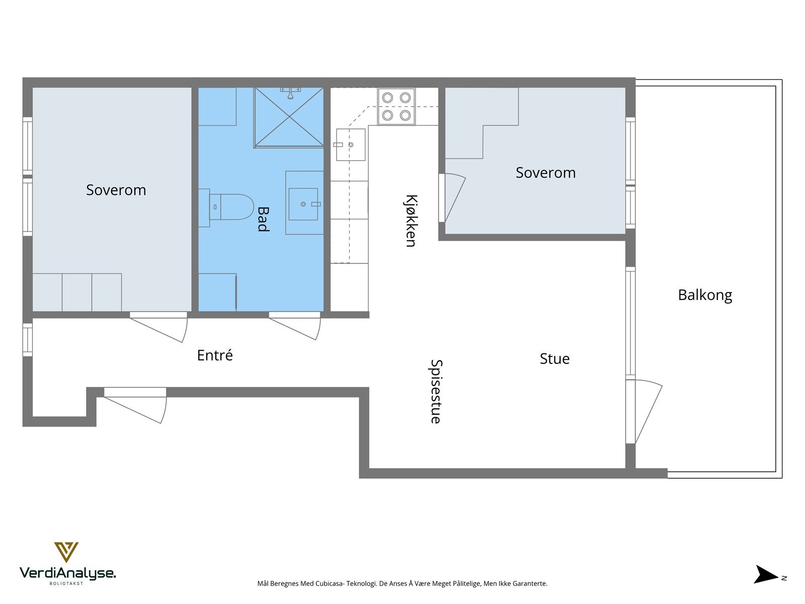
Leiligheten ligger i 2. etasje og har et bruksareal på 52 m². Den ble omfattende renovert i 2019/2020 med nytt kjøkken, bad, elektrisk anlegg og innvendige overflater. Arealeffektiv planløsning inkluderer entré, stue/kjøkken, bad og to soverom. Fra stuen har du utgang til en sørvestvendt balkong. Leiligheten disponerer egen parkeringsplass på borettslagets tomt.
Leiligheten ligger i 2. etasje og har et bruksareal på 52 m². Den ble omfattende renovert i 2019/2020 med nytt kjøkken, bad, elektrisk anlegg og innvendige overflater. Arealeffektiv planløsning inkluderer entré, stue/kjøkken, bad og to soverom. Fra stuen har du utgang til en sørvestvendt balkong. Leiligheten disponerer egen parkeringsplass på borettslagets tomt.
NB: Knappen for å vise hele beskrivelsen har kun en visuell effekt.
NB: Knappen for å vise hele beskrivelsen har kun en visuell effekt.
Salgsoppgaven beskriver vesentlig og lovpålagt informasjon om eiendommen
Se komplett salgsoppgaveNærområdet
Aktiv Kristiansund
Annonseinformasjon
| FINN-kode | 449697656 |
|---|---|
| Sist endret | 11. feb. 2026 21:54 |
| Referanse | 1601260003 |
Annonsene kan være mangelfulle i forhold til lovpålagt opplysningsplikt. Før bindende avtale inngås oppfordres interessenter til å innhente komplett informasjon fra meglerforetaket, selger eller utleier.
































