Bildegalleri

EIE eiendomsmegling v/ Tobias Tisthammer Antonsen presenterer Grevletunet 5! Foto: Blaatime/ Jeanett Teigen
Stavern
Moderne og innbydende andelsleilighet med attraktiv beliggenhet! 2 gode soverom | 2 bad | Carport | IN ordning
Prisantydning5 590 000 kr
Nøkkelinfo
- Boligtype
- Leilighet
- Eieform
- Andel
- Soverom
- 2
- Internt bruksareal
- 91 m² (BRA-i)
- Bruksareal
- 96 m²
- Eksternt bruksareal
- 5 m² (BRA-e)
- Byggeår
- 2023
- Energimerking
- A - Rød
- Tomteareal
- 2 070 m² (eiet)
Fasiliteter
Barnevennlig
Balkong/Terrasse
Garasje/P-plass
Kabel-TV
Heis
Offentlig vann/kloakk
Parkett
Turterreng
Moderne
Rolig
Bademulighet
Visning
søndag, 15. februar
11:30 – 12:15
Alle våre visninger har påmelding. På denne måten sikrer vi at megler har god oversikt og tid til å imøtekomme alle interessenter på beste måte.
Påmelding til visning må gjøres senest innen kl.15.00 dagen før. Visninger uten påmelding vil ikke bli avholdt.
Kontakt også gjerne i forkant av visning dersom du har spørsmål.
Om boligen
Velkommen til Grevletunet 5 - Grevletunet borettslag
En moderne og lettstelt 3-roms andelsleilighet med populær beliggenhet nær Stavern og flotte turområder! Området byr på rolige omgivelser og fine turmuligheter, blant annet langs den populære kyststien, som er velegnet for hyggelige spaserturer året rundt.
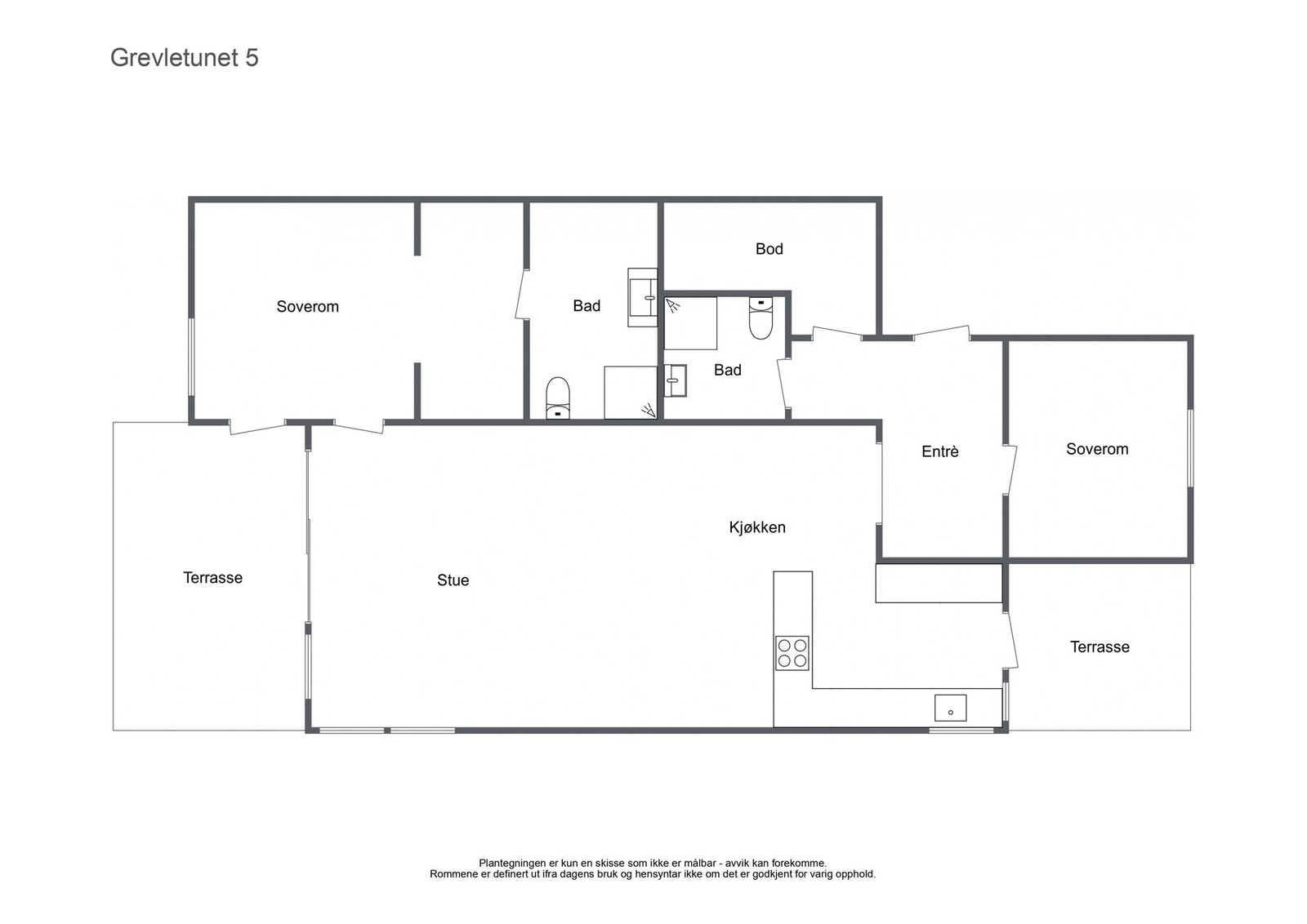
Leiligheten er "ny" og ligger i byggets 1. etasje med trinnfri adkomst, noe som gir enkel og komfortabel tilgang. Det er gjennomgående god standard og en god planløsning som består av en gang, innvendig bod, flislagt bad, delikat kjøkken med integrerte hvitevarer, samt en romslig stue med trivelig utsyn. En egen "masteravdeling" med soverom, plass til garderobe og eget flislagt bad gir komfort i hverdagen.
Dette er en bolig som passer utmerket for deg som ønsker en moderne, oversiktlig og lettstelt leilighet i rolige omgivelser.
Leiligheten annonseres uten fellesgjeld, se pkt "fellesgjeld" i salgsoppgaven eller kontakt megler for spørsmål.
Velkommen til visning i Grevletunet!
En moderne og lettstelt 3-roms andelsleilighet med populær beliggenhet nær Stavern og flotte turområder! Området byr på rolige omgivelser og fine turmuligheter, blant annet langs den populære kyststien, som er velegnet for hyggelige spaserturer året rundt.
Leiligheten er "ny" og ligger i byggets 1. etasje med trinnfri adkomst, noe som gir enkel og komfortabel tilgang. Det er gjennomgående god standard og en god planløsning som består av en gang, innvendig bod, flislagt bad, delikat kjøkken med integrerte hvitevarer, samt en romslig stue med trivelig utsyn. En egen "masteravdeling" med soverom, plass til garderobe og eget flislagt bad gir komfort i hverdagen.
Dette er en bolig som passer utmerket for deg som ønsker en moderne, oversiktlig og lettstelt leilighet i rolige omgivelser.
Leiligheten annonseres uten fellesgjeld, se pkt "fellesgjeld" i salgsoppgaven eller kontakt megler for spørsmål.
Velkommen til visning i Grevletunet!
NB: Knappen for å vise hele beskrivelsen har kun en visuell effekt.
NB: Knappen for å vise hele beskrivelsen har kun en visuell effekt.
Salgsoppgaven beskriver vesentlig og lovpålagt informasjon om eiendommen
Se komplett salgsoppgaveNyttige lenker
Nærområdet
EIE eiendomsmegling Larvik & Lågendalen
Annonseinformasjon
| FINN-kode | 449690627 |
|---|---|
| Sist endret | 07. feb. 2026 14:39 |
| Referanse | 69260007 |
Annonsene kan være mangelfulle i forhold til lovpålagt opplysningsplikt. Før bindende avtale inngås oppfordres interessenter til å innhente komplett informasjon fra meglerforetaket, selger eller utleier.


































