Bildegalleri

Nordvik Bolig v/Michael Boxill Knutsen har gleden av å presentere Siriskjeret 26! Foto: Kristine Tofte.
Stavanger Øst
Moderne og tiltalende leilighet i 1. etasje med stor solrik terrasse, fast parkering m/elbillader og felles takterrasse
Prisantydning3 750 000 kr
Nøkkelinfo
- Boligtype
- Leilighet
- Eieform
- Eier (Selveier)
- Soverom
- 1
- Internt bruksareal
- 49 m² (BRA-i)
- Bruksareal
- 54 m²
- Eksternt bruksareal
- 5 m² (BRA-e)
- Balkong/Terrasse
- 22 m² (TBA)
- Etasje
- 1
- Byggeår
- 2013
- Energimerking
- B - Mørkegrønn
- Rom
- 2
- Tomteareal
- 1 578 m² (eiet)
Fasiliteter
Takterrasse
Balkong/Terrasse
Barnevennlig
Bredbåndstilknytning
Garasje/P-plass
Kabel-TV
Offentlig vann/kloakk
Parkett
Rolig
Sentralt
Vaktmester-/vektertjeneste
Turterreng
Lademulighet
Balansert ventilasjon
Visning
torsdag, 12. februar
16:30 – 17:15
Alle våre visninger har påmelding. På denne måten sikrer vi at megler har god oversikt og tid til å imøtekomme alle interessenter. Meld deg på visning ved å trykke på lenken visningspåmelding.
VisningspåmeldingOm boligen
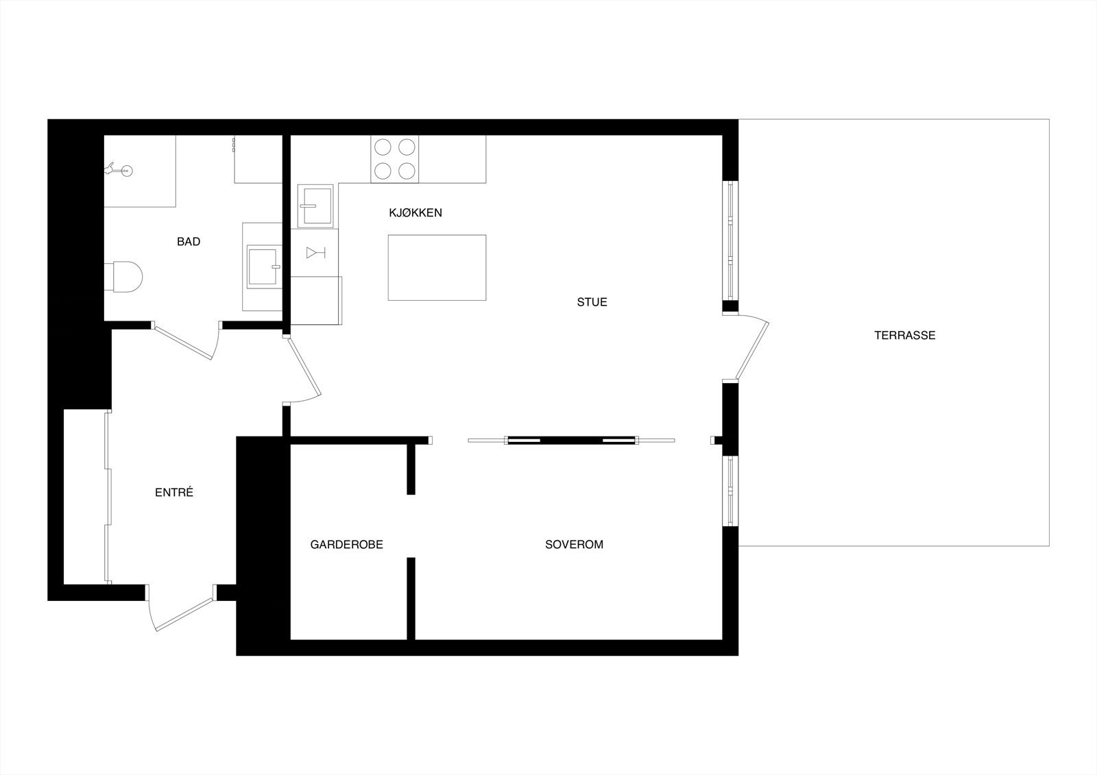
Sirikjeret 26 er en attraktiv eiendom beliggende på Storhaug i et populært og urbant boligområde i Stavanger. Området kjennetegnes av nærhet til sjø, badeplasser og flotte tur og rekreasjonsmuligheter, samtidig som sentrum, kaféer, restauranter og servicetilbud er innen kort gangavstand. Eiendommen har gode solforhold og ligger i et veletablert nærmiljø med en god kombinasjon av rolig atmosfære og bynær beliggenhet. Et svært ettertraktet område for både unge og etablerte kjøpere.
- Åpen stue-/kjøkkenløsning
- Ett soverom med tilhørende walk in closet
- Tidløst bad med vannbåren gulvvarme
- Kjellerbod for ekstra oppbevaring
- Stor terrasse på ca. 22 kvm med gode solforhold
- Vannbåren varme til radiatorovn i stue
- Fast parkering i lukket anlegg med elbillader
NB: Knappen for å vise hele beskrivelsen har kun en visuell effekt.
NB: Knappen for å vise hele beskrivelsen har kun en visuell effekt.
Salgsoppgaven beskriver vesentlig og lovpålagt informasjon om eiendommen
Se komplett salgsoppgaveNyttige lenker
Nærområdet
Nordvik Stavanger
Vi vet hva det er verdt
Annonseinformasjon
| FINN-kode | 449679650 |
|---|---|
| Sist endret | 05. feb. 2026 17:30 |
| Referanse | 43-0020/26 |
Annonsene kan være mangelfulle i forhold til lovpålagt opplysningsplikt. Før bindende avtale inngås oppfordres interessenter til å innhente komplett informasjon fra meglerforetaket, selger eller utleier.



































