Bildegalleri

DNB Eiendom v/Tobias Sture har gleden av å presentere Auglandsveien 34
Auglandsveien
Enebolig med stor tomt på 998 m² og meget sentral/barnevennlig beliggenhet | Tidl. rammetilatelse for 2 eneboliger
Prisantydning3 850 000 kr
Nøkkelinfo
- Boligtype
- Enebolig
- Eieform
- Eier (Selveier)
- Soverom
- 4
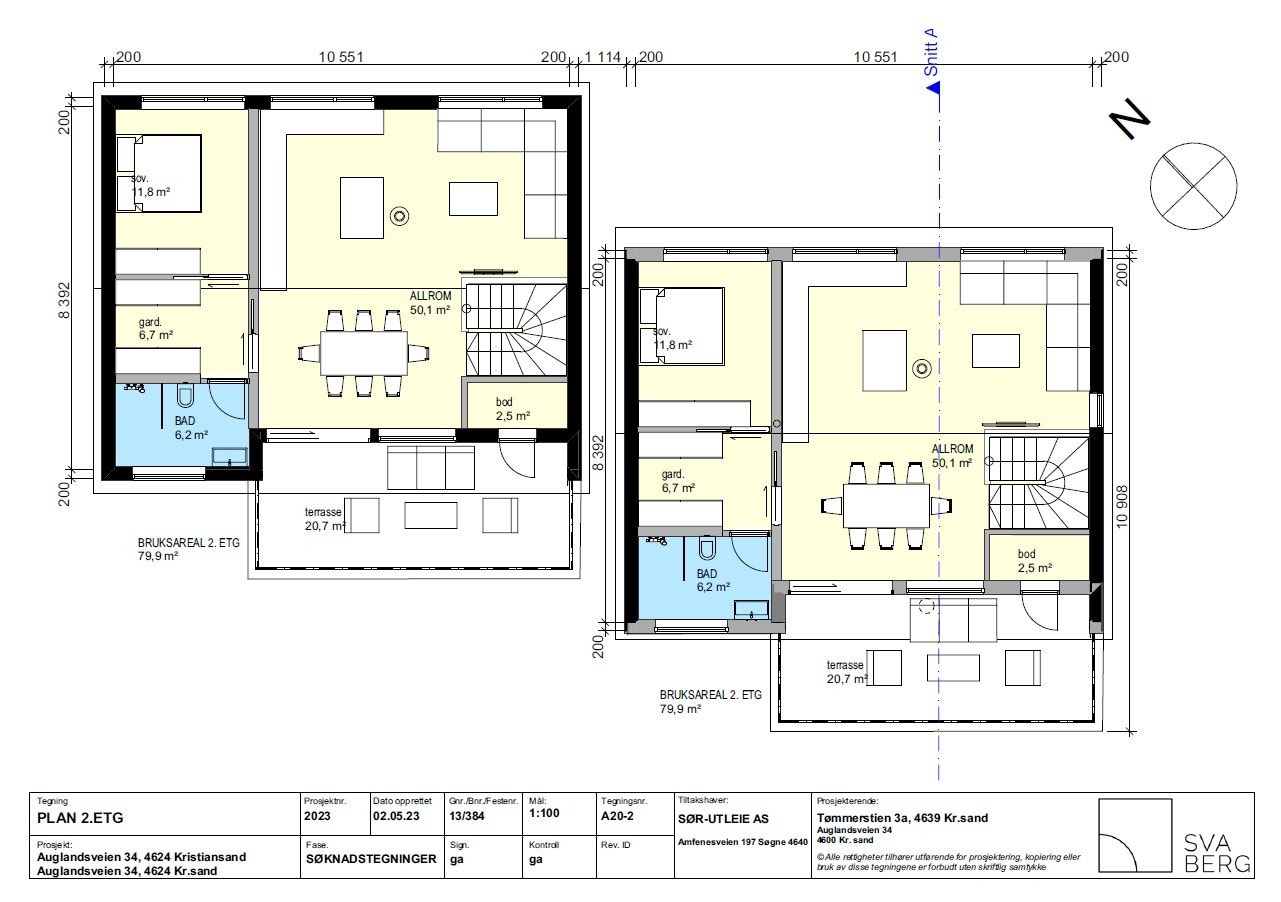
- Internt bruksareal
- 138 m² (BRA-i)
- Bruksareal
- 151 m²
- Eksternt bruksareal
- 13 m² (BRA-e)
- Etasje
- 2
- Byggeår
- 1960
- Rom
- 6
- Tomteareal
- 998 m² (eiet)
Fasiliteter
Barnevennlig
Garasje/P-plass
Hage
Kjæledyr tillatt
Offentlig vann/kloakk
Rolig
Sentralt
Utvidelsesmuligheter
Turterreng
Visning
torsdag, 12. februar
15:00 – 16:00
Velkommen til visning! Meld deg på ved å trykke "visningspåmelding" i våre boligannonser. Visning med megler til stede vil ikke bli avholdt uten påmeldinger. Ta gjerne kontakt med megler i forkant av visningen om du har spørsmål.
VisningspåmeldingOm boligen
DNB Eiendom v/Tobias Sture har gleden av å presentere Auglandsveien 34 - en svært solrik og sentralt beliggende enebolig med romslig tomt på hele 998 m². Det har tidligere blitt gitt rammetillatelse på oppføring av 2 boliger på tomten. Det foreligger også tegninger for oppføring av 6-mannsbolig.
Boligen ligger sentralt til i Indre Vågsbygd, i ett barnevennlig og rolig område med kort avstand til det meste av det man trenger i hverdagen som AMFI Vågsbygd med et rikt utvalg av butikker, dagligvarebutikker, skole, barnehager, turmuligheter i Vågsbygdskogen, kirke, samt kort vei til sjøen og badeplasser.
Sykkelavstand til sentrum av Kristiansand, og bussholdeplass like ved med direktebuss til UiA og hyppige avganger til sentrum.
Velkommen til et meget spennende prosjekt midt i Vågsbygd!
Boligen ligger sentralt til i Indre Vågsbygd, i ett barnevennlig og rolig område med kort avstand til det meste av det man trenger i hverdagen som AMFI Vågsbygd med et rikt utvalg av butikker, dagligvarebutikker, skole, barnehager, turmuligheter i Vågsbygdskogen, kirke, samt kort vei til sjøen og badeplasser.
Sykkelavstand til sentrum av Kristiansand, og bussholdeplass like ved med direktebuss til UiA og hyppige avganger til sentrum.
Velkommen til et meget spennende prosjekt midt i Vågsbygd!
NB: Knappen for å vise hele beskrivelsen har kun en visuell effekt.
NB: Knappen for å vise hele beskrivelsen har kun en visuell effekt.
Salgsoppgaven beskriver vesentlig og lovpålagt informasjon om eiendommen
Se komplett salgsoppgaveNyttige lenker
Nærområdet
DNB Eiendom AS
Fra hjem til hjem
Annonseinformasjon
| FINN-kode | 449673943 |
|---|---|
| Sist endret | 06. feb. 2026 13:03 |
| Referanse | 665260016 |
Annonsene kan være mangelfulle i forhold til lovpålagt opplysningsplikt. Før bindende avtale inngås oppfordres interessenter til å innhente komplett informasjon fra meglerforetaket, selger eller utleier.

















