Bildegalleri

Velkommen til Bergsligata 3 B. Romslig selveier i klassisk bygård | 3 soverom | Høy 1.etasje | God takhøyde & store vindusflater | 2 boder
Ila
Romslig selveier i klassisk bygård | 3 soverom | Høy 1.etasje | God takhøyde & store vindusflater | 3 boder
Prisantydning3 990 000 kr
Nøkkelinfo
- Boligtype
- Leilighet
- Eieform
- Eier (Selveier)
- Soverom
- 3
- Internt bruksareal
- 78 m² (BRA-i)
- Bruksareal
- 90 m²
- Eksternt bruksareal
- 12 m² (BRA-e)
- Etasje
- 1
- Byggeår
- 1911
- Energimerking
- G - Rød
- Rom
- 4
- Tomteareal
- 437 m² (eiet)
Fasiliteter
Kabel-TV
Offentlig vann/kloakk
Turterreng
Sentralt
Bredbåndstilknytning
Visning
mandag, 16. februar
16:00 – 16:45
Våre visninger har påmelding. Dette gjør vi for å kunne yte bedre service for våre kunder. Verdifullt for boligkjøper og for oss. Vi anbefaler at salgsoppgaven lastes ned digitalt før visning, og ring oss gjerne på forhånd for spørsmål om boligen. Passer ikke angitt tidspunkt, ta kontakt så finner vi en løsning. Skulle det mot formodning ikke være påmeldte til angitt visningstidspunkt vil ikke visning bli gjennomført.
Om boligen
Visningstidspunkt må avtales direkte med megler
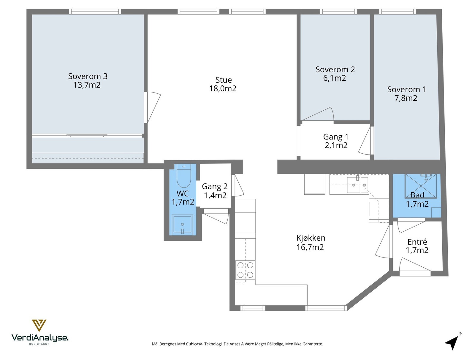
Velkommen til Bergsligata 3 B. Denne romslige selveierleiligheten i høy 1.etasje kan by på blant annet:
- Praktisk planløsning med en sjarmerende stue på ca. 18 kvm
- Stilrent kjøkken med hvitevarer som medfølger handelen (TG1)
- Flislagt bad med dusjkabinett & varme i gulv
- Tre soverom på henholdsvis ca. 14, 8 & 6 kvm
- Tre store boder med rikelig lagringsplass
- Koselig bakgård med sitteplasser
- Sentral & attraktiv beliggenhet i populære Ila, med nærhet til alt sentrum & Bymarka har å by på
Velkommen!
Velkommen til Bergsligata 3 B. Denne romslige selveierleiligheten i høy 1.etasje kan by på blant annet:
- Praktisk planløsning med en sjarmerende stue på ca. 18 kvm
- Stilrent kjøkken med hvitevarer som medfølger handelen (TG1)
- Flislagt bad med dusjkabinett & varme i gulv
- Tre soverom på henholdsvis ca. 14, 8 & 6 kvm
- Tre store boder med rikelig lagringsplass
- Koselig bakgård med sitteplasser
- Sentral & attraktiv beliggenhet i populære Ila, med nærhet til alt sentrum & Bymarka har å by på
Velkommen!
NB: Knappen for å vise hele beskrivelsen har kun en visuell effekt.
NB: Knappen for å vise hele beskrivelsen har kun en visuell effekt.
Salgsoppgaven beskriver vesentlig og lovpålagt informasjon om eiendommen
Se komplett salgsoppgaveNyttige lenker
Nærområdet
EiendomsMegler 1 Trondheim sentrum, Søndre gate
Vi loser deg trygt gjennom hele boligsalget
Annonseinformasjon
| FINN-kode | 449664433 |
|---|---|
| Sist endret | 06. feb. 2026 13:47 |
| Referanse | 39260004 |
Annonsene kan være mangelfulle i forhold til lovpålagt opplysningsplikt. Før bindende avtale inngås oppfordres interessenter til å innhente komplett informasjon fra meglerforetaket, selger eller utleier.































