Bildegalleri

Velkommen til Fjordvegen 45D, presentert av Inger Helene Simensen. Foto: Pil Branding (Kim Rognmo).
OTTESTAD/SANDVIKA
Strøken funkisbolig med attraktiv beliggenhet ved Mjøsa. Takterrasse med nydelige sol- og utsiktsforhold. Dobbelgarasje.
Prisantydning8 200 000 kr
Nøkkelinfo
- Boligtype
- Enebolig
- Eieform
- Eier (Selveier)
- Soverom
- 3
- Internt bruksareal
- 158 m² (BRA-i)
- Bruksareal
- 158 m²
- Balkong/Terrasse
- 86 m² (TBA)
- Byggeår
- 2019
- Energimerking
- C
- Tomteareal
- 251 m² (eiet)
Fasiliteter
Barnevennlig
Balkong/Terrasse
Garasje/P-plass
Offentlig vann/kloakk
Parkett
Peis/Ildsted
Turterreng
Utsikt
Moderne
Rolig
Lademulighet
Balansert ventilasjon
Om boligen
Velkommen til Fjordvegen 45D - en stilren og moderne funkisbolig med attraktiv beliggenhet ved Mjøsa!
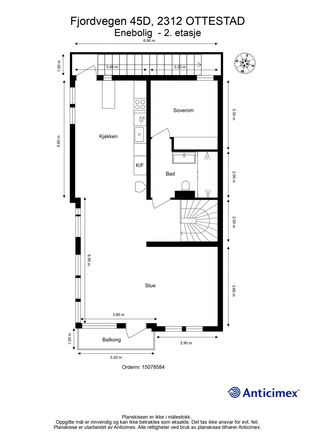
Boligen fra 2019 har en praktisk planløsning og inneholder åpen stue- og kjøkkenløsning, tre soverom, to bad, teknisk rom/vaskerom og bod. Parkering i dobbelgarasje med praktisk mellomgang gjør at man kan gå tørrskodd inn i boligen.
Det ble gjort betydelige oppgraderinger fra standardleveranse ved oppføring, som bl.a. større fliser, dobbeldusj, downlights og listefrie vegger i 2. etasje. Det er lagt stor vekt på komfort, og alle rom med parkettgulv har gulvvarme. Alle varmekilder kan styres via app.
En av boligens store høydepunkter er den romslige takterrassen med spektakulær utsikt mot Mjøsa og sol hele dagen - et ideelt sted for både avslapning og sosiale sammenkomster. I tillegg har boligen en inngjerdet hage på baksiden. For ekstra komfort på varme sommerdager er alle vinduer i oppholdsrom mot sørvest utstyrt med fjernstyrte screens, og hovedsoverommet har varmepumpe.
Boligen fra 2019 har en praktisk planløsning og inneholder åpen stue- og kjøkkenløsning, tre soverom, to bad, teknisk rom/vaskerom og bod. Parkering i dobbelgarasje med praktisk mellomgang gjør at man kan gå tørrskodd inn i boligen.
Det ble gjort betydelige oppgraderinger fra standardleveranse ved oppføring, som bl.a. større fliser, dobbeldusj, downlights og listefrie vegger i 2. etasje. Det er lagt stor vekt på komfort, og alle rom med parkettgulv har gulvvarme. Alle varmekilder kan styres via app.
En av boligens store høydepunkter er den romslige takterrassen med spektakulær utsikt mot Mjøsa og sol hele dagen - et ideelt sted for både avslapning og sosiale sammenkomster. I tillegg har boligen en inngjerdet hage på baksiden. For ekstra komfort på varme sommerdager er alle vinduer i oppholdsrom mot sørvest utstyrt med fjernstyrte screens, og hovedsoverommet har varmepumpe.
NB: Knappen for å vise hele beskrivelsen har kun en visuell effekt.
NB: Knappen for å vise hele beskrivelsen har kun en visuell effekt.
Salgsoppgaven beskriver vesentlig og lovpålagt informasjon om eiendommen
Se komplett salgsoppgaveNyttige lenker
Nærområdet
EIE eiendomsmegling Innlandet
Annonseinformasjon
| FINN-kode | 449658429 |
|---|---|
| Sist endret | 07. feb. 2026 18:42 |
| Referanse | 72260015 |
Annonsene kan være mangelfulle i forhold til lovpålagt opplysningsplikt. Før bindende avtale inngås oppfordres interessenter til å innhente komplett informasjon fra meglerforetaket, selger eller utleier.














































