Bildegalleri

Gamlegrendåsen - Lys og pen 3-roms leilighet med inngang fra bakkeplan og garasje. Flott utsikt og gode solforhold!
Prisantydning3 000 000 kr
Nøkkelinfo
- Boligtype
- Leilighet
- Eieform
- Eier (Selveier)
- Soverom
- 2
- Internt bruksareal
- 75 m² (BRA-i)
- Bruksareal
- 75 m²
- Balkong/Terrasse
- 11 m² (TBA)
- Etasje
- 1
- Byggeår
- 2005
- Energimerking
- D - Oransje
- Rom
- 3
- Tomteareal
- 7 572 m² (eiet)
Fasiliteter
Balkong/Terrasse
Barnevennlig
Garasje/P-plass
Offentlig vann/kloakk
Peis/Ildsted
Rolig
Sentralt
Utsikt
Turterreng
Visning
torsdag, 12. februar
18:15 – 19:00
Velkommen til visning! Meld deg på ved å trykke "visningspåmelding" i våre boligannonser. Visning med megler til stede vil ikke bli avholdt uten påmeldinger. Ta gjerne kontakt med megler i forkant av visningen om du har spørsmål.
VisningspåmeldingOm boligen
Velkommen til Størens Vei 13!
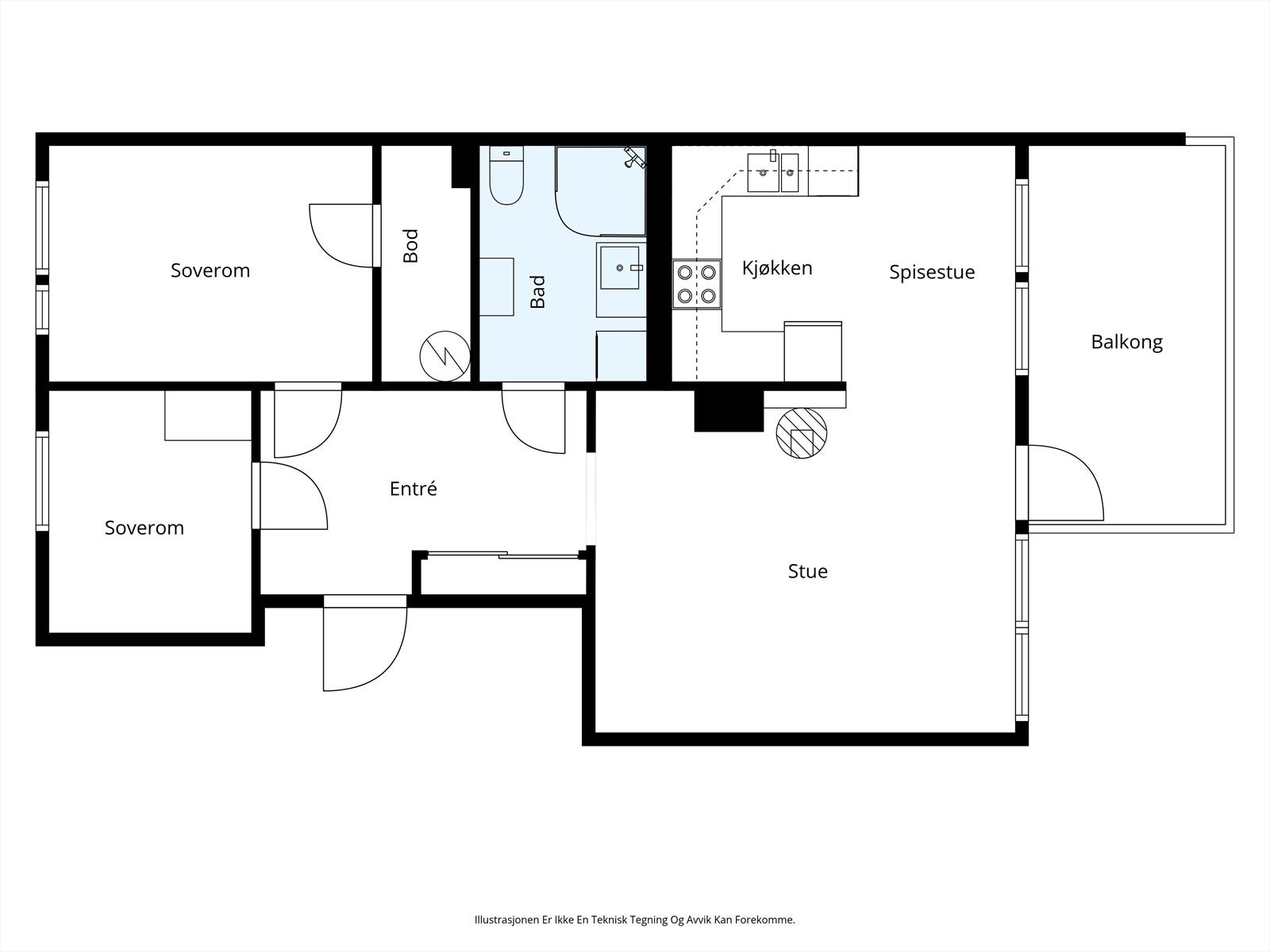
Flott 3-roms selveierleilighet med inngang fra bakkeplan som inneholder gang, teknisk rom, bad, stue, kjøkken og 2 soverom. I tillegg har leiligheten loft med lagerplass, utvendig bod og garasjeplass i felles rekke.
Leiligheten ligger i et rolig, etablert og attraktivt område med gang- og sykkelavstand til blant annet Teknologiparken, dagligvare, skole- og barnehage og bysentrum. I bysentrum av Kongsberg finnes meste av fasilitet- og servicetilbud man kan tenke seg. Umiddelbar nærhet til et flott turterreng med lysløype og rikelig med turstier. Kongsberg Skisenter ligger kun ca. 5 km fra boligen. Eiendommen ligger solrikt og flott til i et barnevennlig boligområde.
Flott 3-roms selveierleilighet med inngang fra bakkeplan som inneholder gang, teknisk rom, bad, stue, kjøkken og 2 soverom. I tillegg har leiligheten loft med lagerplass, utvendig bod og garasjeplass i felles rekke.
Leiligheten ligger i et rolig, etablert og attraktivt område med gang- og sykkelavstand til blant annet Teknologiparken, dagligvare, skole- og barnehage og bysentrum. I bysentrum av Kongsberg finnes meste av fasilitet- og servicetilbud man kan tenke seg. Umiddelbar nærhet til et flott turterreng med lysløype og rikelig med turstier. Kongsberg Skisenter ligger kun ca. 5 km fra boligen. Eiendommen ligger solrikt og flott til i et barnevennlig boligområde.
NB: Knappen for å vise hele beskrivelsen har kun en visuell effekt.
NB: Knappen for å vise hele beskrivelsen har kun en visuell effekt.
Salgsoppgaven beskriver vesentlig og lovpålagt informasjon om eiendommen
Se komplett salgsoppgaveNyttige lenker
Nærområdet
DNB Eiendom AS
Fra hjem til hjem
Annonseinformasjon
| FINN-kode | 449653889 |
|---|---|
| Sist endret | 06. feb. 2026 11:33 |
| Referanse | 511250328 |
Annonsene kan være mangelfulle i forhold til lovpålagt opplysningsplikt. Før bindende avtale inngås oppfordres interessenter til å innhente komplett informasjon fra meglerforetaket, selger eller utleier.































