Bildegalleri

Benjamin Ådna v/Nordvik har gleden av å presentere denne innbydende og moderne 4-roms leiligheten med stor terrasse, heis og parkeringsplass med El- lader. Foto: Henrik Sporsheim v/Tigerstaden Boligfoto AS.
Solgt
Kværnerbyen
Lekker 4-roms med privat terrasse på 13m² - Garasjeplass med EL-lader - Kjøkken 2024 - Varmtvann, TV/fiber, fyring inkl.
Prisantydning5 400 000 kr
Nøkkelinfo
- Boligtype
- Leilighet
- Eieform
- Andel
- Soverom
- 3
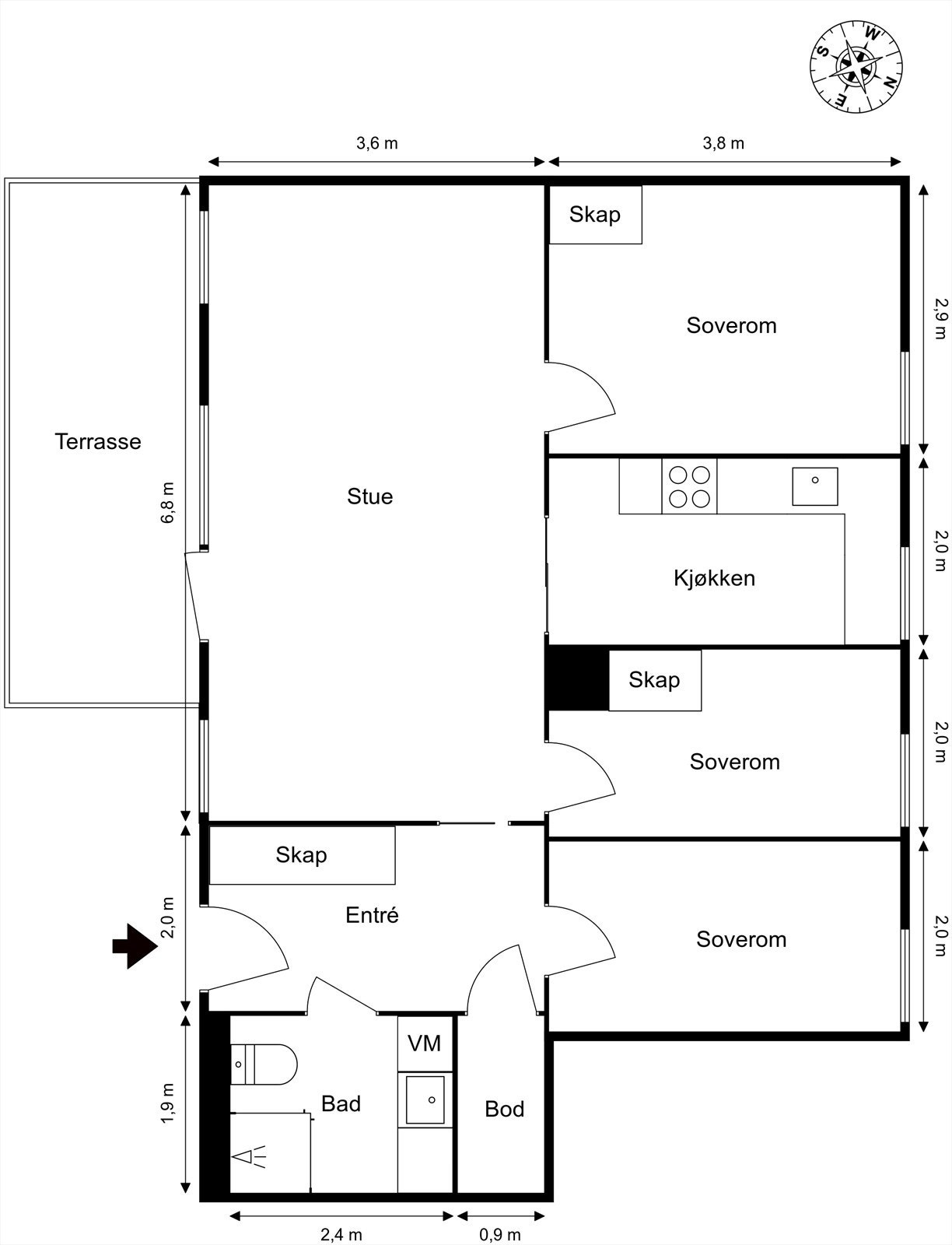
- Internt bruksareal
- 76 m² (BRA-i)
- Bruksareal
- 81 m²
- Eksternt bruksareal
- 5 m² (BRA-e)
- Balkong/Terrasse
- 13 m² (TBA)
- Etasje
- 2
- Byggeår
- 2008
- Energimerking
- C - Lysegrønn
- Rom
- 4
- Tomteareal
- 858 m² (eiet)
Fasiliteter
Balkong/Terrasse
Barnevennlig
Bredbåndstilknytning
Garasje/P-plass
Heis
Kjæledyr tillatt
Kabel-TV
Offentlig vann/kloakk
Rolig
Sentralt
Vaktmester-/vektertjeneste
Turterreng
Lademulighet
Om boligen
Benjamin Ådna v/Nordvik har gleden av å presentere denne innbydende og attraktive 4-roms leiligheten beliggende i byggets 2. etasje. Leiligheten fremstår som stilren og funksjonell, med tre romslige soverom, innbydende stue- og kjøkkenløsning, tidløst bad og en romslig entré. Fantastisk solrik terrasse og garasjeplass med EL-lader. Beliggenheten er svært sentral med kort vei til Bjørvika, Sørenga og Oslo sentrum.
- Moderne leilighetskompleks fra 2008
- Sydøstvendt terrasse 13m²
- 3 soverom
- Lekkert kjøkken 2024
- Felles takterrasse
- Heisadkomst
- Garasjeplass med EL- lader
- Gode kollektivforbindelser
- Rolig og sentralt boligområde
- *IN-ordning: Ved nedbetaling av fellesgjeld blir felleskostnadene kr. 5 248,- pr. mnd. inkl. TV/fiber, varmtvann og oppvarming.
NB: Knappen for å vise hele beskrivelsen har kun en visuell effekt.
NB: Knappen for å vise hele beskrivelsen har kun en visuell effekt.
Salgsoppgaven beskriver vesentlig og lovpålagt informasjon om eiendommen
Se komplett salgsoppgaveNyttige lenker
Nærområdet
Nordvik Majorstuen
Annonseinformasjon
| FINN-kode | 449652187 |
|---|---|
| Sist endret | 19. feb. 2026 11:54 |
| Referanse | 8-0525/25 |
Annonsene kan være mangelfulle i forhold til lovpålagt opplysningsplikt. Før bindende avtale inngås oppfordres interessenter til å innhente komplett informasjon fra meglerforetaket, selger eller utleier.








































