Bildegalleri

Velkommen til Flatingrendi 21!
Seljord
Enebolig med tre soverom, rolig beliggenhet og kort veg til sentrum.
Prisantydning1 690 000 kr
Nøkkelinfo
- Boligtype
- Enebolig
- Eieform
- Eier (Selveier)
- Soverom
- 3
- Internt bruksareal
- 148 m² (BRA-i)
- Bruksareal
- 182 m²
- Eksternt bruksareal
- 34 m² (BRA-e)
- Balkong/Terrasse
- 11 m² (TBA)
- Etasje
- 2
- Byggeår
- 1967
- Energimerking
- G - Oransje
- Rom
- 4
- Tomteareal
- 1 049 m² (eiet)
Fasiliteter
Balkong/Terrasse
Garasje/P-plass
Peis/Ildsted
Turterreng
Utsikt
Rolig
Visning
mandag, 16. februar
16:00 – 17:00
Meld deg på visning eller kontakt eiendomsmegler for privatvisning.
Visning blir ikke gjennomført uten påmeldte.
Om boligen
Velkommen til Flatingrendi 21!
Enebolig med fin og rolig beliggenhet, kort veg til Seljord sentrum med skole, barnehage, butikker og andre fasiliteter.
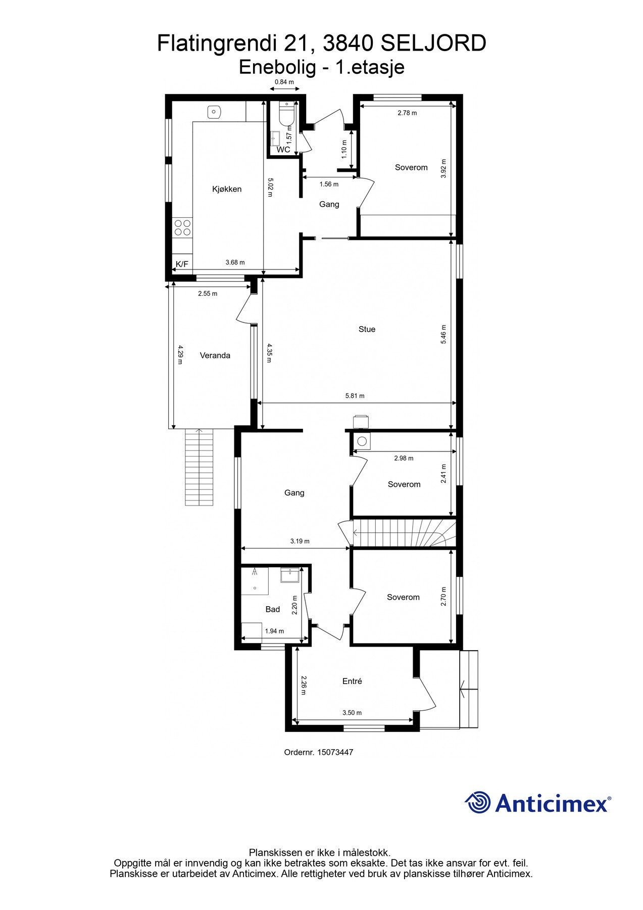
Boligen er over to plan og inneholder følgende: 1.etasje: Entre, to ganger, bad, toalettrom, stue, kjøkken og tre soverom.
Underetasje: Boder, garasje og hobbyrom.
Her er også en frittstående garasje på 23 m².
Flere fine uteplasser på eiendommen, noe oppgraderings behov må påregnes.
Enebolig med fin og rolig beliggenhet, kort veg til Seljord sentrum med skole, barnehage, butikker og andre fasiliteter.
Boligen er over to plan og inneholder følgende: 1.etasje: Entre, to ganger, bad, toalettrom, stue, kjøkken og tre soverom.
Underetasje: Boder, garasje og hobbyrom.
Her er også en frittstående garasje på 23 m².
Flere fine uteplasser på eiendommen, noe oppgraderings behov må påregnes.
NB: Knappen for å vise hele beskrivelsen har kun en visuell effekt.
NB: Knappen for å vise hele beskrivelsen har kun en visuell effekt.
Salgsoppgaven beskriver vesentlig og lovpålagt informasjon om eiendommen
Se komplett salgsoppgaveNærområdet
Lokalmegleren & Partners
Verdien av lokalkunnskap
Annonseinformasjon
| FINN-kode | 449644603 |
|---|---|
| Sist endret | 06. feb. 2026 08:31 |
| Referanse | 47250016 |
Annonsene kan være mangelfulle i forhold til lovpålagt opplysningsplikt. Før bindende avtale inngås oppfordres interessenter til å innhente komplett informasjon fra meglerforetaket, selger eller utleier.






































