Bildegalleri

Eiendomsmegler 1 v/Anton Kopreitan har gleden av å presentere en stilsikker 2-roms med optimal planløsning og fast parkeringsplass i p-kjeller. Fotograf: Jens Martin Nervik.
Lade
PEN 2-ROMS MED UTMERKET PLANLØSNING - PARKERING M/LADER OG EKSTERN BOD - FJERNVARME - "ALT" INKLUDERT I FELLESKOSTNADER
Prisantydning2 190 000 kr
Nøkkelinfo
- Boligtype
- Leilighet
- Eieform
- Andel
- Soverom
- 1
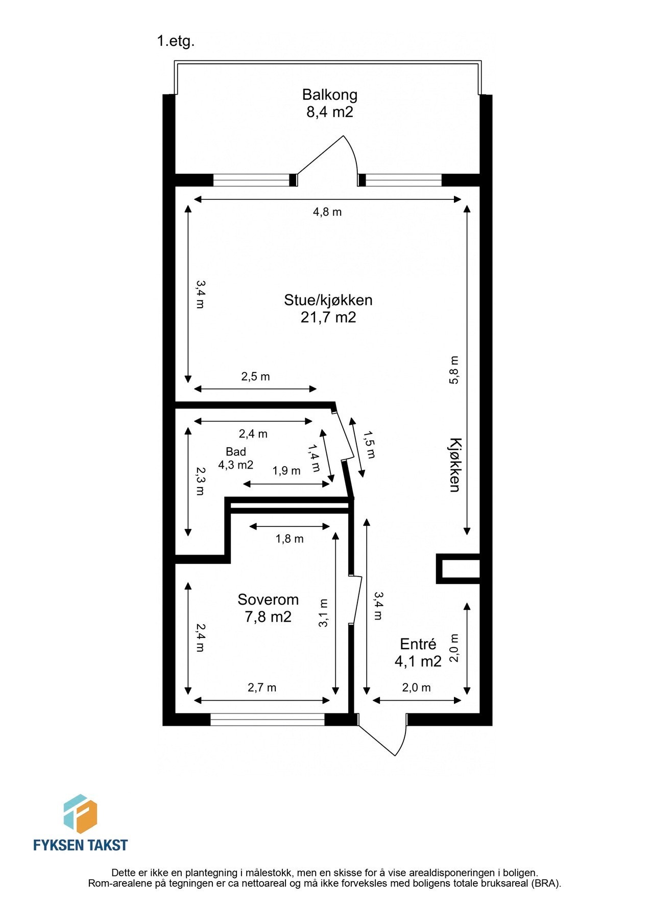
- Internt bruksareal
- 40 m² (BRA-i)
- Bruksareal
- 44 m²
- Eksternt bruksareal
- 4 m² (BRA-e)
- Balkong/Terrasse
- 8 m² (TBA)
- Etasje
- 1
- Byggeår
- 2005
- Energimerking
- C - Lysegrønn
- Rom
- 2
- Tomteareal
- 10 171 m² (eiet)
Fasiliteter
Balkong/Terrasse
Garasje/P-plass
Kabel-TV
Heis
Offentlig vann/kloakk
Parkett
Turterreng
Vaktmester-/vektertjeneste
Sentralt
Bredbåndstilknytning
Moderne
Rolig
Lademulighet
Visning
torsdag, 12. februar
15:30 – 16:30
Våre visninger har påmelding. Dette gjør vi for å kunne yte bedre service for våre kunder. Verdifullt for boligkjøper og for oss. Vi anbefaler at salgsoppgaven lastes ned digitalt før visning, og ring oss gjerne på forhånd for spørsmål om boligen. Passer ikke angitt tidspunkt, ta kontakt så finner vi en løsning. Skulle det mot formodning ikke være påmeldte til angitt visningstidspunkt vil ikke visning bli gjennomført.
Om boligen
Velkommen til Østmarkveien 6K - Pen 2-roms med fast P-plass i kjeller
Leiligheten er en del av Borettslaget Lade Entrè som er et godt driftet borettslag med sunn og god økonomi. Borettslaget har en sentral plassering på Lade med alle service funksjoner i umiddelbar nærhet. Leiligheten innehar mange etterspurte kvaliteter og vi nevner noen av de:
Leiligheten er en del av Borettslaget Lade Entrè som er et godt driftet borettslag med sunn og god økonomi. Borettslaget har en sentral plassering på Lade med alle service funksjoner i umiddelbar nærhet. Leiligheten innehar mange etterspurte kvaliteter og vi nevner noen av de:
- Pent flislagt bad
- Pent og praktisk kjøkken med hvitevarer
- Privat terrasse
- Parkeringsplass m/el bil lader i p-kjeller
- Romslig soverom
- Felleskostnader som dekker alt foruten innboforsikring
- Nært turområder og shoppingmuligheter
- Lave kjøpsomkostninger
NB: Knappen for å vise hele beskrivelsen har kun en visuell effekt.
NB: Knappen for å vise hele beskrivelsen har kun en visuell effekt.
Salgsoppgaven beskriver vesentlig og lovpålagt informasjon om eiendommen
Se komplett salgsoppgaveNyttige lenker
Nærområdet
EiendomsMegler 1 Lade og Lilleby
Vi loser deg trygt gjennom hele boligsalget
Annonseinformasjon
| FINN-kode | 449641671 |
|---|---|
| Sist endret | 06. feb. 2026 09:12 |
| Referanse | 36260013 |
Annonsene kan være mangelfulle i forhold til lovpålagt opplysningsplikt. Før bindende avtale inngås oppfordres interessenter til å innhente komplett informasjon fra meglerforetaket, selger eller utleier.

























