Bildegalleri

Celine B. Bråthen har gleden av å presentere Hellerudveien 49B! En innholdsrik og familievennlig enebolig med carport og biloppstillingsplass.
Hellerud
Innholdsrik enebolig over 3 plan | Blindvei | Carport | Familievennlig planløsning | Sokner til Trasop skole
Prisantydning10 000 000 kr
Nøkkelinfo
- Boligtype
- Enebolig
- Eieform
- Eier (Selveier)
- Soverom
- 3
- Internt bruksareal
- 155 m² (BRA-i)
- Bruksareal
- 167 m²
- Eksternt bruksareal
- 12 m² (BRA-e)
- Balkong/Terrasse
- 30 m² (TBA)
- Etasje
- 2
- Byggeår
- 1987
- Energimerking
- D - Gul
- Rom
- 6
- Tomteareal
- 534 m² (eiet)
Fasiliteter
Aircondition
Balkong/Terrasse
Barnevennlig
Bredbåndstilknytning
Garasje/P-plass
Hage
Offentlig vann/kloakk
Peis/Ildsted
Rolig
Turterreng
Visning
søndag, 15. februar
15:00 – 16:00
Velkommen til visning! Meld deg på ved å trykke "visningspåmelding" i våre boligannonser. Ta gjerne kontakt med megler i forkant av visningen om du har spørsmål.
VisningspåmeldingOm boligen
Velkommen til Hellerudveien 49B! Her får du en velholdt og innholdsrik enebolig med en svært barnevennlig beliggenhet i blindvei.
Boligen ligger i et attraktivt og rolig nabolag - perfekt for en aktiv familie. Med kort gangavstand til skoler, barnehager og kollektivtransport er hverdagen enkel. Nærheten til Østmarka byr på fantastiske turmuligheter året rundt, med badeplasser om sommeren og skiløyper om vinteren. Her kan du nyte rolige dager i trygge omgivelser, samtidig som du har alt du trenger i nærheten.
Høydepunkter:
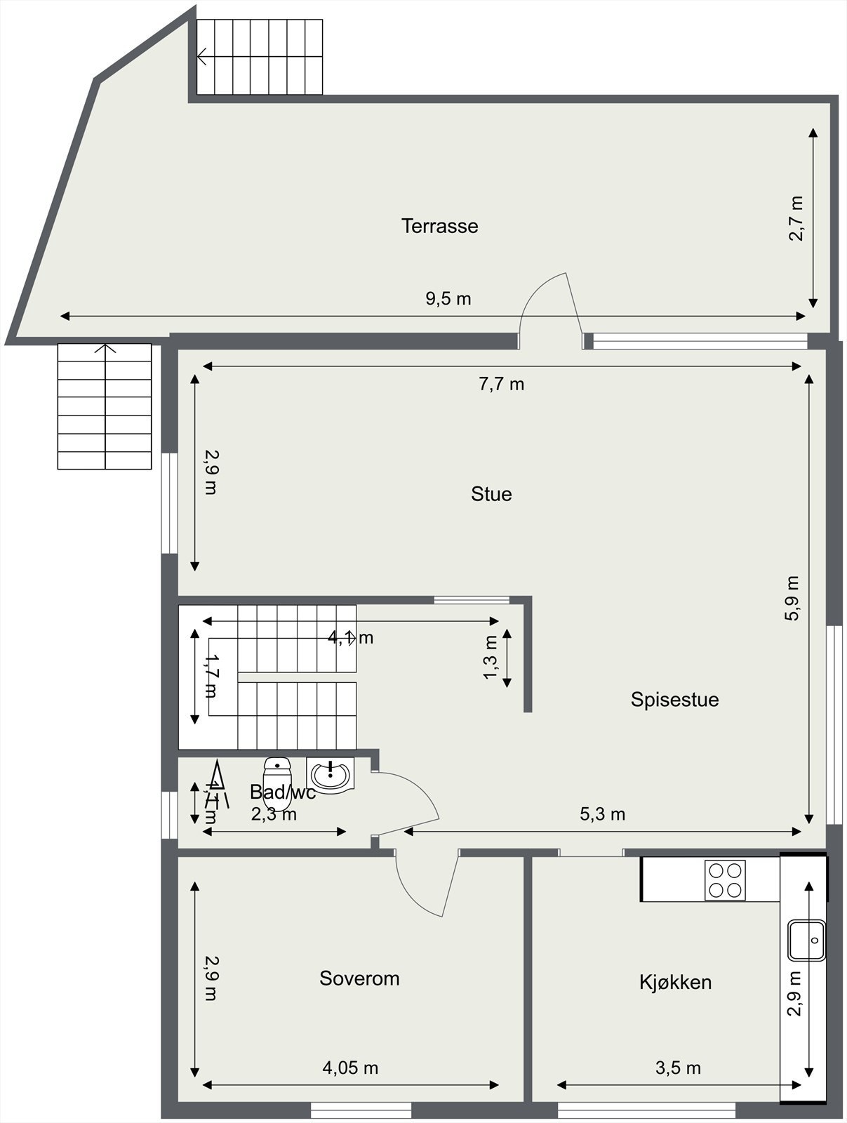
- Enebolig over tre plan med tre soverom og to disponible rom
- To sydvendte terrasser på 24 m² og 12 m²
- Beliggenhet i blindvei
- Carport og biloppstillingsplass
- Varmepumpe og vedkamin
- Sokner til populære Trasop skole
- God lagringsplass med fire boder
Boligen ligger i et attraktivt og rolig nabolag - perfekt for en aktiv familie. Med kort gangavstand til skoler, barnehager og kollektivtransport er hverdagen enkel. Nærheten til Østmarka byr på fantastiske turmuligheter året rundt, med badeplasser om sommeren og skiløyper om vinteren. Her kan du nyte rolige dager i trygge omgivelser, samtidig som du har alt du trenger i nærheten.
Høydepunkter:
- Enebolig over tre plan med tre soverom og to disponible rom
- To sydvendte terrasser på 24 m² og 12 m²
- Beliggenhet i blindvei
- Carport og biloppstillingsplass
- Varmepumpe og vedkamin
- Sokner til populære Trasop skole
- God lagringsplass med fire boder
NB: Knappen for å vise hele beskrivelsen har kun en visuell effekt.
NB: Knappen for å vise hele beskrivelsen har kun en visuell effekt.
Salgsoppgaven beskriver vesentlig og lovpålagt informasjon om eiendommen
Se komplett salgsoppgaveNyttige lenker
Nærområdet
DNB Eiendom AS
Fra hjem til hjem
Annonseinformasjon
| FINN-kode | 449636139 |
|---|---|
| Sist endret | 08. feb. 2026 09:19 |
| Referanse | 324260002 |
Annonsene kan være mangelfulle i forhold til lovpålagt opplysningsplikt. Før bindende avtale inngås oppfordres interessenter til å innhente komplett informasjon fra meglerforetaket, selger eller utleier.






























