Bildegalleri

Daglig leder og eiendomsmegler Petter Eia Haavi presenterer Ammerudgrenda 166!
Utsiktsleilighet på Ammerud
Pen 3-roms toppleilighet med innglasset balkong på 11 kvm | Heis | Bad & separat WC fra 24 | VV & fyring inkl | Garasje*
Prisantydning3 990 000 kr
Nøkkelinfo
- Boligtype
- Leilighet
- Eieform
- Andel
- Soverom
- 2
- Internt bruksareal
- 74 m² (BRA-i)
- Bruksareal
- 87 m²
- Eksternt bruksareal
- 2 m² (BRA-e)
- Innglasset balkong
- 11 m² (BRA-b)
- Etasje
- 13
- Byggeår
- 1967
- Energimerking
- G - Rød
- Rom
- 3
- Tomteareal
- 13 168 m² (eiet)
Fasiliteter
Barnevennlig
Balkong/Terrasse
Garasje/P-plass
Kabel-TV
Heis
Offentlig vann/kloakk
Ingen gjenboere
Parkett
Turterreng
Utsikt
Vaktmester-/vektertjeneste
Fellesvaskeri
Sentralt
Bredbåndstilknytning
Moderne
Rolig
Bademulighet
Om boligen
Velkommen til Ammerudgrenda 166 presentert av Daglig leder og eiendomsmegler Petter Eia Haavi ved EIE eiendomsmegling!
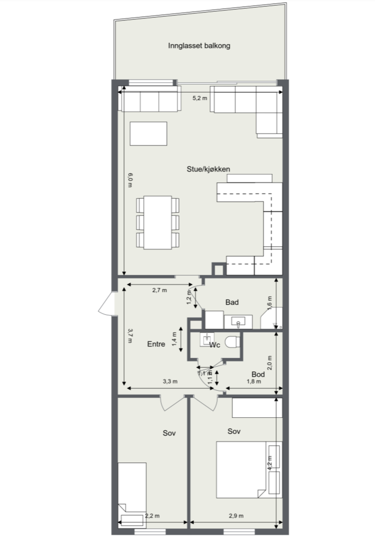
Dette er en lys og romslig toppleilighet med gjennomtenkt planløsning og gode kvaliteter. Leiligheten byr på en innbydende stue med åpen løsning mot kjøkken, som gir fine rammer for både hverdagsliv og sosiale sammenkomster. Fra stue/kjøkken er det utgang til en stor, innglasset balkong på ca. 11kvm. Med to gode soverom, flislagt bad i tillegg til separat toalettrom, er dette en bolig som passer yppelig for store og små familier.
Kvaliteter ved boligen:
- Lys og romslig leilighet med god planløsning
- Åpen og sosial stue/kjøkkenløsning
- Innglasset balkong på ca. 11 kvm
- To gode soverom
- Romslig bad fra 2024
- Separat toalettrom fra 2024
- Varmtvann og fyring er inkl. i FK
- Innvendig bod samt en i første etasje
- Felles vaskeri
*Garasjeplass kan kjøpes utenom. Ta kontakt med megler for mer info.
Mangler du egenkapital? Boligen kan kjøpes med Finit Deleie.
Dette er en lys og romslig toppleilighet med gjennomtenkt planløsning og gode kvaliteter. Leiligheten byr på en innbydende stue med åpen løsning mot kjøkken, som gir fine rammer for både hverdagsliv og sosiale sammenkomster. Fra stue/kjøkken er det utgang til en stor, innglasset balkong på ca. 11kvm. Med to gode soverom, flislagt bad i tillegg til separat toalettrom, er dette en bolig som passer yppelig for store og små familier.
Kvaliteter ved boligen:
- Lys og romslig leilighet med god planløsning
- Åpen og sosial stue/kjøkkenløsning
- Innglasset balkong på ca. 11 kvm
- To gode soverom
- Romslig bad fra 2024
- Separat toalettrom fra 2024
- Varmtvann og fyring er inkl. i FK
- Innvendig bod samt en i første etasje
- Felles vaskeri
*Garasjeplass kan kjøpes utenom. Ta kontakt med megler for mer info.
Mangler du egenkapital? Boligen kan kjøpes med Finit Deleie.
NB: Knappen for å vise hele beskrivelsen har kun en visuell effekt.
NB: Knappen for å vise hele beskrivelsen har kun en visuell effekt.
Salgsoppgaven beskriver vesentlig og lovpålagt informasjon om eiendommen
Se komplett salgsoppgaveNyttige lenker
Nærområdet
EIE eiendomsmegling Stovner
Annonseinformasjon
| FINN-kode | 449628123 |
|---|---|
| Sist endret | 08. feb. 2026 08:02 |
| Referanse | 75260018 |
Annonsene kan være mangelfulle i forhold til lovpålagt opplysningsplikt. Før bindende avtale inngås oppfordres interessenter til å innhente komplett informasjon fra meglerforetaket, selger eller utleier.



































