


Storhaug + Partnere AS har gleden av å presentere flotte Draugen 101
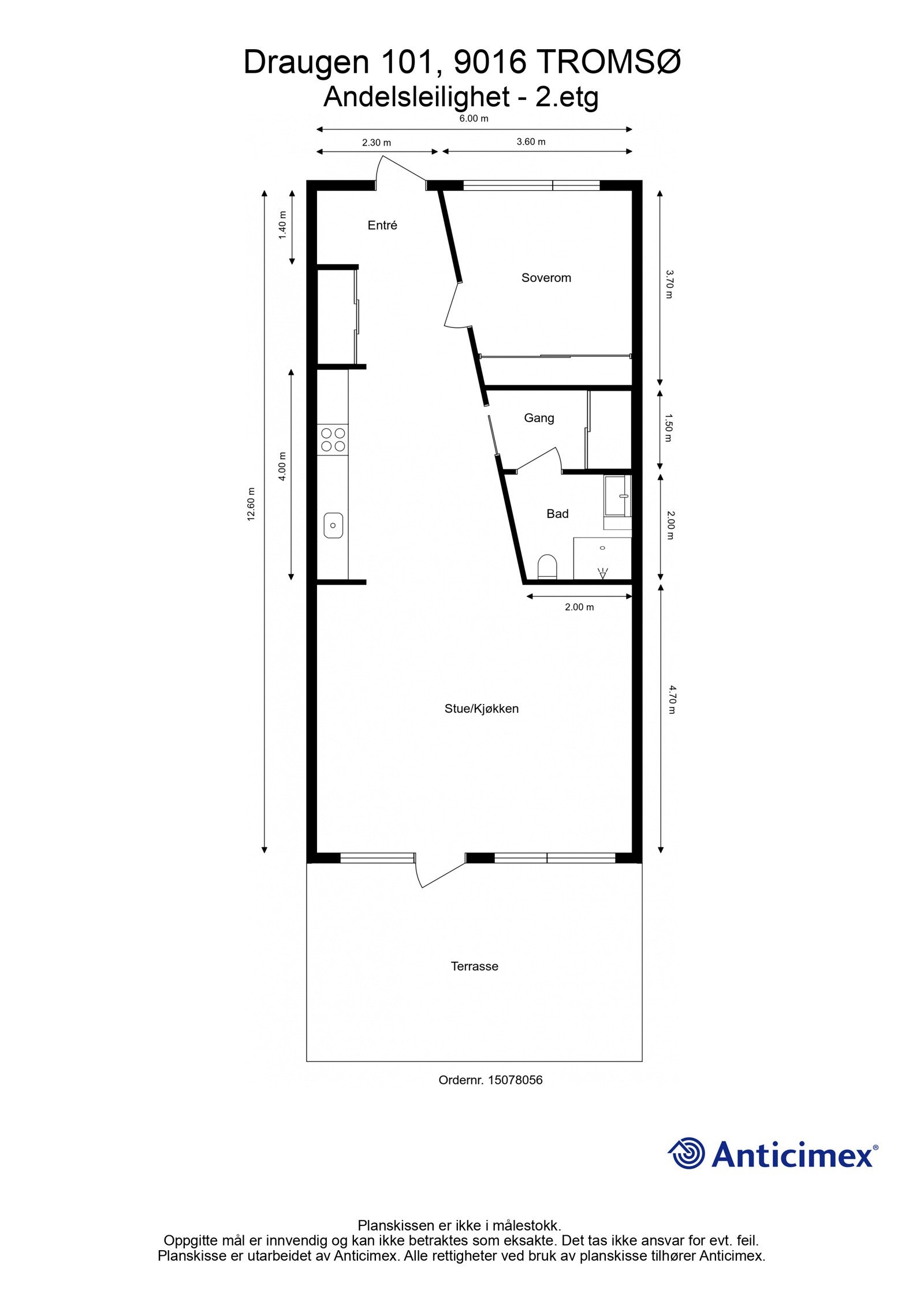
Velkommen til Draugen 101 - en romslig leilighet på ca. 80m2 med spennende potensiale for deg som ønsker å sette ditt eget preg. Leiligheten har store vindusflater som gir godt med naturlig lys og luftig følelse gjennom hele boligen. Fra stua er det utgang til romslig markterrasse.
I dag har leiligheten 1 soverom, men det kan med enkle grep etableres et soverom til for den som ønsker, eller trenger det.
Draugen 101 disponerer fast garasjeplass og ligger i et rolig og attraktivt område med kort vei til lysløype, marka og attraktive rekreasjonsområder. Korte avstander til bussstopp som fører deg til sentrum og Giæverbukta.
Det er svært lave omkostninger ved kjøp og fellesgjelden er fullt nedbetalt - noe som gir forutsigbare bokostnader.
- Velkommen på visning!
Salgsoppgaven beskriver vesentlig og lovpålagt informasjon om eiendommen
Se komplett salgsoppgaveDraugen 101
på annonsen
prisantydning per kvadratmeter
Pris per m² ligger 10 974 kr under snittet for leiligheter i Tromsøya, Midten.
Grafen viser antall leiligheter solgt i Tromsøya, Midten siste året fordelt på pris per m² - totalt 402 leiligheter
Antall boliger
Kvadratmeterpris tilsvarer prisantydning pluss fellesgjeld per kvadratmeter (p-rom eller BRA-i). Prisene i grafen er avrundet til nærmeste 1000 kr.












Annonsene kan være mangelfulle i forhold til lovpålagt opplysningsplikt. Før bindende avtale inngås oppfordres interessenter til å innhente komplett informasjon fra meglerforetaket, selger eller utleier.