Bildegalleri

EiendomsMegler 1 v/Morten Høvik presenterer Strandveien 1! Foto: EFKT, Vilde Dahl
Enebolig med nausttomt på attraktive Veiholmen!
Prisantydning1 100 000 kr
Nøkkelinfo
- Boligtype
- Enebolig
- Eieform
- Eier (Selveier)
- Soverom
- 4
- Internt bruksareal
- 152 m² (BRA-i)
- Bruksareal
- 152 m²
- Byggeår
- 1953
- Energimerking
- F - Oransje
- Rom
- 5
- Tomteareal
- 562 m² (eiet)
Fasiliteter
Barnevennlig
Balkong/Terrasse
Garasje/P-plass
Fiskemulighet
Peis/Ildsted
Utsikt
Sentralt
Rolig
Bademulighet
Visning
onsdag, 11. februar
16:00 – 16:45
Våre visninger har påmelding. Dette gjør vi for å kunne yte bedre service for våre kunder. Verdifullt for boligkjøper og for oss. Vi anbefaler at salgsoppgaven lastes ned digitalt før visning, og ring oss gjerne på forhånd for spørsmål om boligen. Passer ikke angitt tidspunkt, ta kontakt så finner vi en løsning. Skulle det mot formodning ikke være påmeldte til angitt visningstidspunkt vil ikke visning bli gjennomført.
Om boligen
EiendomsMegler 1 v/Morten Høvik ønsker velkommen til Strandveien 1!
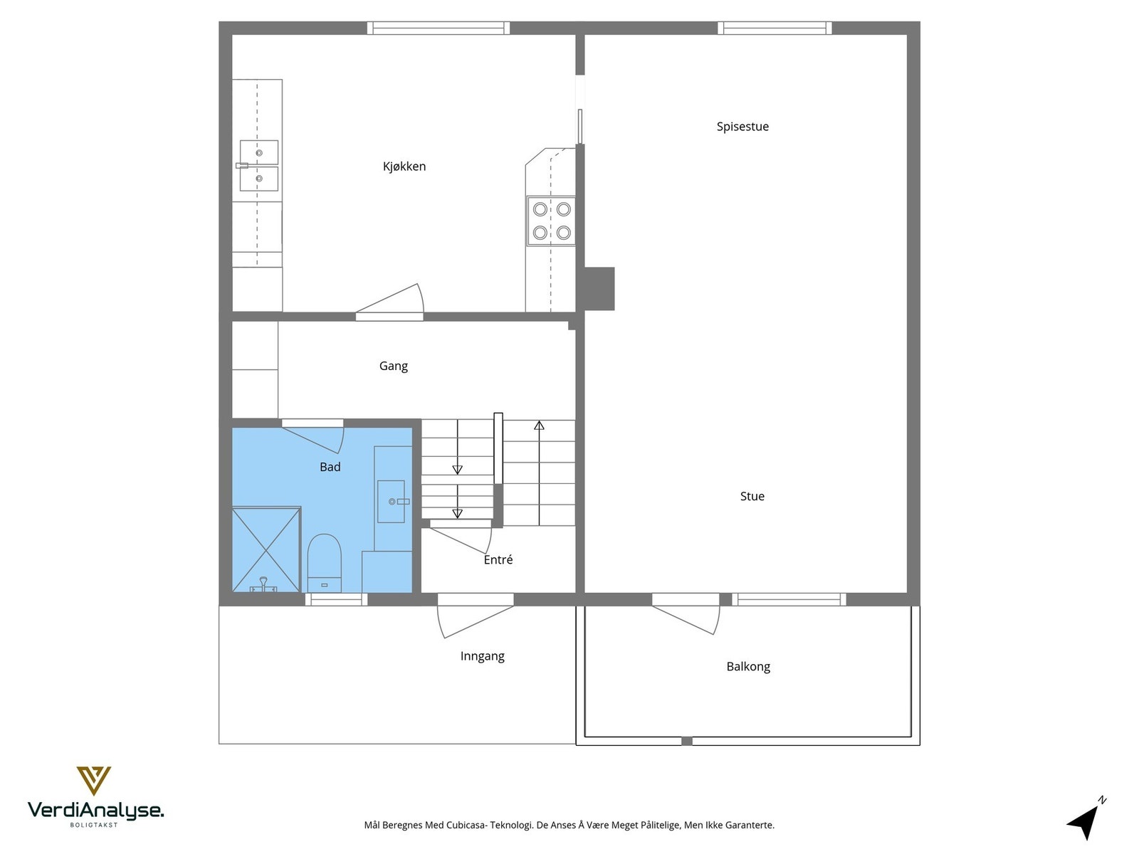
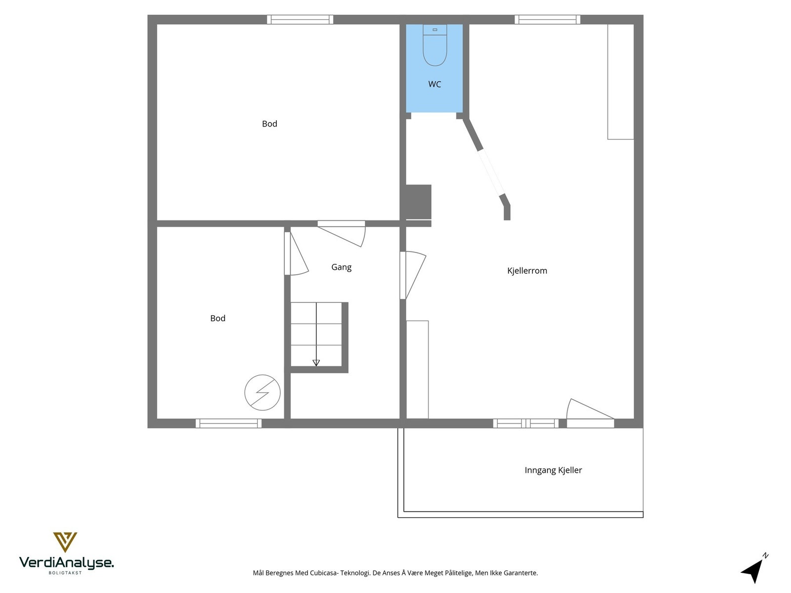
Enebolig med nausttomt på Inner Innveien på Veiholmen. Eiendommen har sjønær, idyllisk beliggenhet og gode solforhold. Boligen ble oppført i 1953, går over 3 plan og byr på bl.a stue, kjøkken, 4 soverom, bad, toalettrom, gangareal, boder og kjellerrom. Fra stue er det utgang til sydøstvendt balkong. Boligen har noe oppgraderingsbehov. Det er gruset innkjøring og plen/naturterreng rundt boligen. Nausttomten ligger ca 100 meter unna boligen.
Velkommen til visning!
Enebolig med nausttomt på Inner Innveien på Veiholmen. Eiendommen har sjønær, idyllisk beliggenhet og gode solforhold. Boligen ble oppført i 1953, går over 3 plan og byr på bl.a stue, kjøkken, 4 soverom, bad, toalettrom, gangareal, boder og kjellerrom. Fra stue er det utgang til sydøstvendt balkong. Boligen har noe oppgraderingsbehov. Det er gruset innkjøring og plen/naturterreng rundt boligen. Nausttomten ligger ca 100 meter unna boligen.
Velkommen til visning!
NB: Knappen for å vise hele beskrivelsen har kun en visuell effekt.
NB: Knappen for å vise hele beskrivelsen har kun en visuell effekt.
Salgsoppgaven beskriver vesentlig og lovpålagt informasjon om eiendommen
Se komplett salgsoppgaveNyttige lenker
Nærområdet
EiendomsMegler 1 Kristiansund
Vi loser deg trygt gjennom hele boligsalget
Annonseinformasjon
| FINN-kode | 449563169 |
|---|---|
| Sist endret | 04. feb. 2026 20:54 |
| Referanse | 17250484 |
Annonsene kan være mangelfulle i forhold til lovpålagt opplysningsplikt. Før bindende avtale inngås oppfordres interessenter til å innhente komplett informasjon fra meglerforetaket, selger eller utleier.

























