Bildegalleri

Velkommen til Marcus Thranes vei 18D formidlet av Nordvik v/Jeanette Hornsletten! Fotograf: Marie Waagan.
Høyda/Ørejordet
Enderekkehus o/to plan med oppussingsbehov - God intern beliggenhet i rolig og sentralt nabolag - Carport og bod.
Prisantydning3 100 000 kr
Nøkkelinfo
- Boligtype
- Rekkehus
- Eieform
- Andel
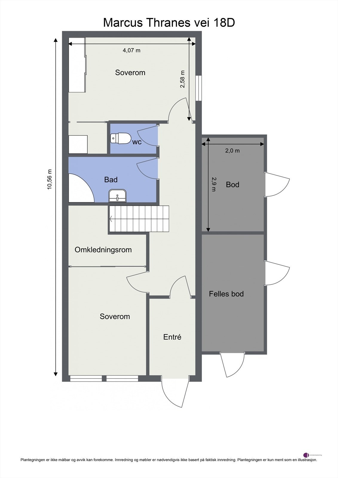
- Soverom
- 2
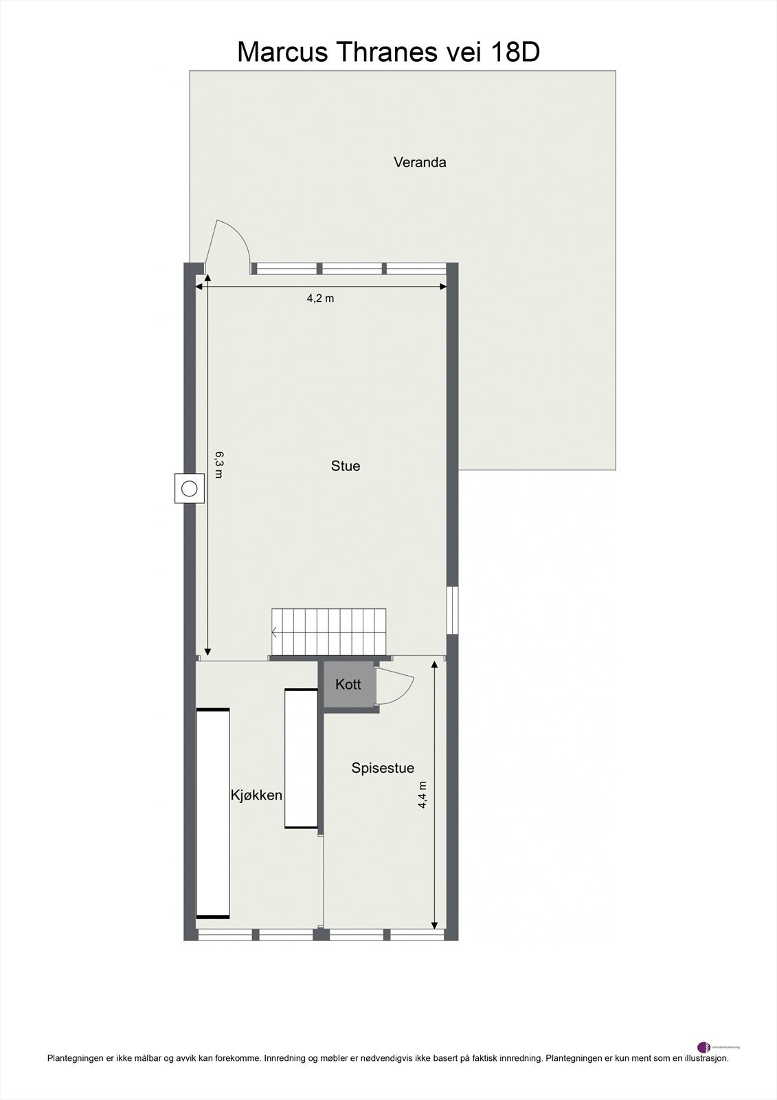
- Internt bruksareal
- 91 m² (BRA-i)
- Bruksareal
- 97 m²
- Eksternt bruksareal
- 6 m² (BRA-e)
- Balkong/Terrasse
- 33 m² (TBA)
- Etasje
- 2
- Byggeår
- 1966
- Rom
- 3
- Tomteareal
- 3 599 m² (festet)
- Festeavgift
- 28 043 kr
Fasiliteter
Balkong/Terrasse
Barnevennlig
Garasje/P-plass
Hage
Kjæledyr tillatt
Kabel-TV
Offentlig vann/kloakk
Parkett
Rolig
Sentralt
Turterreng
Visning
søndag, 15. februar
12:00 – 12:30
Alle våre visninger har påmelding. Meld deg på i god tid før visning ved å trykke på lenken visningspåmelding. Passer ikke tidspunktet, kontakt megler for å avtale til tid til privatvisning. NB! Dersom det ikke er noen påmeldte, vil ikke megler være til stede og visning utgår.
VisningspåmeldingOm boligen
Velkommen til Marcus Thranes vei 18D!
Beliggenheten er sentrumsnær og samtidig tilbaketrukket på populære Ørejordet. Det er under 15 min. gangavstand til flere butikker, barnehager, skole, Melløs stadion og Øre idrettspark. Moss byr på flere kjøpesentre og i nærområdet finnes handelsområde, helsepark, et godt utvalg aktivitetsmuligheter, badeplasser, tur- og rekreasjonsområder.
- Skjermet og god intern beliggenhet i ende.
- Terrasse på 33 kvm m/ fine solforhold og markise.
- Lyst og åpen stue- og kjøkkenløsning.
- To soverom med god oppbevaringsplass.
- Utvendig bod rett utenfor.
- Gangavstand til skoler, barnehager, leke- og turområder.
- Kort vei til handelsområde med butikker, velvære, trenings- og klatresenter.
- Flere spisesteder og kjøpesenter i nærområdet.
Beliggenheten er sentrumsnær og samtidig tilbaketrukket på populære Ørejordet. Det er under 15 min. gangavstand til flere butikker, barnehager, skole, Melløs stadion og Øre idrettspark. Moss byr på flere kjøpesentre og i nærområdet finnes handelsområde, helsepark, et godt utvalg aktivitetsmuligheter, badeplasser, tur- og rekreasjonsområder.
NB: Knappen for å vise hele beskrivelsen har kun en visuell effekt.
NB: Knappen for å vise hele beskrivelsen har kun en visuell effekt.
Salgsoppgaven beskriver vesentlig og lovpålagt informasjon om eiendommen
Se komplett salgsoppgaveNyttige lenker
Nærområdet
Nordvik Moss
Vi vet hva det er verdt
Annonseinformasjon
| FINN-kode | 449538591 |
|---|---|
| Sist endret | 06. feb. 2026 09:00 |
| Referanse | 41-0009/26 |
Annonsene kan være mangelfulle i forhold til lovpålagt opplysningsplikt. Før bindende avtale inngås oppfordres interessenter til å innhente komplett informasjon fra meglerforetaket, selger eller utleier.

































