Bildegalleri

Velkommen til Skåreråsen 12, presentert av Sebastian Chodkowski i Nordvik Bolig! Foto: Stefan Borup
Solgt
LØRENSKOG
Oppussingsobjekt - Romslig 3-roms med fint utsyn! - Bad 2019 - Balkong på 13 m² - Garasje - Heis - Vvann/fyr inkl.
Prisantydning2 490 000 kr
Nøkkelinfo
- Boligtype
- Leilighet
- Eieform
- Andel
- Soverom
- 2
- Internt bruksareal
- 73 m² (BRA-i)
- Bruksareal
- 73 m²
- Balkong/Terrasse
- 13 m² (TBA)
- Etasje
- 1
- Byggeår
- 1972
- Energimerking
- D - Gul
- Rom
- 3
- Tomteareal
- 25 474 m² (eiet)
Fasiliteter
Balkong/Terrasse
Garasje/P-plass
Heis
Rolig
Utsikt
Vaktmester-/vektertjeneste
Turterreng
Om boligen
Velkommen til Skåreråsen 12, presentert av Sebastian Chodkowski i Nordvik Bolig!
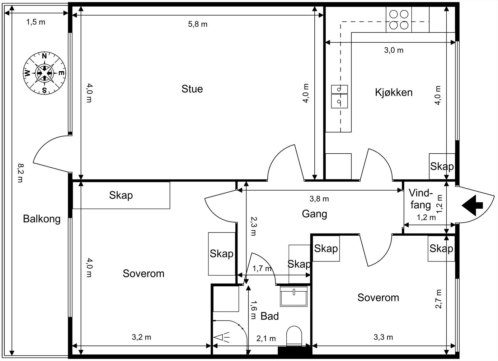
Dette er en lys og gjennomgående leilighet med god planløsning bestående av entré, stue, kjøkken, baderom og to soverom. Fra stuen er det utgang til en vestvendt balkong på 13 m² med fin utsikt og gode solforhold. I tillegg disponeres en parkeringsplass og ekstern kjellerbod.
Leiligheten ligger i et attraktivt område med gangavstand til alle servicefunksjoner, kjøpesentre, skoler, barnehager og gode kollektivtilbud.
Verdt å merke seg:
- Lys og gjennomgående 3-roms i høy 1. etasje
- Vestvendt balkong på 13 m²
- Fin utsikt fra balkongen
- Disponerer kjellerbod
- Bad oppusset 2019
- Parkeringsplass
- Heis i bygget
- Kort vei til alt!
Dette er en lys og gjennomgående leilighet med god planløsning bestående av entré, stue, kjøkken, baderom og to soverom. Fra stuen er det utgang til en vestvendt balkong på 13 m² med fin utsikt og gode solforhold. I tillegg disponeres en parkeringsplass og ekstern kjellerbod.
Leiligheten ligger i et attraktivt område med gangavstand til alle servicefunksjoner, kjøpesentre, skoler, barnehager og gode kollektivtilbud.
Verdt å merke seg:
- Lys og gjennomgående 3-roms i høy 1. etasje
- Vestvendt balkong på 13 m²
- Fin utsikt fra balkongen
- Disponerer kjellerbod
- Bad oppusset 2019
- Parkeringsplass
- Heis i bygget
- Kort vei til alt!
NB: Knappen for å vise hele beskrivelsen har kun en visuell effekt.
NB: Knappen for å vise hele beskrivelsen har kun en visuell effekt.
Salgsoppgaven beskriver vesentlig og lovpålagt informasjon om eiendommen
Se komplett salgsoppgaveNyttige lenker
Nærområdet
Nordvik Lørenskog
Annonseinformasjon
| FINN-kode | 449533287 |
|---|---|
| Sist endret | 19. feb. 2026 13:54 |
| Referanse | 65-0014/26 |
Annonsene kan være mangelfulle i forhold til lovpålagt opplysningsplikt. Før bindende avtale inngås oppfordres interessenter til å innhente komplett informasjon fra meglerforetaket, selger eller utleier.






































