Bildegalleri

Aktiv Eiendomsmegling v/ Maria A. Klinge ønsker velkommen til Konsul Knudtzons gate 65. Foto: André Tomas Ormset-Paredes
Andelsleilighet med balkong og fantastisk utsikt, nær bysentrum og alle fasiliteter.
Prisantydning990 000 kr
Nøkkelinfo
- Boligtype
- Leilighet
- Eieform
- Andel
- Soverom
- 0
- Internt bruksareal
- 39 m² (BRA-i)
- Bruksareal
- 39 m²
- Balkong/Terrasse
- 5 m² (TBA)
- Etasje
- 2
- Byggeår
- 1965
- Energimerking
- Rom
- 1
- Tomteareal
- 2 047 m² (eiet)
Fasiliteter
Balkong/Terrasse
Fellesvaskeri
Ingen gjenboere
Kabel-TV
Offentlig vann/kloakk
Parkett
Peis/Ildsted
Sentralt
Utsikt
Om boligen
Aktiv Eiendomsmegling v/ Maria A. Klinge ønsker velkommen til denne praktiske leiligheten i Konsul Knudtzons gate, Kristiansund. Med en sentral beliggenhet, er du bare noen få minutters gange fra sentrum og alle nødvendige fasiliteter. Leilighetsbygget er beliggende på pynten av Batterihammaren, og har unik fjord- og fjellutsikt og flotte solforhold!
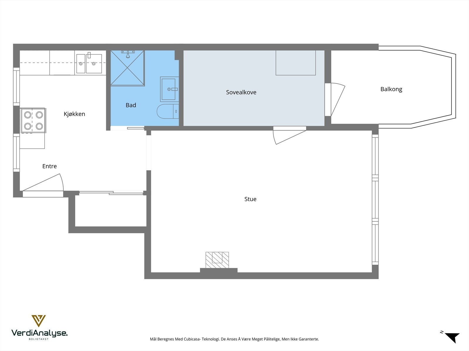
Leiligheten ligger i 2. etasje og har et bruksareal på 39 m². Bygget i 1965, tilbyr boligen en enkel til normal standard med oppgraderte fasader og vinduer. Planløsningen inkluderer entré/kjøkken, stue, bad og sovealkove. Badet har dusjkabinett og opplegg for vaskemaskin, mens kjøkkenet er utstyrt med komfyr og kjøleskap. Den sørvendte balkongen på 5 m² gir en fin uteplass med utsikt mot Sørsundet og Bremsnesfjorden. Parkering på felles tomt.
Leiligheten ligger i 2. etasje og har et bruksareal på 39 m². Bygget i 1965, tilbyr boligen en enkel til normal standard med oppgraderte fasader og vinduer. Planløsningen inkluderer entré/kjøkken, stue, bad og sovealkove. Badet har dusjkabinett og opplegg for vaskemaskin, mens kjøkkenet er utstyrt med komfyr og kjøleskap. Den sørvendte balkongen på 5 m² gir en fin uteplass med utsikt mot Sørsundet og Bremsnesfjorden. Parkering på felles tomt.
NB: Knappen for å vise hele beskrivelsen har kun en visuell effekt.
NB: Knappen for å vise hele beskrivelsen har kun en visuell effekt.
Salgsoppgaven beskriver vesentlig og lovpålagt informasjon om eiendommen
Se komplett salgsoppgaveNærområdet
Aktiv Kristiansund
Annonseinformasjon
| FINN-kode | 449527234 |
|---|---|
| Sist endret | 12. mai 2026 08:54 |
| Referanse | 1601260007 |
Annonsene kan være mangelfulle i forhold til lovpålagt opplysningsplikt. Før bindende avtale inngås oppfordres interessenter til å innhente komplett informasjon fra meglerforetaket, selger eller utleier.

























