Bildegalleri

Velkommen til Skullerudveien 91 - Presentert av Blenor Hadergjonaj v/Krogsveen.
Skullerud
Stor & luftig 2-roms selveierleilighet. Solrik balkong med flott utsikt. Ingen innsyn. Garasjeplass. Nær marka.
Prisantydning4 190 000 kr
Nøkkelinfo
- Boligtype
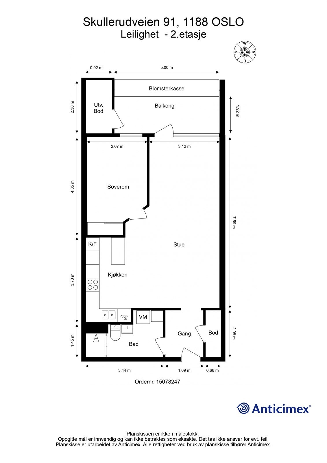
- Leilighet
- Eieform
- Eier (Selveier)
- Soverom
- 1
- Internt bruksareal
- 58 m² (BRA-i)
- Bruksareal
- 64 m²
- Eksternt bruksareal
- 6 m² (BRA-e)
- Balkong/Terrasse
- 10 m² (TBA)
- Etasje
- 2
- Byggeår
- 1989
- Energimerking
- E - Rød
- Rom
- 2
- Tomteareal
- 39 794 m² (eiet)
Fasiliteter
Balkong/Terrasse
Barnevennlig
Bredbåndstilknytning
Garasje/P-plass
Kjæledyr tillatt
Ingen gjenboere
Kabel-TV
Offentlig vann/kloakk
Rolig
Sentralt
Utsikt
Bademulighet
Turterreng
Lademulighet
Om boligen
Velkommen til Skullerudeien 91!
Stor 2-roms leilighet med sørvendt balkong, masse sol og flott utsikt. Fredfullt og rolig med bilfrie fellesområder nær marka. Fra leiligheten er det kort gangavstand til offentlig kommunikasjon og dagligvarebutikker. Leiligheten holder en gjennomgående god standard.
Høydepunkter:
Stor 2-roms leilighet med sørvendt balkong, masse sol og flott utsikt. Fredfullt og rolig med bilfrie fellesområder nær marka. Fra leiligheten er det kort gangavstand til offentlig kommunikasjon og dagligvarebutikker. Leiligheten holder en gjennomgående god standard.
Høydepunkter:
- Stor 2-roms selveier
- Garasjeplass med el-lader
- Lave felleskostnader
- Ingen forkjøpsrett
- Vestvendt balkong med gode solforhold
- Stue med gode lysforhold
- Soverom med god garderobeplass
- 2 medfølgende boder
- Nær marka med flotte tur- og skimuligheter
- Nærhet til Østensjøvannet, Østmarka og Nøklevann
- Nær buss, T-bane og dagligvare
Velkommen til hyggelig visning!
NB: Knappen for å vise hele beskrivelsen har kun en visuell effekt.
NB: Knappen for å vise hele beskrivelsen har kun en visuell effekt.
Salgsoppgaven beskriver vesentlig og lovpålagt informasjon om eiendommen
Se komplett salgsoppgaveNyttige lenker
Nærområdet
Krogsveen Sagene
Verdien av en god megler.
Annonseinformasjon
| FINN-kode | 449510964 |
|---|---|
| Sist endret | 08. feb. 2026 10:31 |
| Referanse | KR52.263 |
Annonsene kan være mangelfulle i forhold til lovpålagt opplysningsplikt. Før bindende avtale inngås oppfordres interessenter til å innhente komplett informasjon fra meglerforetaket, selger eller utleier.



































