Bildegalleri

EIE Tønsberg v/Tonny Nielsen presenterer Døsserødveien 100! Foto: BK Foto (Fotograf Bjørn Kjærra)

Innholdsrik enebolig i rekke med lys og delikat innredning, veletablert boligområde på Presterød!

Prisantydning5 490 000 kr
Totalpris
5 628 600 kr
Omkostninger
138 600 kr
Kommunale avg.
19 711 kr per år
Formuesverdi
1 096 710 kr

Nøkkelinfo

Boligtype
Enebolig
Eieform
Eier (Selveier)
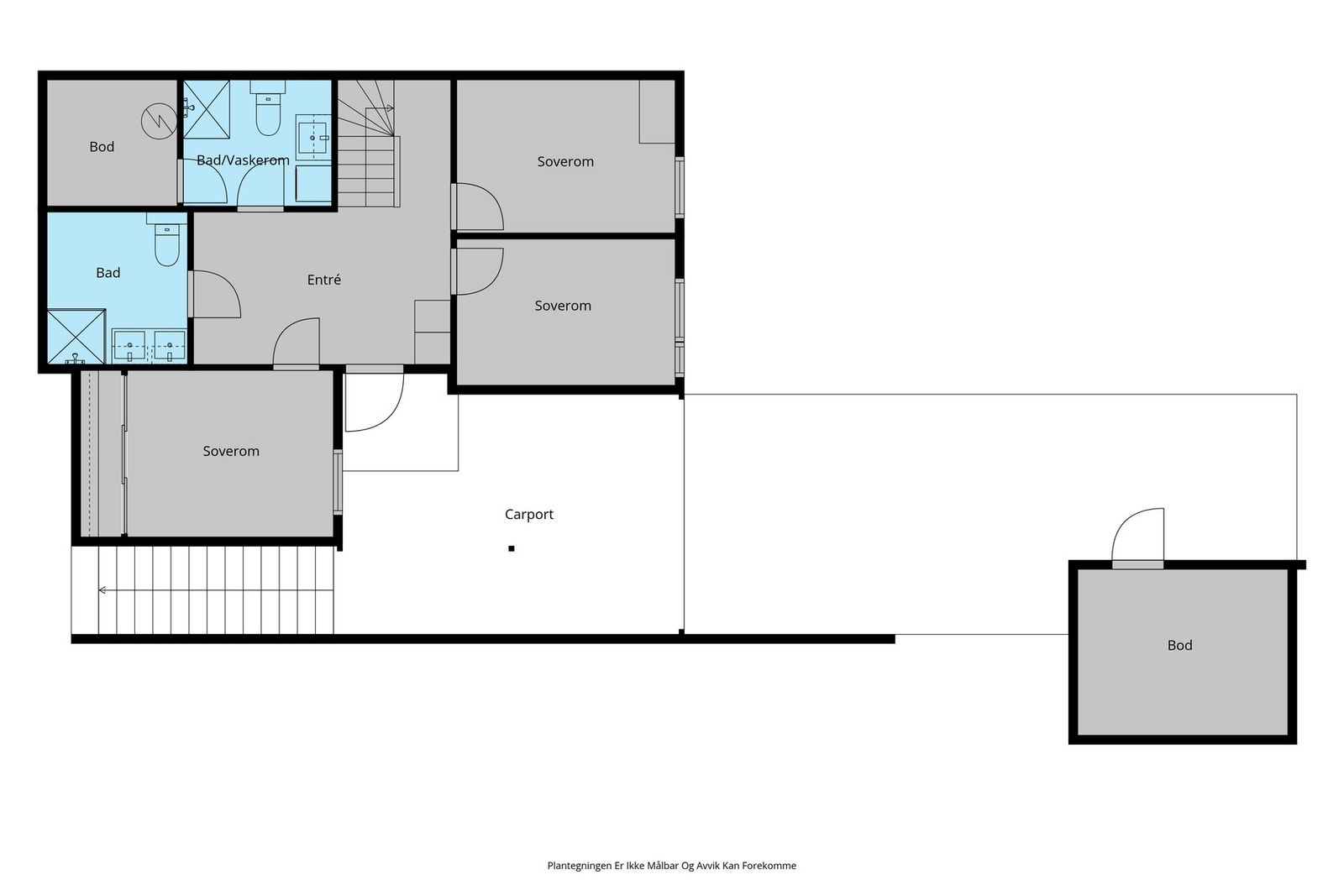
Soverom
3
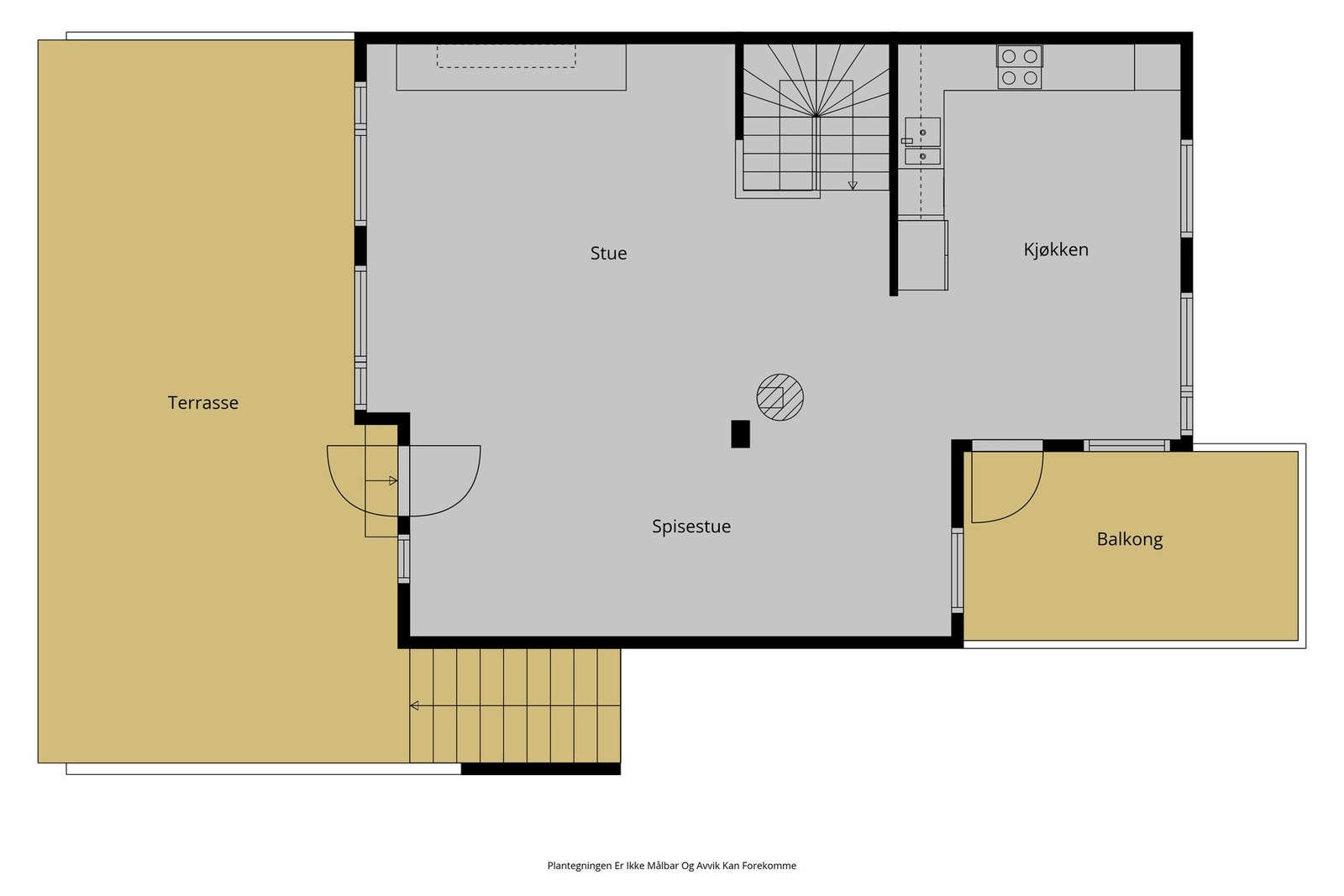
Internt bruksareal
131 m² (BRA-i)
Bruksareal
131 m²
Balkong/Terrasse
55 m² (TBA)
Byggeår
2007
Energimerking
C - Lysegrønn
Tomteareal
361 m² (eiet)

Les mer om bruksareal her

Fasiliteter

Barnevennlig
Balkong/Terrasse
Garasje/P-plass
Offentlig vann/kloakk
Peis/Ildsted
Turterreng
Sentralt
Bredbåndstilknytning
Moderne
Rolig
Lademulighet

Visning

søndag, 15. februar
14:00 – 15:00
Visningspåmelding

Om boligen

Velkommen til Døsserødveien 100 - en innholdsrik enebolig i rekke fra 2007, beliggende i et etablert og attraktivt boligområde på Presterød i Tønsberg. Her bor du med kort vei til skoler, barnehager og gode kollektivforbindelser, samt gangavstand til sentrum og Presterødkrysset. Området byr også på lekeplasser, idrettsanlegg, tur- og friluftsområder og flere populære strender.

Boligen har BRA 131 m² over to etasjer, med en praktisk planløsning som passer godt for både familier og deg som ønsker god plass. Her får du blant annet 3 soverom, to bad (hvorav ett bad/vaskerom), samt en hyggelig stue med peisovn og varmepumpe. Boligen har også balansert ventilasjon og varmekabler i gulv på bad, vaskerom og i hall.

Eiendommen har eiet tomt med gressplen, beplantning og prydbusker, samt parkering i carport med elbil lader samt i egen gårdsplass. Velkommen til visning!

Salgsoppgaven beskriver vesentlig og lovpålagt informasjon om eiendommen

Se komplett salgsoppgave

Nærområdet

Annonseinformasjon

FINN-kode449503064
Sist endret07. feb. 2026 08:52
Referanse67260008

Rapporter annonse

Annonsene kan være mangelfulle i forhold til lovpålagt opplysningsplikt. Før bindende avtale inngås oppfordres interessenter til å innhente komplett informasjon fra meglerforetaket, selger eller utleier.