Bildegalleri

DNB Eiendom v/Michael A. Meyer (480 62 870) ønsker deg velkommen til Østsiden/Mineberget og første etasje i Lunteveien 28B!
Mineberget
Stor 2-roms leilighet med trappefri adkomst | Romslig, vestvendt terrasse | Gangavstand til alt!
Prisantydning2 250 000 kr
Nøkkelinfo
- Boligtype
- Leilighet
- Eieform
- Andel
- Soverom
- 1
- Internt bruksareal
- 78 m² (BRA-i)
- Bruksareal
- 78 m²
- Balkong/Terrasse
- 29 m² (TBA)
- Etasje
- 1
- Byggeår
- 1981
- Energimerking
- F - Rød
- Rom
- 2
- Tomteareal
- 9 105 m² (eiet)
Fasiliteter
Balkong/Terrasse
Barnevennlig
Bredbåndstilknytning
Hage
Kabel-TV
Offentlig vann/kloakk
Parkett
Rolig
Sentralt
Utsikt
Turterreng
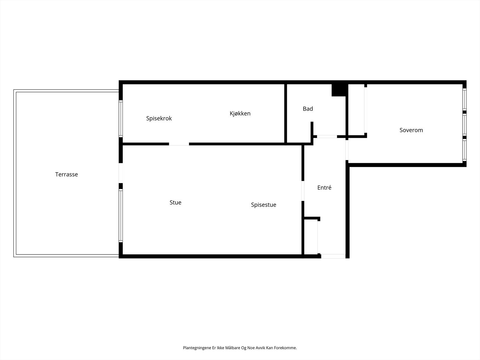
Om boligen
Sentral beliggenhet på Østsiden, med kort vei til butikker, legekontor, apotek, vinmonopol, bussholdeplass og Gamlebyen. Området er kjent for sitt gode miljø og trygghet. Her kan du nyte solrike dager fra morgen til kveld på den vestvendte terrassen.
Leiligheten har en rekke gode kvaliteter og vi ønsker å trekke frem:
Leiligheten har en rekke gode kvaliteter og vi ønsker å trekke frem:
- Lys og luftig stue med utgang til terrasse
- 29 m² vestvendt terrasse med gode solforhold
- Pent og adskilt kjøkken med mye benkplass og skap samt spiseplass
- Stort soverom med god plass til dobbeltseng og garderobeskap
- Pent baderom rett ved soverom
- Parkering og muligheter for garasjeplass (venteliste)
- Ingen dokumentavgift
- Kort vei til offentlig kommunikasjon
NB: Knappen for å vise hele beskrivelsen har kun en visuell effekt.
NB: Knappen for å vise hele beskrivelsen har kun en visuell effekt.
Salgsoppgaven beskriver vesentlig og lovpålagt informasjon om eiendommen
Se komplett salgsoppgaveNyttige lenker
Nærområdet
DNB Eiendom AS
Fra hjem til hjem
Annonseinformasjon
| FINN-kode | 449498600 |
|---|---|
| Sist endret | 04. feb. 2026 18:28 |
| Referanse | 217260054 |
Annonsene kan være mangelfulle i forhold til lovpålagt opplysningsplikt. Før bindende avtale inngås oppfordres interessenter til å innhente komplett informasjon fra meglerforetaket, selger eller utleier.





























