Bildegalleri

Richard Askjem V/ Eiendomsmegler 1 Sola presenterer Sandesletta 23B! Foto: Trond-Eirik Husvæg
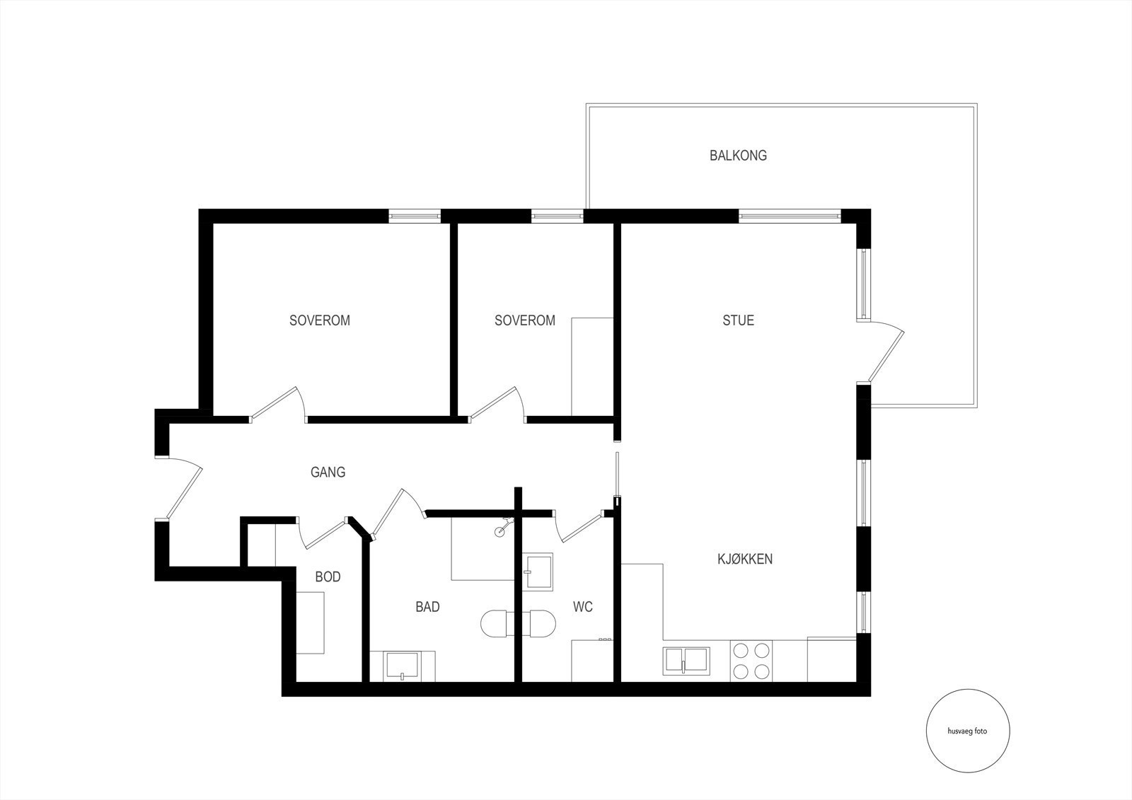
Tiltalende, nyere hjørneleilighet | 2 soverom | bad og vaskerom m/ wc | Fordelaktig beliggenhet | garasjeplass | Heis
Prisantydning5 150 000 kr
Nøkkelinfo
- Boligtype
- Leilighet
- Eieform
- Eier (Selveier)
- Soverom
- 2
- Internt bruksareal
- 78 m² (BRA-i)
- Bruksareal
- 84 m²
- Eksternt bruksareal
- 6 m² (BRA-e)
- Balkong/Terrasse
- 12 m² (TBA)
- Etasje
- 2
- Byggeår
- 2018
- Energimerking
- A - Gul
- Rom
- 3
- Tomteareal
- 1 153 m² (eiet)
Fasiliteter
Balkong/Terrasse
Barnevennlig
Bredbåndstilknytning
Garasje/P-plass
Heis
Kjæledyr tillatt
Kabel-TV
Offentlig vann/kloakk
Parkett
Rolig
Sentralt
Balansert ventilasjon
Visning
onsdag, 11. februar
16:30 – 17:30
Ønsker du å delta på visningen ber vi deg melde deg på slik at vi vet at du kommer. Da kan vi bistå alle best mulig og gi deg tiden du trenger på visningen. Kontakt gjerne megler før visning hvis du har spørsmål. Visningen avholdes bare dersom det er påmeldte. Hvis det ikke er oppsatt visningstidspunkt eller tidspunkt ikke passer, kontakt megler.
VisningspåmeldingOm boligen
Richard Askjem V/ Eiendomsmegler 1 Sola presenterer Sandesletta 23B, en lys og romslig hjørneleilighet i 2. etasje med store vindusflater og flott utsyn mot bakgård og fellesområder. Åpen stue-kjøkkenløsning gir en sosial og luftig romfølelse med god plass til daglig- og spisestue, samt utgang til vinkelformet balkong på 12 kvm. Tidløst og delikat kjøkken med integrerte hvitevarer (frittstående kjøle-/fryseskap) og god skapplass. Leiligheten har 2 romslige soverom, stort flislagt bad med gulvvarme og dusjhjørne, samt separat vaskerom kombinert med toalettrom. Innvendig og ekstern bod gir rikelig oppbevaringsplass. Heis fra garasjeanlegg med egen parkeringsplass. Meget sentral beliggenhet i gangavstand fra Sola sentrum.
NB: Knappen for å vise hele beskrivelsen har kun en visuell effekt.
NB: Knappen for å vise hele beskrivelsen har kun en visuell effekt.
Salgsoppgaven beskriver vesentlig og lovpålagt informasjon om eiendommen
Se komplett salgsoppgaveNyttige lenker
Nærområdet
EiendomsMegler 1 Sola
En del av Sparebank 1 Sør-Norge
Annonseinformasjon
| FINN-kode | 449497299 |
|---|---|
| Sist endret | 04. feb. 2026 12:09 |
| Referanse | 2210260008 |
Annonsene kan være mangelfulle i forhold til lovpålagt opplysningsplikt. Før bindende avtale inngås oppfordres interessenter til å innhente komplett informasjon fra meglerforetaket, selger eller utleier.





































