Bildegalleri

Velkommen til Nesåsveien 11 - En innbydende og stor 4-roms toppleilighet med renoveringsbehov, beliggende i rolige og landlige omgivelser på Nesås i Lørenskog, med nærhet til skog og mark samt kort vei til byliv og servicetilbud.
Gjennomgående 4-roms toppleilighet med stort potensial | Garasjeplass | 2 bad | Balkonger på over 20 kvm
Prisantydning5 500 000 kr
Nøkkelinfo
- Boligtype
- Leilighet
- Eieform
- Andel
- Soverom
- 3
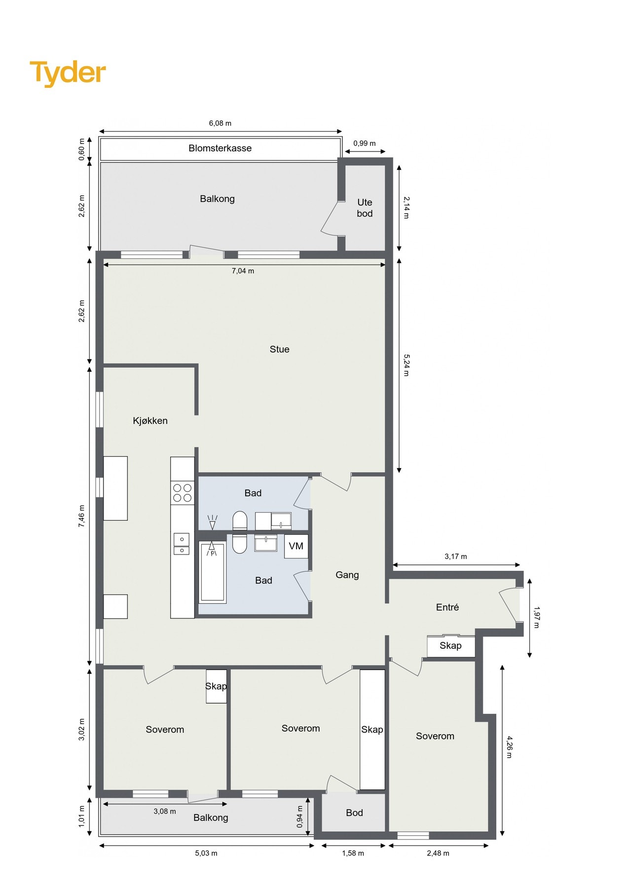
- Internt bruksareal
- 116 m² (BRA-i)
- Bruksareal
- 123 m²
- Eksternt bruksareal
- 7 m² (BRA-e)
- Balkong/Terrasse
- 21 m² (TBA)
- Etasje
- 3
- Byggeår
- 2000
- Energimerking
- D - Gul
- Tomteareal
- 10 728 m² (eiet)
Fasiliteter
Barnevennlig
Balkong/Terrasse
Garasje/P-plass
Heis
Offentlig vann/kloakk
Parkett
Turterreng
Utsikt
Sentralt
Rolig
Visning
søndag, 15. februar
13:00 – 14:00
Velkommen til visning!
Alle våre visninger har påmelding. På denne måten sikrer vi at megler har god oversikt og tid til å imøtekomme alle interessenter på beste måte. Dette er veldig verdifullt for boligkjøpere og for oss. Det er enkelt å melde seg på, og du kan like enkelt melde deg av. Kontakt også gjerne megler i forkant av visning dersom du har spørsmål.
Om boligen
Velkommen til Nesåsveien 11 - En innbydende og stor 4-roms toppleilighet med renoveringsbehov, beliggende i rolige og landlige omgivelser på Nesåsen i Lørenskog, med nærhet til skog og mark samt kort vei til byliv og servicetilbud. Leiligheten har en praktisk planløsning med tre romslige soverom, hvor hovedsoverommet har rikelig med garderobeplass og direkte adkomst til bod på ca. 2 kvm, samt ett soverom med utgang til balkong på ca. 5 kvm. Videre har boligen en stor og lys stue med store vinduer, flott utsikt og utgang til balkong på ca. 16 kvm med gode solforhold og fantastisk utsikt, separat kjøkken med arealeffektiv løsning, to flislagte bad med gulvvarme, samt garasjeplass i bygget.
Høydepunkter:
- 4-roms toppleilighet
- Garasjeplass
- Direkte heisadkomst fra garasje til leilighet
- Balkonger på over 20 kvm, med fantastisk utsikt og gode solforhold
- 2 flislagte bad med gulvvarme
- 3 romslige soverom
- Stille og rolig beliggenhet på Nesåsen
- Nærhet til både skog og byliv
Høydepunkter:
- 4-roms toppleilighet
- Garasjeplass
- Direkte heisadkomst fra garasje til leilighet
- Balkonger på over 20 kvm, med fantastisk utsikt og gode solforhold
- 2 flislagte bad med gulvvarme
- 3 romslige soverom
- Stille og rolig beliggenhet på Nesåsen
- Nærhet til både skog og byliv
NB: Knappen for å vise hele beskrivelsen har kun en visuell effekt.
NB: Knappen for å vise hele beskrivelsen har kun en visuell effekt.
Salgsoppgaven beskriver vesentlig og lovpålagt informasjon om eiendommen
Se komplett salgsoppgaveNyttige lenker
Nærområdet

PrivatMegleren Lillestrøm
Kun det beste på dine vegne
Annonseinformasjon
| FINN-kode | 449487934 |
|---|---|
| Sist endret | 05. feb. 2026 11:52 |
| Referanse | 24260003 |
Annonsene kan være mangelfulle i forhold til lovpålagt opplysningsplikt. Før bindende avtale inngås oppfordres interessenter til å innhente komplett informasjon fra meglerforetaket, selger eller utleier.





























