Bildegalleri

EiendomsMegler 1 ved Sondre Grønning har gleden av å presentere Rønningsbakken 23! Foto: Robin Syrstad EFKT.
Persaunet
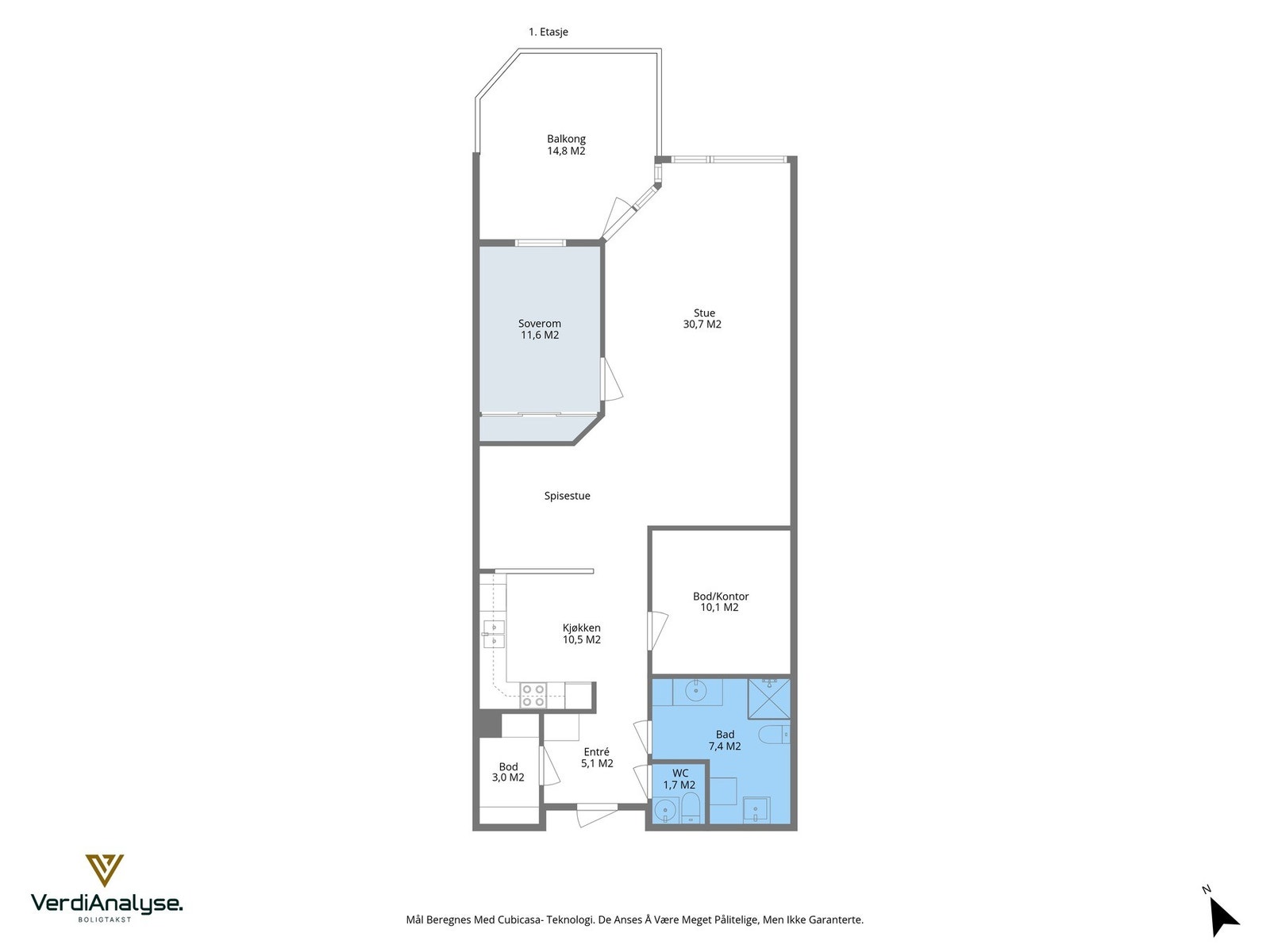
LYS OG LUFTIG 2-ROMS SELVEIERLEILIGHET PÅ 95 m² MED ATTRAKTIV BELIGGENHET | Balkong | Heis | P-plass i garasje | 3 boder
Prisantydning3 800 000 kr
Nøkkelinfo
- Boligtype
- Leilighet
- Eieform
- Eier (Selveier)
- Soverom
- 1
- Internt bruksareal
- 95 m² (BRA-i)
- Bruksareal
- 102 m²
- Eksternt bruksareal
- 7 m² (BRA-e)
- Balkong/Terrasse
- 15 m² (TBA)
- Etasje
- 1
- Byggeår
- 1993
- Energimerking
- C - Lysegrønn
- Rom
- 2
- Tomteareal
- 2 478 m² (eiet)
Fasiliteter
Barnevennlig
Balkong/Terrasse
Garasje/P-plass
Kabel-TV
Heis
Offentlig vann/kloakk
Parkett
Sentralt
Bredbåndstilknytning
Rolig
Visning
torsdag, 19. februar
16:30 – 17:30
Våre visninger har påmelding. Dette gjør vi for å kunne yte bedre service for våre kunder. Verdifullt for boligkjøper og for oss. Vi anbefaler at salgsoppgaven lastes ned digitalt før visning, og ring oss gjerne på forhånd for spørsmål om boligen. Passer ikke angitt tidspunkt, ta kontakt så finner vi en løsning. Skulle det mot formodning ikke være påmeldte til angitt visningstidspunkt vil ikke visning bli gjennomført.
Om boligen
Eiendomsmegler 1 v/Sondre Grønning har gleden av å presentere Rønningsbakken 23!
En lys og romslig 2-roms selveierleilighet i 1. etasje, med flott beliggenhet og en behagelig atmosfære. Perfekt for deg som vil bo sentralt, men samtidig skjerme deg fra trafikk og bystøy.
Kvaliteter verdt å nevne:
Velkommen til en hyggelig visning!
En lys og romslig 2-roms selveierleilighet i 1. etasje, med flott beliggenhet og en behagelig atmosfære. Perfekt for deg som vil bo sentralt, men samtidig skjerme deg fra trafikk og bystøy.
Kvaliteter verdt å nevne:
- Meget god beliggenhet i 1. etasje med heis i bygget.
- Svært romslige oppholdsrom med god planløsning.
- Store vindusflater med rikelig naturlig lysinnslipp.
- Romslig parkeringsplass i oppvarmet garasjekjeller.
- Gode lagringsmuligheter med innvendig bod i leiligheten og sportsbod i kjeller.
- Stor og solrik felles takterrasse med enestående utsikt
- Gang- og sykkelavstand til Valentinlystsenteret, Sirkus shopping, Solsiden og Lade.
Velkommen til en hyggelig visning!
NB: Knappen for å vise hele beskrivelsen har kun en visuell effekt.
NB: Knappen for å vise hele beskrivelsen har kun en visuell effekt.
Salgsoppgaven beskriver vesentlig og lovpålagt informasjon om eiendommen
Se komplett salgsoppgaveNyttige lenker
Nærområdet
EiendomsMegler 1 Valentinlyst
Vi loser deg trygt gjennom hele boligsalget
Annonseinformasjon
| FINN-kode | 449486750 |
|---|---|
| Sist endret | 10. feb. 2026 09:38 |
| Referanse | 34260026 |
Annonsene kan være mangelfulle i forhold til lovpålagt opplysningsplikt. Før bindende avtale inngås oppfordres interessenter til å innhente komplett informasjon fra meglerforetaket, selger eller utleier.

























