Bildegalleri

ARNEBERG
Innholdsrik bolig med sidebygget garasje, solrike uteplasser og flott utsikt - Landlig og rolig område på Arneberg
Prisantydning1 900 000 kr
Nøkkelinfo
- Boligtype
- Enebolig
- Eieform
- Eier (Selveier)
- Soverom
- 2
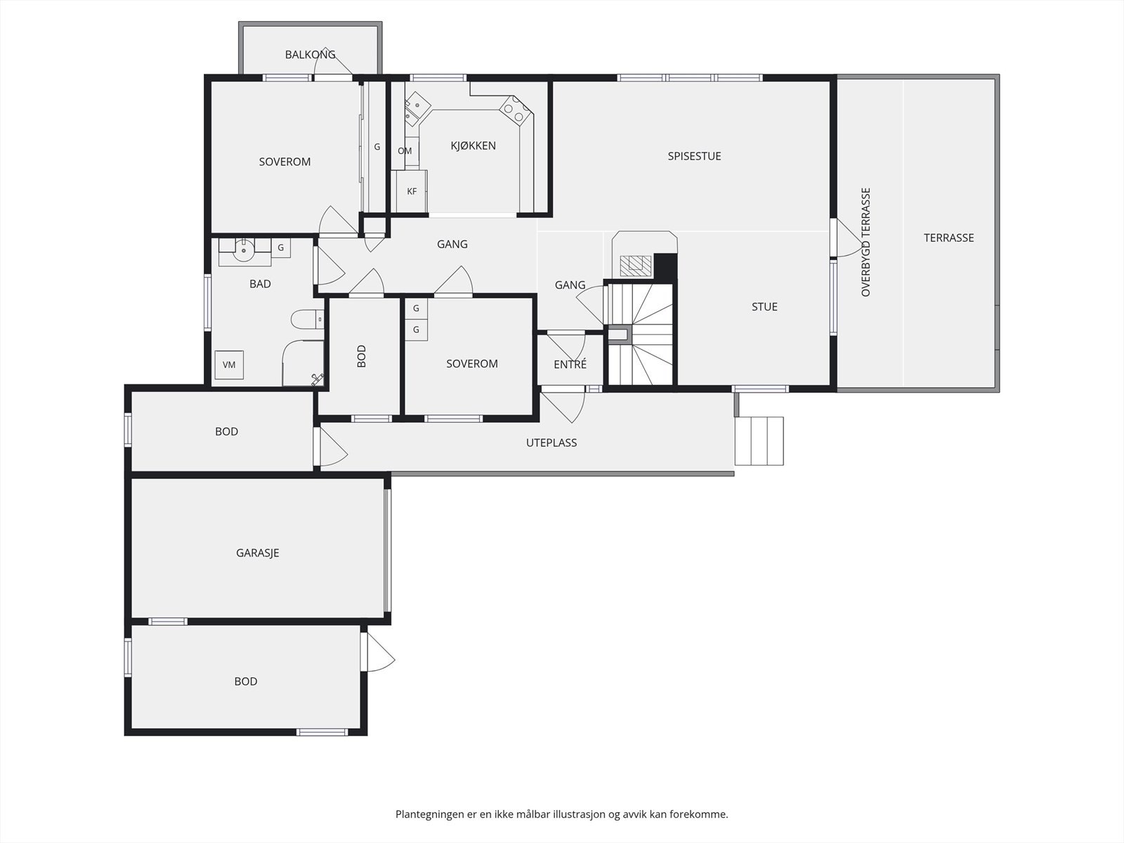
- Internt bruksareal
- 165 m² (BRA-i)
- Bruksareal
- 197 m²
- Eksternt bruksareal
- 32 m² (BRA-e)
- Balkong/Terrasse
- 49 m² (TBA)
- Etasje
- 2
- Byggeår
- 1977
- Tomteareal
- 1 051 m² (eiet)
Fasiliteter
Balkong/Terrasse
Barnevennlig
Garasje/P-plass
Hage
Peis/Ildsted
Rolig
Utsikt
Turterreng
Om boligen
Ser du etter hus på Arneberg kun en svipptur fra Flisa? Dette huset i Lyngdalsvegen 40 på Arneberg kan nemlig nå bli ditt. Et familievennlig og praktisk 70-tallshus hvor du kan flytte rett inn og som har godt med plass fordelt over to etasjer, men samtidig har du alt på en etasje om du ønsker det som to soverom, romslig stue, kjøkken og bad. Det er opp i gjennom årene oppgradert og holdt vedlike med blant annet bad fra 2007, det elektriske anlegget oppgradert i 2009, gjennomgående oppussede overflater i 1. etasje fra 2015, varmepumpe ny i 2017 og lagt ny taktekking i 2019 for å nevne noe.
Merk deg dette:
- Gjennomgående lys og pen standard
- Sidebygget garasje m/ boder
- Fine turområder i nærheten
- Ca. 7,5 km til Flisa
Merk deg dette:
- Gjennomgående lys og pen standard
- Sidebygget garasje m/ boder
- Fine turområder i nærheten
- Ca. 7,5 km til Flisa
NB: Knappen for å vise hele beskrivelsen har kun en visuell effekt.
NB: Knappen for å vise hele beskrivelsen har kun en visuell effekt.
Salgsoppgaven beskriver vesentlig og lovpålagt informasjon om eiendommen
Se komplett salgsoppgaveNærområdet
Aktiv Innlandet
Annonseinformasjon
| FINN-kode | 449483270 |
|---|---|
| Sist endret | 05. feb. 2026 07:32 |
| Referanse | 1212260008 |
Annonsene kan være mangelfulle i forhold til lovpålagt opplysningsplikt. Før bindende avtale inngås oppfordres interessenter til å innhente komplett informasjon fra meglerforetaket, selger eller utleier.



















































