Bildegalleri

Velkommen på visning i Birch-Reichenwalds gate 31!
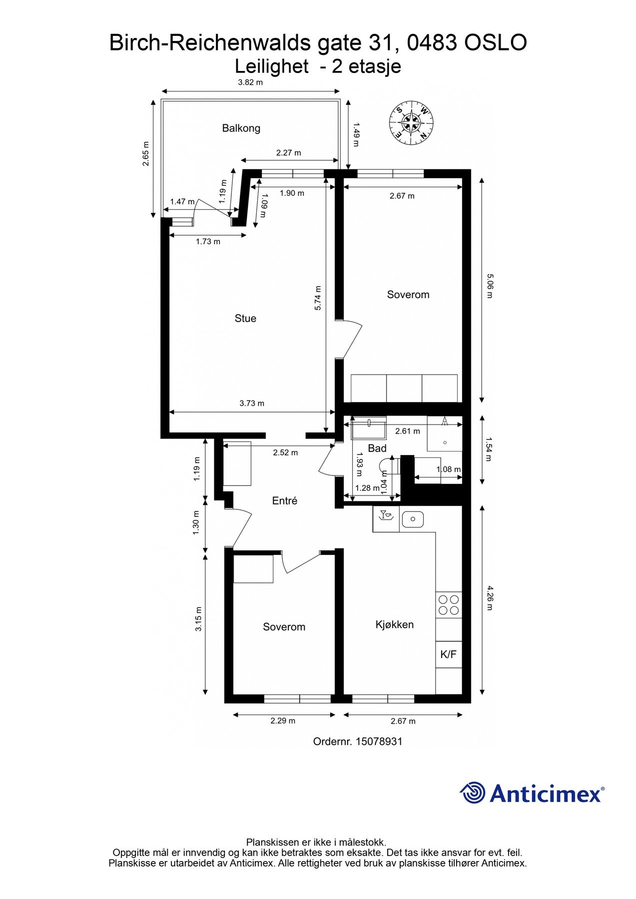
SANDAKER/STORO
Lys og innbydende 3-roms med god standard | Solrik, sydvendt balkong | Heis | "Alt" inkludert |IN-ordning | Garasje*
Prisantydning6 500 000 kr
Nøkkelinfo
- Boligtype
- Leilighet
- Eieform
- Andel
- Soverom
- 2
- Internt bruksareal
- 67 m² (BRA-i)
- Bruksareal
- 73 m²
- Eksternt bruksareal
- 6 m² (BRA-e)
- Balkong/Terrasse
- 8 m² (TBA)
- Etasje
- 2
- Byggeår
- 1958
- Energimerking
- E - Lysegrønn
- Rom
- 3
- Tomteareal
- 3 748 m² (eiet)
Fasiliteter
Barnevennlig
Balkong/Terrasse
Garasje/P-plass
Kabel-TV
Heis
Offentlig vann/kloakk
Parkett
Vaktmester-/vektertjeneste
Sentralt
Bredbåndstilknytning
Moderne
Rolig
Visning
søndag, 15. februar
12:30 – 13:30
Meld deg gjerne på visning eller kontakt eiendomsmegler for privatvisning.
mandag, 16. februar
16:30 – 17:00
Meld deg gjerne på visning eller kontakt eiendomsmegler for privatvisning.
Om boligen
Vi har for salg en romslig og innbydende 3-roms med attraktiv beliggenhet!
Leiligheten ligger i 2. etg. med enkel adkomst fra heis. Den gjennomgående planløsningen slipper lyset inn og rommene har en god størrelse som gjør de enkle å møblere.
Den hyggelige balkongen på 8 kvm vender mot syd og grønn bakgård. Her har man solen til 20.00/21.00-tiden om sommeren. Nå om vinteren er det behagelig at både varmtvann og fyring er inkludert i felleskostnadene. Vinduene fra 2013 isolerer godt.
Benytter man seg av IN-ordningen vil månedlige f.kostn. reduseres til kr 5.154,-
Det er flere garasjeplasser for salg i Grefsen stasjonsby kun 2 min unna.
* God lagringsplass i 2 boder
* Kjøkken og bad fra 2017
* Overflater og gulv fra 2021/2022
* Vinduer 2013
* Varmtvann, fyring og internett ink.
Leiligheten ligger i 2. etg. med enkel adkomst fra heis. Den gjennomgående planløsningen slipper lyset inn og rommene har en god størrelse som gjør de enkle å møblere.
Den hyggelige balkongen på 8 kvm vender mot syd og grønn bakgård. Her har man solen til 20.00/21.00-tiden om sommeren. Nå om vinteren er det behagelig at både varmtvann og fyring er inkludert i felleskostnadene. Vinduene fra 2013 isolerer godt.
Benytter man seg av IN-ordningen vil månedlige f.kostn. reduseres til kr 5.154,-
Det er flere garasjeplasser for salg i Grefsen stasjonsby kun 2 min unna.
* God lagringsplass i 2 boder
* Kjøkken og bad fra 2017
* Overflater og gulv fra 2021/2022
* Vinduer 2013
* Varmtvann, fyring og internett ink.
NB: Knappen for å vise hele beskrivelsen har kun en visuell effekt.
NB: Knappen for å vise hele beskrivelsen har kun en visuell effekt.
Salgsoppgaven beskriver vesentlig og lovpålagt informasjon om eiendommen
Se komplett salgsoppgaveNærområdet
Schala &Partners Sagene
Verdien av lokalkunnskap
Annonseinformasjon
| FINN-kode | 449394388 |
|---|---|
| Sist endret | 09. feb. 2026 08:56 |
| Referanse | 19260022 |
Annonsene kan være mangelfulle i forhold til lovpålagt opplysningsplikt. Før bindende avtale inngås oppfordres interessenter til å innhente komplett informasjon fra meglerforetaket, selger eller utleier.






























