Bildegalleri

Velkommen til Morteruds gate 24! Pen og romslig 2-roms leilighet i 4. etasje med heis. (Foto: EFKT v/Pål Godager)
Hamar sentrum
Romslig 2-roms leilighet i Hamar sentrum - 4. etasje med heis - Vestvendt balkong mot rolig bakgård
Prisantydning2 450 000 kr
Nøkkelinfo
- Boligtype
- Leilighet
- Eieform
- Andel
- Soverom
- 1
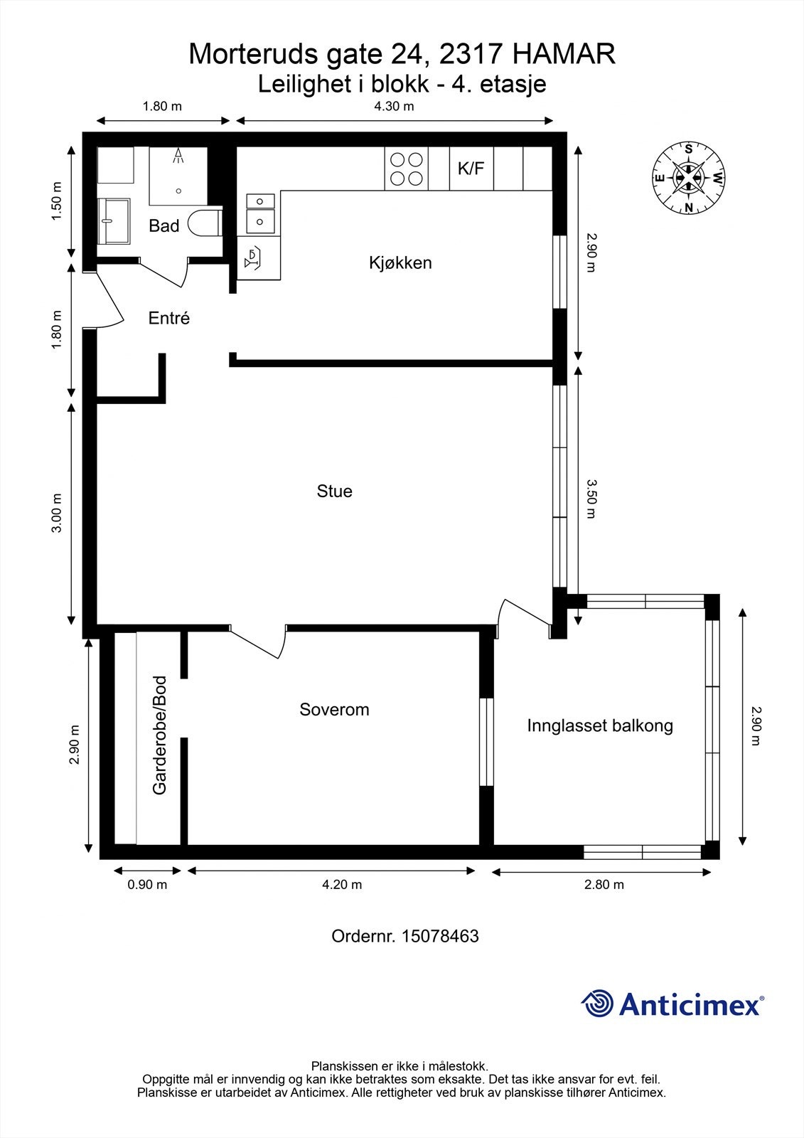
- Internt bruksareal
- 59 m² (BRA-i)
- Bruksareal
- 71 m²
- Eksternt bruksareal
- 3 m² (BRA-e)
- Innglasset balkong
- 9 m² (BRA-b)
- Etasje
- 4
- Byggeår
- 1963
- Energimerking
- C - Lysegrønn
- Rom
- 2
- Tomteareal
- 2 966 m² (eiet)
Fasiliteter
Balkong/Terrasse
Bredbåndstilknytning
Heis
Kabel-TV
Offentlig vann/kloakk
Rolig
Sentralt
Visning
onsdag, 11. februar
17:00 – 18:00
For å delta på visning, ber vi om at du melder deg på. Da sikrer vi at du får nødvendig informasjon og at det er satt av tilstrekkelig med tid. Kontakt megler dersom annet tidspunkt ønskes. Husk å lese salgsoppgaven før visningen, så du stiller forberedt.
Ønsker du kun å bli holdt orientert, kan du fra eiendommens hjemmeside få varsel om solgtpris, eller kontakte megler.
VisningspåmeldingOm boligen
Velkommen til Morteruds gate 24!
Pen og romslig 2-roms leilighet i 4. etasje med heis. Smart planløsning og god arealutnyttelse.
Leiligheten inneholder entré, bad, kjøkken, stue, soverom med eget garderoberom, samt disponering av bod i kjeller.
Badet ble oppgradert i 2024 og har flislagte overflater, gulvvarme, dusjhjørne, vegghengt toalett og opplegg for vaskemaskin.
Kjøkken med HTH-innredning, integrerte og frittstående hvitevarer og gode arbeidsflater.
Romslig stue med godt lysinnslipp og utgang til vestvendt balkong mot rolig bakgård.
Vannbåren varme via radiatorer gir jevn temperatur og forutsigbare bokostnader.
Meget sentral beliggenhet i Hamar sentrum med kort vei til butikker, kulturtilbud, kollektivtransport og Mjøsa.
Velkommen til en hyggelig visning!
Pen og romslig 2-roms leilighet i 4. etasje med heis. Smart planløsning og god arealutnyttelse.
Leiligheten inneholder entré, bad, kjøkken, stue, soverom med eget garderoberom, samt disponering av bod i kjeller.
Badet ble oppgradert i 2024 og har flislagte overflater, gulvvarme, dusjhjørne, vegghengt toalett og opplegg for vaskemaskin.
Kjøkken med HTH-innredning, integrerte og frittstående hvitevarer og gode arbeidsflater.
Romslig stue med godt lysinnslipp og utgang til vestvendt balkong mot rolig bakgård.
Vannbåren varme via radiatorer gir jevn temperatur og forutsigbare bokostnader.
Meget sentral beliggenhet i Hamar sentrum med kort vei til butikker, kulturtilbud, kollektivtransport og Mjøsa.
Velkommen til en hyggelig visning!
NB: Knappen for å vise hele beskrivelsen har kun en visuell effekt.
NB: Knappen for å vise hele beskrivelsen har kun en visuell effekt.
Salgsoppgaven beskriver vesentlig og lovpålagt informasjon om eiendommen
Se komplett salgsoppgaveNyttige lenker
Nærområdet
Krogsveen Hamar
Verdien av en god megler.
Annonseinformasjon
| FINN-kode | 449385349 |
|---|---|
| Sist endret | 04. feb. 2026 07:40 |
| Referanse | KR65.2618 |
Annonsene kan være mangelfulle i forhold til lovpålagt opplysningsplikt. Før bindende avtale inngås oppfordres interessenter til å innhente komplett informasjon fra meglerforetaket, selger eller utleier.



























