Bildegalleri

DNB Eiendom v/ Joachim Vågen tlf. 91712768 ønsker deg velkommen til Nordvikvegen 233!
Martodden /Hamar Vest
Strøken 2-roms eierleilighet fra 2023 med attraktiv beliggenhet - Stor markterrasse - Carportplass og bod - Sentralt
Prisantydning2 650 000 kr
Nøkkelinfo
- Boligtype
- Leilighet
- Eieform
- Eier (Selveier)
- Soverom
- 1
- Internt bruksareal
- 32 m² (BRA-i)
- Bruksareal
- 35 m²
- Eksternt bruksareal
- 3 m² (BRA-e)
- Balkong/Terrasse
- 11 m² (TBA)
- Etasje
- 1
- Byggeår
- 2023
- Energimerking
- B - Lysegrønn
- Rom
- 2
- Tomteareal
- 4 427 m² (eiet)
Fasiliteter
Balkong/Terrasse
Garasje/P-plass
Heis
Offentlig vann/kloakk
Parkett
Sentralt
Turterreng
Balansert ventilasjon
Visning
onsdag, 11. februar
16:30 – 17:30
Våre visninger har påmelding. Dette gjør vi for å kunne yte bedre service for våre kunder. Verdifullt for boligkjøper og for oss. Vi anbefaler at salgsoppgaven leses før visning, og ring oss gjerne på forhånd for spørsmål om boligen. Passer ikke angitt tidspunkt, ta kontakt så finner vi en løsning. Skulle det mot formodning ikke være påmeldte 4 timer før angitt visningstidspunkt vil ikke visning bli gjennomført.
VisningspåmeldingOm boligen
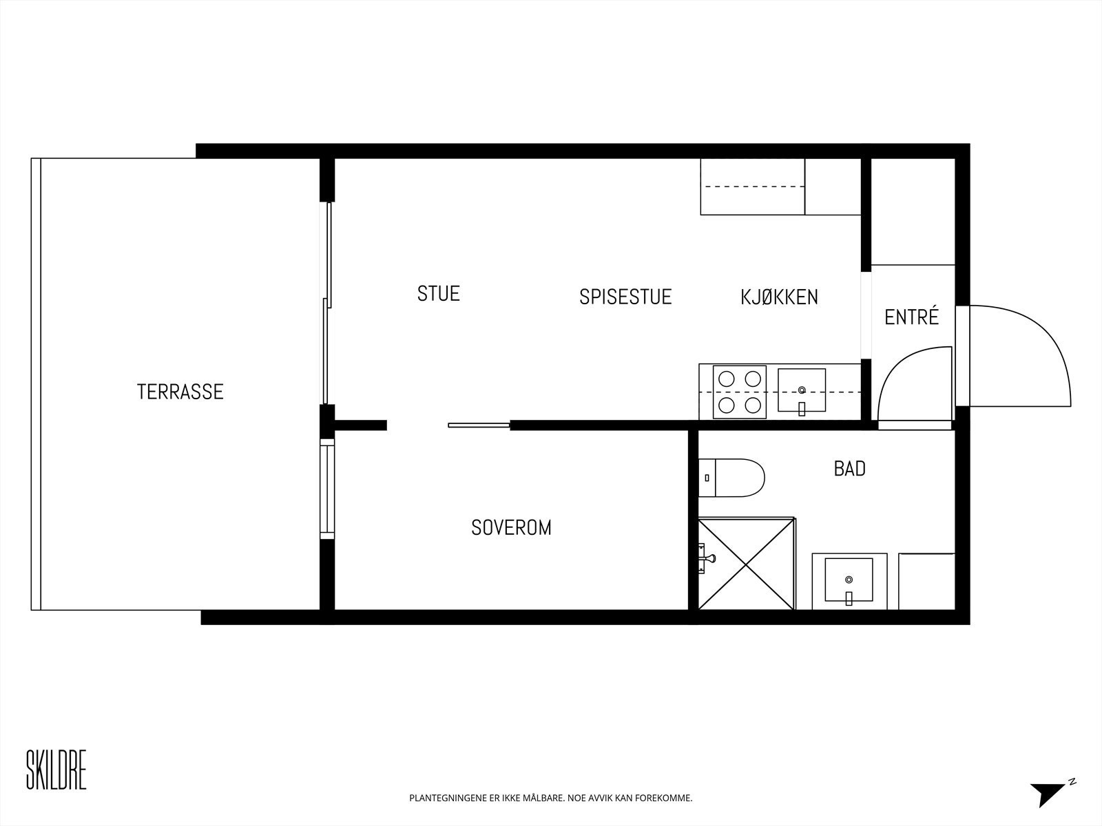
Velkommen til Nordvikvegen 233 - En lys og moderne 2-roms selveierleilighet fra 2023. Leiligheten har en meget flott beliggenhet på Nordviken/Martodden, like nord for Domkirkeodden og ca. 2,5 km vest for Hamar sentrum. Her bor du i et attraktivt nabolag med kort gangavstand til servicetilbud, gode kollektivforbindelser og flotte turområder som Domkirkodden, Furuberget og ikke minst langs Mjøsa.
Leiligheten har en rekke gode kvaliteter og vi ønsker å trekke frem:
Leiligheten har en rekke gode kvaliteter og vi ønsker å trekke frem:
- Moderne standard
- Stor markterrasse mot syd/vest
- Arealeffektiv og lettstelt planløsning
- Moderne kjøkken m/integrerte hvitevarer
- Bad/vaskerom m/vannbåren gulvvarme
- Biloppstillingsplass i felles carport
- Innvendig bod og ekstern kjellerbod
NB: Knappen for å vise hele beskrivelsen har kun en visuell effekt.
NB: Knappen for å vise hele beskrivelsen har kun en visuell effekt.
Salgsoppgaven beskriver vesentlig og lovpålagt informasjon om eiendommen
Se komplett salgsoppgaveNyttige lenker
Nærområdet
DNB Eiendom AS
Fra hjem til hjem
Annonseinformasjon
| FINN-kode | 449385345 |
|---|---|
| Sist endret | 04. feb. 2026 20:33 |
| Referanse | 517260012 |
Annonsene kan være mangelfulle i forhold til lovpålagt opplysningsplikt. Før bindende avtale inngås oppfordres interessenter til å innhente komplett informasjon fra meglerforetaket, selger eller utleier.




























