Bildegalleri

Velkommen til Lomveien 30! Foto: Hanna Linnea Kristensen.
Visning: Ons. 18.02 v/ påmeld. | Enebolig med attraktiv beliggenhet i Narvik! | Renoveringsobjekt | Garasje | Utsikt
Prisantydning2 500 000 kr
Nøkkelinfo
- Boligtype
- Enebolig
- Eieform
- Eier (Selveier)
- Soverom
- 3
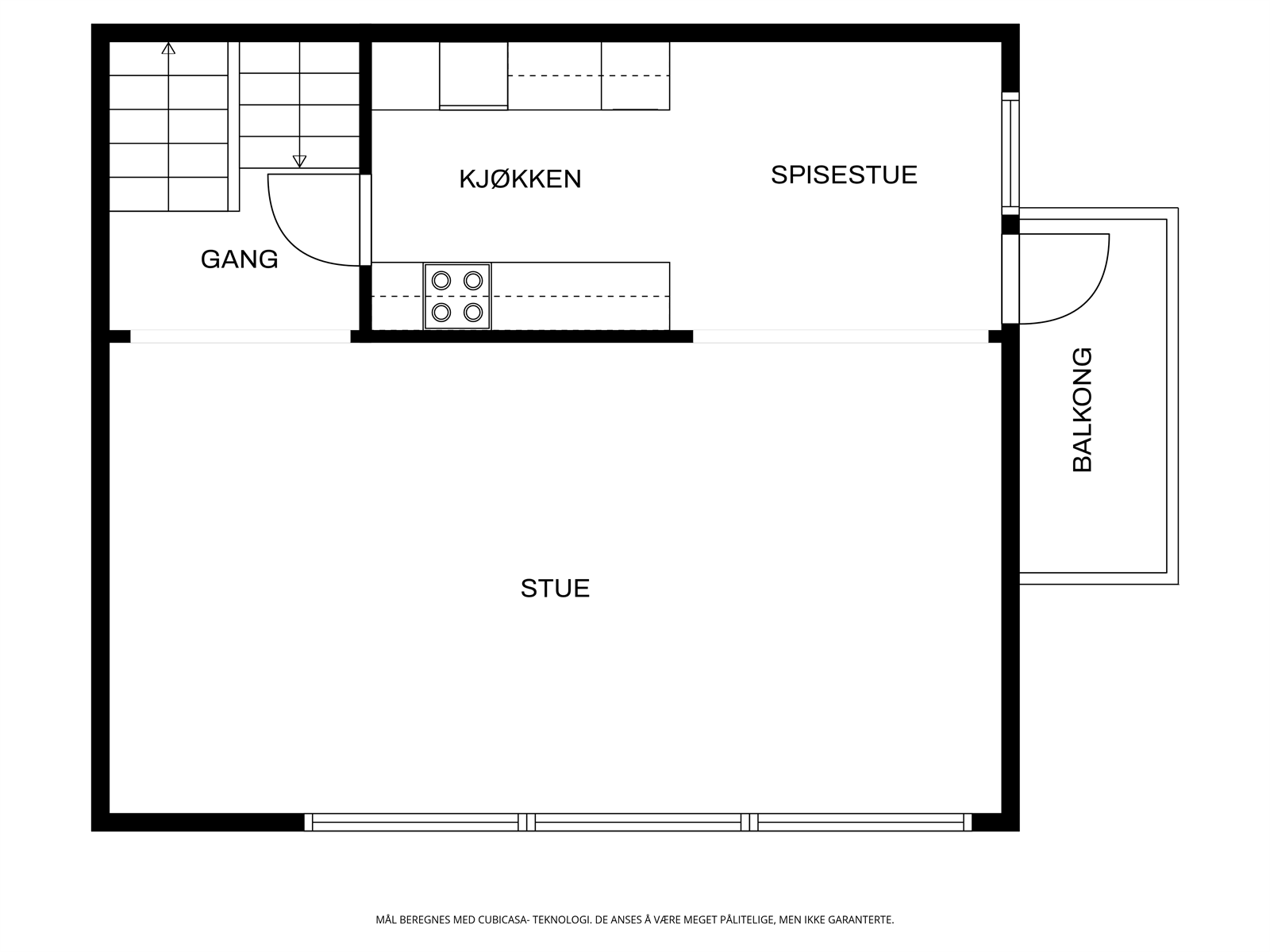
- Internt bruksareal
- 169 m² (BRA-i)
- Bruksareal
- 184 m²
- Eksternt bruksareal
- 15 m² (BRA-e)
- Balkong/Terrasse
- 9 m² (TBA)
- Etasje
- 3
- Byggeår
- 1969
- Energimerking
- G - Rød
- Rom
- 4
- Tomteareal
- 345 m²
Fasiliteter
Alpinanlegg
Balkong/Terrasse
Barnevennlig
Garasje/P-plass
Hage
Kjæledyr tillatt
Offentlig vann/kloakk
Rolig
Sentralt
Utsikt
Bademulighet
Turterreng
Visning
onsdag, 18. februar
16:00 – 17:00
onsdag, 18. februar
12:00 – 13:00
Alle våre visninger har påmelding. Dette gjør vi for å planlegge visningene best mulig, og ha god tid til de som kommer. Visninger uten påmeldte deltakere vil bli avlyst.
VisningspåmeldingOm boligen
Velkommen til Lomveien 30, her presentert av eiendomsmegler Martin Tjosås Pettersen!
Enebolig med rolig og barnevennlig beliggenhet. Her har du flotte solforhold på sommerstid, nærhet til havet, samtidig som du er en spasertur unna Narvik Sentrum. Garasje samt carport.
Boligen har for det meste standard fra byggeår, noe som gir deg gode muligheter til å skape ditt helt eget hjem.
Høres dette interessant ut? Trykk på "se komplett salgsoppgave" for mer informasjon.
For visning, benytt knappen "påmelding til visning", eventuelt kontakt megler!
Enebolig med rolig og barnevennlig beliggenhet. Her har du flotte solforhold på sommerstid, nærhet til havet, samtidig som du er en spasertur unna Narvik Sentrum. Garasje samt carport.
Boligen har for det meste standard fra byggeår, noe som gir deg gode muligheter til å skape ditt helt eget hjem.
Høres dette interessant ut? Trykk på "se komplett salgsoppgave" for mer informasjon.
For visning, benytt knappen "påmelding til visning", eventuelt kontakt megler!
NB: Knappen for å vise hele beskrivelsen har kun en visuell effekt.
NB: Knappen for å vise hele beskrivelsen har kun en visuell effekt.
Salgsoppgaven beskriver vesentlig og lovpålagt informasjon om eiendommen
Se komplett salgsoppgaveNyttige lenker
Nærområdet
JENSSEN & BOLLE EIENDOMSMEGLING AS
Jenssen & Bolle Eiendomsmegling
Annonseinformasjon
| FINN-kode | 449370997 |
|---|---|
| Sist endret | 06. feb. 2026 12:21 |
| Referanse | JOB1.25243 |
Annonsene kan være mangelfulle i forhold til lovpålagt opplysningsplikt. Før bindende avtale inngås oppfordres interessenter til å innhente komplett informasjon fra meglerforetaket, selger eller utleier.





















































