Bildegalleri

Velkommen til Vogts gate 18.
Moss sentrum- Rimelig 2-roms toppleilighet med takterrasse og parkeringsplass. Behov for oppgraderinger
Prisantydning1 800 000 kr
Nøkkelinfo
- Boligtype
- Leilighet
- Eieform
- Eier (Selveier)
- Soverom
- 1
- Internt bruksareal
- 46 m² (BRA-i)
- Bruksareal
- 46 m²
- Etasje
- 3
- Byggeår
- 1900
- Energimerking
- G - Rød
- Tomteareal
- 998 m² (eiet)
Fasiliteter
Balkong/Terrasse
Garasje/P-plass
Sentralt
Om boligen
Eirik Reinnel og Hasan Øzbal v/Privatmegleren Moss har gleden av å presentere Vogts gate 18!
- Rimelig 2-roms toppleilighet med takterrasse på 43 m².
- Selveierleilighet med meget sentral beliggenhet.
- Parkeringsplass.
- Leiligheten holder normal til enkel standard.
- Det bør påregnes noe oppgraderinger.
- Utleieobjekt!
- Muligheter for rask overtagelse av leiligheten.
Innhold
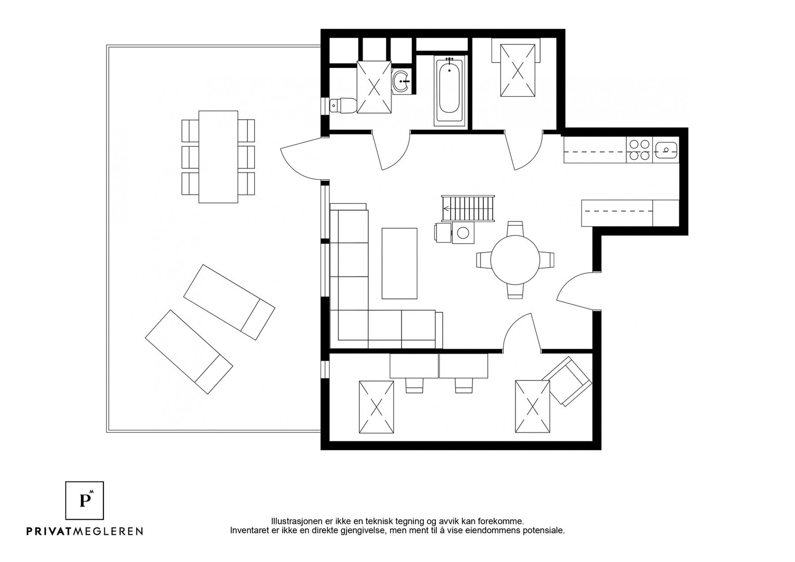
Gang, bod, bad, bod/sovealkove, kjøkken, hems, stue med utgang til takterrasse på 43 m².
Bod i kjeller.
- Rimelig 2-roms toppleilighet med takterrasse på 43 m².
- Selveierleilighet med meget sentral beliggenhet.
- Parkeringsplass.
- Leiligheten holder normal til enkel standard.
- Det bør påregnes noe oppgraderinger.
- Utleieobjekt!
- Muligheter for rask overtagelse av leiligheten.
Innhold
Gang, bod, bad, bod/sovealkove, kjøkken, hems, stue med utgang til takterrasse på 43 m².
Bod i kjeller.
NB: Knappen for å vise hele beskrivelsen har kun en visuell effekt.
NB: Knappen for å vise hele beskrivelsen har kun en visuell effekt.
Salgsoppgaven beskriver vesentlig og lovpålagt informasjon om eiendommen
Se komplett salgsoppgaveNyttige lenker
Nærområdet

PrivatMegleren Moss
Kun det beste på dine vegne
Annonseinformasjon
| FINN-kode | 449368874 |
|---|---|
| Sist endret | 04. feb. 2026 17:09 |
| Referanse | 116260020 |
Annonsene kan være mangelfulle i forhold til lovpålagt opplysningsplikt. Før bindende avtale inngås oppfordres interessenter til å innhente komplett informasjon fra meglerforetaket, selger eller utleier.



















