Bildegalleri

Velkommen til Sørjordet 65! Foto: Pål Godager, EFKT
Stange sentrum
Moderne og arealeffektiv 2-roms endeleilighet - Ypperlig førstegangskjøp - Fint utleieobjekt
Prisantydning2 150 000 kr
Nøkkelinfo
- Boligtype
- Leilighet
- Eieform
- Eier (Selveier)
- Soverom
- 1
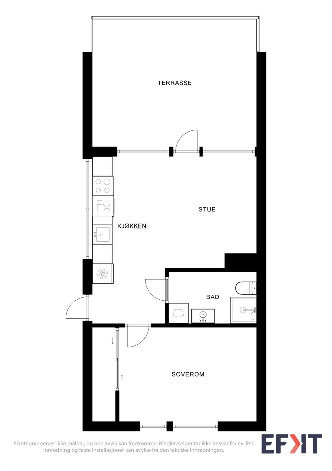
- Internt bruksareal
- 40 m² (BRA-i)
- Bruksareal
- 44 m²
- Eksternt bruksareal
- 4 m² (BRA-e)
- Balkong/Terrasse
- 21 m² (TBA)
- Etasje
- 1
- Byggeår
- 2016
- Energimerking
- B - Rød
- Rom
- 2
- Tomteareal
- 10 491 m² (eiet)
Fasiliteter
Balkong/Terrasse
Barnevennlig
Bredbåndstilknytning
Garasje/P-plass
Hage
Kjæledyr tillatt
Kabel-TV
Offentlig vann/kloakk
Rolig
Sentralt
Turterreng
Balansert ventilasjon
Visning
tirsdag, 10. februar
16:30 – 17:15
Ønsker du å delta på visningen ber vi deg melde deg på slik at vi vet at du kommer. Da kan vi bistå alle best mulig og gi deg tiden du trenger på visningen. Visningen avholdes bare dersom det er påmeldte. Ta gjerne kontakt med megler før visning hvis du har noen spørsmål. Velkommen!
VisningspåmeldingOm boligen
Energikarakter B, grønt boliglån?
Moderne selveierleilighet beliggende i 1.etg. med enkel adkomst og direkte tilgang til plenareal. Vestvendt romslig terrasse med markise.
Lettbodd og gjennomgående leilighet med mye naturlig lys, og nyere standard.
Inneholder éntre, stue med åpen kjøkkenløsning, bad med opplegg for vaskemaskin, og soverom med garderobeplass. Utvendig romslig bod.
Parkering nært inngangspartiet.
Fremstår som nyere. Innholdsrikt moderne kjøkken, integrerte hvitevarer. Lyse overflater og godt med vinduer gir en god atmosfære med naturlig lys og fint utsyn, ekstra fint når det er endeleilighet med vinduer over kjøkkenbenk i gavlvegg.
Tilgang til grønne fellesareal, og meget gode solforhold.
Gangavstand til Stange sentrum og offentlig kommunikasjon. Fine turområder.
Moderne selveierleilighet beliggende i 1.etg. med enkel adkomst og direkte tilgang til plenareal. Vestvendt romslig terrasse med markise.
Lettbodd og gjennomgående leilighet med mye naturlig lys, og nyere standard.
Inneholder éntre, stue med åpen kjøkkenløsning, bad med opplegg for vaskemaskin, og soverom med garderobeplass. Utvendig romslig bod.
Parkering nært inngangspartiet.
Fremstår som nyere. Innholdsrikt moderne kjøkken, integrerte hvitevarer. Lyse overflater og godt med vinduer gir en god atmosfære med naturlig lys og fint utsyn, ekstra fint når det er endeleilighet med vinduer over kjøkkenbenk i gavlvegg.
Tilgang til grønne fellesareal, og meget gode solforhold.
Gangavstand til Stange sentrum og offentlig kommunikasjon. Fine turområder.
NB: Knappen for å vise hele beskrivelsen har kun en visuell effekt.
NB: Knappen for å vise hele beskrivelsen har kun en visuell effekt.
Salgsoppgaven beskriver vesentlig og lovpålagt informasjon om eiendommen
Se komplett salgsoppgaveNyttige lenker
Nærområdet
EiendomsMegler 1 Stange
Vi loser deg trygt gjennom hele boligsalget
Annonseinformasjon
| FINN-kode | 449368803 |
|---|---|
| Sist endret | 03. feb. 2026 15:25 |
| Referanse | 6040260056 |
Annonsene kan være mangelfulle i forhold til lovpålagt opplysningsplikt. Før bindende avtale inngås oppfordres interessenter til å innhente komplett informasjon fra meglerforetaket, selger eller utleier.


























