Bildegalleri

Velkommen til Rambergveien 10A presentert av Aktiv Eiendomsmegling v/John Erik Klinge. Foto: Fotograf Magik (Maciej Krzysztof)
Kaldnes
Lys og lettstelt leilighet med heis og innglasset balkong på attraktive Kaldnes - nærhet til sjø og sentrum
Prisantydning3 250 000 kr
Nøkkelinfo
- Boligtype
- Leilighet
- Eieform
- Eier (Selveier)
- Soverom
- 1
- Internt bruksareal
- 38 m² (BRA-i)
- Bruksareal
- 51 m²
- Eksternt bruksareal
- 3 m² (BRA-e)
- Innglasset balkong
- 10 m² (BRA-b)
- Etasje
- 3
- Byggeår
- 2015
- Energimerking
- B - Lysegrønn
- Rom
- 2
- Tomteareal
- 1 320 m² (eiet)
Fasiliteter
Balkong/Terrasse
Barnevennlig
Heis
Offentlig vann/kloakk
Rolig
Turterreng
Balansert ventilasjon
Visning
fredag, 13. februar
16:30 – 17:30
Påmelding til megler innen kl 12:00 visningsdagen. Velkommen!
VisningspåmeldingOm boligen
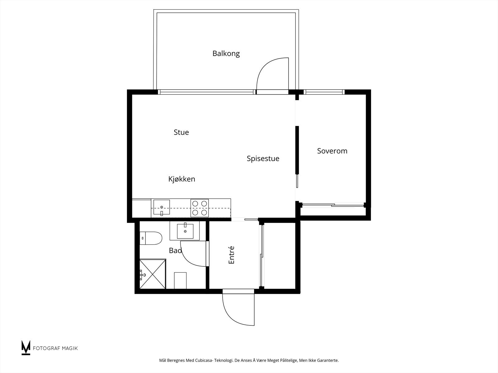
Rambergveien 10A ligger i et attraktivt og familievennlig område på Kaldnes i Tønsberg, med nærhet til sjø, by, servicetilbud, skole, barnehage og kollektivtransport. Leiligheten har en lys og moderne standard med parkettgulv og malte flater. Den inneholder åpen stue- og kjøkkenløsning med hvitevarer, flislagt bad, ett romslig soverom og utgang fra stue til innglasset balkong.
En lettstelt og praktisk bolig med heis - godt egnet for førstegangskjøpere eller de som ønsker en enkel og komfortabel leilighet sentralt i Tønsberg.
Velkommen på vinsing!
Husk påmelding.
En lettstelt og praktisk bolig med heis - godt egnet for førstegangskjøpere eller de som ønsker en enkel og komfortabel leilighet sentralt i Tønsberg.
Velkommen på vinsing!
Husk påmelding.
NB: Knappen for å vise hele beskrivelsen har kun en visuell effekt.
NB: Knappen for å vise hele beskrivelsen har kun en visuell effekt.
Salgsoppgaven beskriver vesentlig og lovpålagt informasjon om eiendommen
Se komplett salgsoppgaveNærområdet
Aktiv Tønsberg og Re
Annonseinformasjon
| FINN-kode | 449367549 |
|---|---|
| Sist endret | 05. feb. 2026 17:45 |
| Referanse | 1312250084 |
Annonsene kan være mangelfulle i forhold til lovpålagt opplysningsplikt. Før bindende avtale inngås oppfordres interessenter til å innhente komplett informasjon fra meglerforetaket, selger eller utleier.





















































