Bildegalleri

Velkommen til Holmenveien 34A.
VINDEREN
Unik modernistisk villa av Bjart Faye Mohr, 1967 - sørvendt tomt på 1,5 mål
Prisantydning29 500 000 kr
Nøkkelinfo
- Boligtype
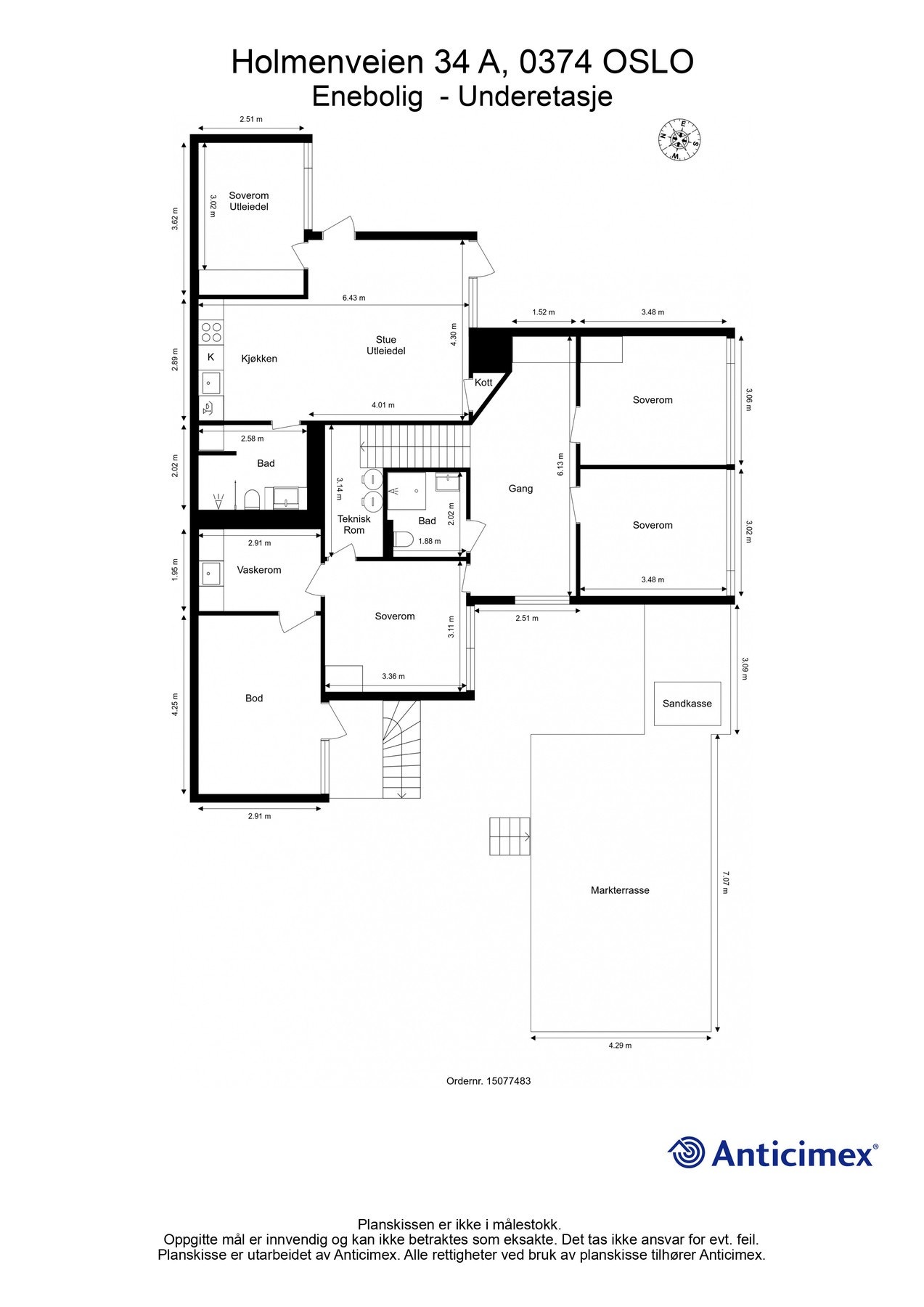
- Enebolig
- Eieform
- Eier (Selveier)
- Soverom
- 5
- Internt bruksareal
- 248 m² (BRA-i)
- Bruksareal
- 248 m²
- Balkong/Terrasse
- 51 m² (TBA)
- Byggeår
- 1967
- Energimerking
- F - Oransje
- Rom
- 6
- Tomteareal
- 1 491 m² (eiet)
Fasiliteter
Barnevennlig
Balkong/Terrasse
Garasje/P-plass
Kabel-TV
Offentlig vann/kloakk
Parkett
Peis/Ildsted
Bredbåndstilknytning
Moderne
Om boligen
Boligen i Holmenveien 34A, tegnet av Bjart Faye Mohr i 1967, er et gjennomarbeidet eksempel på norsk etterkrigsmodernisme med tydelige funksjonalistiske trekk. Huset ligger fritt i skrånende terreng over to plan, begge med direkte terrengkontakt. Oppført i tegl med flatt tak og rene volumer fremstår arkitekturen presis og dempet, med store vindusflater som gir rikelig dagslys og god forbindelse mellom interiør og landskap.
Planløsningen er åpen med romslige oppholdsrom som samler boligens funksjoner. Eiendommen er oppgradert til høy og moderne standard med varige materialvalg. Samspillet mellom bygning, terreng og den ca. 1,5 mål store tomten er løst med presisjon og helheten fremstår som tidløs boligarkitektur med kvalitet og romlighet i sentrum.
HØYDEPUNKTER:
- Modernistisk teglvilla (Bjart Faye Mohr, 1967)
- To plan med terrengkontakt
- Ca. 1,5 mål solrik tomt
- Oppgradert 2015-2025, høy standard
- Kvänum-kjøkken m/integrerte hvitevarer
- Egen boenhet, elektrisk port og parkering
Planløsningen er åpen med romslige oppholdsrom som samler boligens funksjoner. Eiendommen er oppgradert til høy og moderne standard med varige materialvalg. Samspillet mellom bygning, terreng og den ca. 1,5 mål store tomten er løst med presisjon og helheten fremstår som tidløs boligarkitektur med kvalitet og romlighet i sentrum.
HØYDEPUNKTER:
- Modernistisk teglvilla (Bjart Faye Mohr, 1967)
- To plan med terrengkontakt
- Ca. 1,5 mål solrik tomt
- Oppgradert 2015-2025, høy standard
- Kvänum-kjøkken m/integrerte hvitevarer
- Egen boenhet, elektrisk port og parkering
NB: Knappen for å vise hele beskrivelsen har kun en visuell effekt.
NB: Knappen for å vise hele beskrivelsen har kun en visuell effekt.
Salgsoppgaven beskriver vesentlig og lovpålagt informasjon om eiendommen
Se komplett salgsoppgaveNærområdet
Fjord & Partners
Verdien av lokalkunnskap
Annonseinformasjon
| FINN-kode | 449365615 |
|---|---|
| Sist endret | 15. feb. 2026 11:02 |
| Referanse | 199250076 |
Annonsene kan være mangelfulle i forhold til lovpålagt opplysningsplikt. Før bindende avtale inngås oppfordres interessenter til å innhente komplett informasjon fra meglerforetaket, selger eller utleier.


























































