Bildegalleri

Eiendomsmegler Norge v/Eiendomsmegler MNEF Tomi C. Johansen presenterer en enebolig i et svært barnevennlig område med nydelig utsikt og herlige solforhold!
Åga
Enebolig beliggende i svært barnevennlige omgivelser med fantastisk utsikt!
Prisantydning3 850 000 kr
Nøkkelinfo
- Boligtype
- Enebolig
- Eieform
- Selveier
- Soverom
- 3
- Internt bruksareal
- 127 m² (BRA-i)
- Bruksareal
- 148 m²
- Eksternt bruksareal
- 21 m² (BRA-e)
- Balkong/Terrasse
- 79 m² (TBA)
- Byggeår
- 1968
- Energimerking
- Rom
- 9
- Tomteareal
- 646 m² (eiet)
Fasiliteter
Aircondition
Balkong/Terrasse
Barnevennlig
Bredbåndstilknytning
Garasje/P-plass
Hage
Kjæledyr tillatt
Kabel-TV
Offentlig vann/kloakk
Peis/Ildsted
Rolig
Sentralt
Utsikt
Om boligen
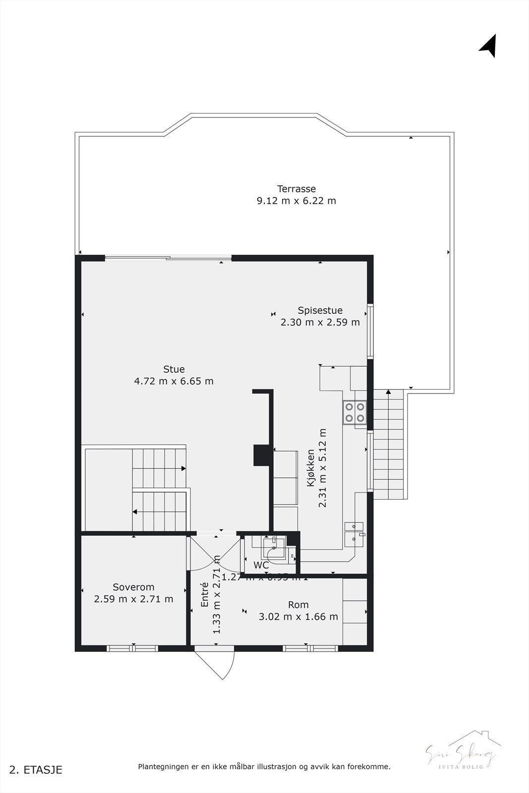
Enebolig med fantastisk utsikt over Ranfjorden!
I korte trekk nevnes:
- Grenser mot friareal
- Svært barnevennlig område
- Nydelig utsikt over Ranfjorden
- Romslig balkong på over 50m² med utgang fra stue
- Nært skole, butikk, busstopp og idrettsanlegg på Hauknes
- Garasje
- Lang solgang
- Bad og separat vaskerom
- Godt med lagringsplass
- Taktekkingen av pappshingel fra 2005 iht. tidligere takstrapport
- Boligen har malte trevinduer med 2-lags glass fra henholdsvis 2018, 2012, 2006 og byggeår
- Varmepumpe av merket Mitsubishi fra 2017
- Yttervegger er utvendig tekket med liggende bordkledning fra 2018
I korte trekk nevnes:
- Grenser mot friareal
- Svært barnevennlig område
- Nydelig utsikt over Ranfjorden
- Romslig balkong på over 50m² med utgang fra stue
- Nært skole, butikk, busstopp og idrettsanlegg på Hauknes
- Garasje
- Lang solgang
- Bad og separat vaskerom
- Godt med lagringsplass
- Taktekkingen av pappshingel fra 2005 iht. tidligere takstrapport
- Boligen har malte trevinduer med 2-lags glass fra henholdsvis 2018, 2012, 2006 og byggeår
- Varmepumpe av merket Mitsubishi fra 2017
- Yttervegger er utvendig tekket med liggende bordkledning fra 2018
NB: Knappen for å vise hele beskrivelsen har kun en visuell effekt.
NB: Knappen for å vise hele beskrivelsen har kun en visuell effekt.
Salgsoppgaven beskriver vesentlig og lovpålagt informasjon om eiendommen
Se komplett salgsoppgaveNyttige lenker
Nærområdet
Eiendomsmegler Norge Mo i Rana
Best der du bor
Annonseinformasjon
| FINN-kode | 449364620 |
|---|---|
| Sist endret | 11. apr. 2026 08:05 |
| Referanse | 44260018 |
Annonsene kan være mangelfulle i forhold til lovpålagt opplysningsplikt. Før bindende avtale inngås oppfordres interessenter til å innhente komplett informasjon fra meglerforetaket, selger eller utleier.



































