Bildegalleri

Velkommen til Torggata 131 C! Foto: Mathilde Nicoline Bergersen
HAMAR SENTRUM
Lys og moderne 3-roms leilighet med stor, overbygd balkong, heis og garasje - sentral beliggenhet - kort vei til Mjøsa!
Prisantydning4 600 000 kr
Nøkkelinfo
- Boligtype
- Leilighet
- Eieform
- Andel
- Soverom
- 2
- Internt bruksareal
- 81 m² (BRA-i)
- Bruksareal
- 86 m²
- Eksternt bruksareal
- 5 m² (BRA-e)
- Balkong/Terrasse
- 14 m² (TBA)
- Etasje
- 3
- Byggeår
- 2010
- Energimerking
- B - Lysegrønn
- Tomteareal
- 2 495 m² (eiet)
Fasiliteter
Balkong/Terrasse
Garasje/P-plass
Heis
Kabel-TV
Offentlig vann/kloakk
Parkett
Rolig
Sentralt
Visning
mandag, 16. februar
13:00 – 14:00
mandag, 16. februar
17:00 – 18:00
Ved annonsert visning er det viktig at du melder deg på visningen ved å bruke visningspåmeldingsknappen eller kontakter megler. Annonserte visninger hvor det ikke er noen påmeldte innen kl. 16.00 dagen før visningsdagen, vil ikke bli avholdt. For visninger utover dette, ta direkte kontakt med megler.
VisningspåmeldingOm boligen
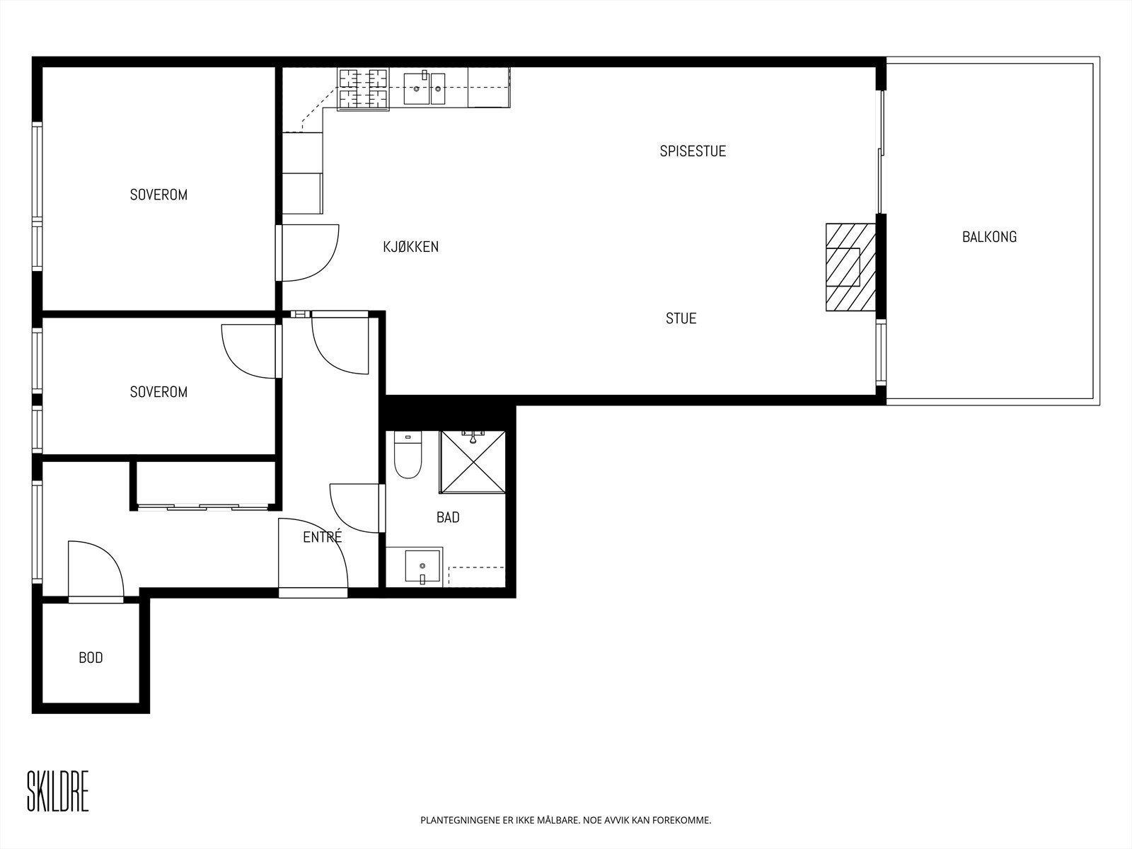
Velkommen til Torggata 131 C!
Dette er en moderne og attraktiv 3-roms leilighet i populære Bryggeriet på Hamar. Leiligheten er fra 2010 og ligger i byggets 3. etasje med heisadkomst. Den inneholder en romslig gang, to soverom, flislagt bad og en lys, åpen stue- og kjøkkenløsning med gasspeis og utgang til romslig, overbygd balkong på 14 m². I tillegg er det innvendig bod, bod i kjeller og medfølgende garasjeplass i kjeller. Pent gårdsrom i borettslaget og flotte fellesarealer med bl.a. kjøkken, allrom og utleierom for leie av besøkende til beboerne. Her får du en sentral beliggenhet med kort vei til sentrum, tog, butikker og ulike servicefasiliteter. Nærhet til Mjøsa med strand og fine turområder.
Vi ønsker velkommen til en hyggelig visning!
Dette er en moderne og attraktiv 3-roms leilighet i populære Bryggeriet på Hamar. Leiligheten er fra 2010 og ligger i byggets 3. etasje med heisadkomst. Den inneholder en romslig gang, to soverom, flislagt bad og en lys, åpen stue- og kjøkkenløsning med gasspeis og utgang til romslig, overbygd balkong på 14 m². I tillegg er det innvendig bod, bod i kjeller og medfølgende garasjeplass i kjeller. Pent gårdsrom i borettslaget og flotte fellesarealer med bl.a. kjøkken, allrom og utleierom for leie av besøkende til beboerne. Her får du en sentral beliggenhet med kort vei til sentrum, tog, butikker og ulike servicefasiliteter. Nærhet til Mjøsa med strand og fine turområder.
Vi ønsker velkommen til en hyggelig visning!
NB: Knappen for å vise hele beskrivelsen har kun en visuell effekt.
NB: Knappen for å vise hele beskrivelsen har kun en visuell effekt.
Salgsoppgaven beskriver vesentlig og lovpålagt informasjon om eiendommen
Se komplett salgsoppgaveNærområdet
Aktiv Innlandet
Annonseinformasjon
| FINN-kode | 449355451 |
|---|---|
| Sist endret | 04. feb. 2026 19:30 |
| Referanse | 1213250271 |
Annonsene kan være mangelfulle i forhold til lovpålagt opplysningsplikt. Før bindende avtale inngås oppfordres interessenter til å innhente komplett informasjon fra meglerforetaket, selger eller utleier.













































