Bildegalleri

Daglig leder og eiendomsmegler Petter Eia Haavi presenterer Søster Mathildes gate 14E!
Lørenskog / Triaden
Pen 2-roms selveier ved Triaden | Markterrasse på hele 8 kvm | Varmtvann og fyring inkl i FK | Perfekt for utleie!
Prisantydning3 200 000 kr
Nøkkelinfo
- Boligtype
- Leilighet
- Eieform
- Eier (Selveier)
- Soverom
- 1
- Internt bruksareal
- 39 m² (BRA-i)
- Bruksareal
- 44 m²
- Eksternt bruksareal
- 5 m² (BRA-e)
- Balkong/Terrasse
- 8 m² (TBA)
- Etasje
- 1
- Byggeår
- 2013
- Energimerking
- D - Mørkegrønn
- Rom
- 2
- Tomteareal
- 3 106 m² (eiet)
Fasiliteter
Barnevennlig
Balkong/Terrasse
Offentlig vann/kloakk
Turterreng
Vaktmester-/vektertjeneste
Sentralt
Bredbåndstilknytning
Moderne
Rolig
Balansert ventilasjon
Om boligen
Velkommen til Søster Mathildes gate 14E presentert av Daglig leder og eiendomsmegler Petter Eia Haavi ved EIE eiendomsmegling!
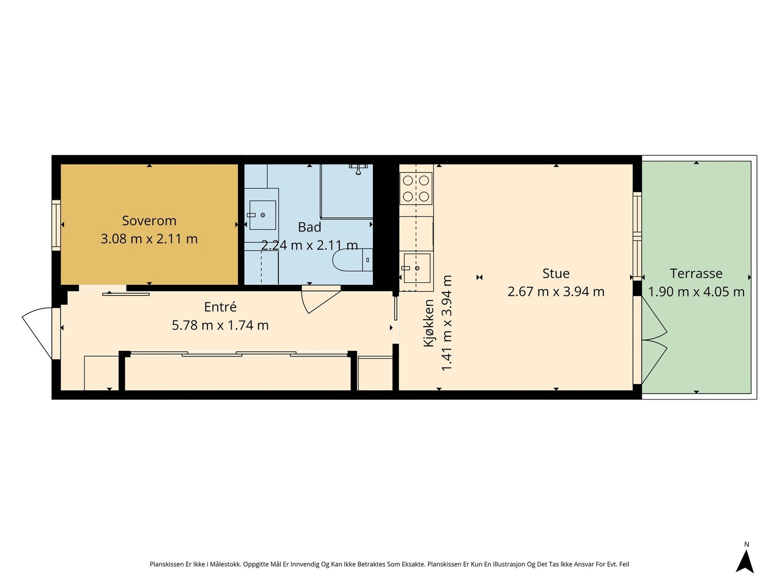
Lekker 2-roms selveierleilighet beliggende i populære Rasta. Leiligheten holder en god standard og er malt i tidsriktige farger. Boligen byr på en åpen og sosial stue- og kjøkkenløsning, romslig soverom og et lyst og moderne bad. Fra stue/kjøkken er det utgang til en hyggelig markterrasse på ca. 8 kvm som forlenger oppholdsarealet i sommerhalvåret
Dette er en bolig som egner seg svært godt for førstegangskjøpere.
Kvaliteter ved boligen:
- Åpen stue og kjøkkenløsning
- Utgang til en romslig markterrasse på hele 8 kvm
- Hyggelig sitteområde ved inngangspartiet
- Store vinduer og gode lysforhold
- Romslig bad
- Opplegg for vaskemaskin
- Balansert ventilasjon
- Gode lagringsmuligheter i skyvedørsgarderobe
- Varmtvann og fyring inkl. i felleskostnadene
- Mulighet for utleie
Velkommen til visning!
Mangler du egenkapital? Boligen kan kjøpes med Finit Deleie.
Lekker 2-roms selveierleilighet beliggende i populære Rasta. Leiligheten holder en god standard og er malt i tidsriktige farger. Boligen byr på en åpen og sosial stue- og kjøkkenløsning, romslig soverom og et lyst og moderne bad. Fra stue/kjøkken er det utgang til en hyggelig markterrasse på ca. 8 kvm som forlenger oppholdsarealet i sommerhalvåret
Dette er en bolig som egner seg svært godt for førstegangskjøpere.
Kvaliteter ved boligen:
- Åpen stue og kjøkkenløsning
- Utgang til en romslig markterrasse på hele 8 kvm
- Hyggelig sitteområde ved inngangspartiet
- Store vinduer og gode lysforhold
- Romslig bad
- Opplegg for vaskemaskin
- Balansert ventilasjon
- Gode lagringsmuligheter i skyvedørsgarderobe
- Varmtvann og fyring inkl. i felleskostnadene
- Mulighet for utleie
Velkommen til visning!
Mangler du egenkapital? Boligen kan kjøpes med Finit Deleie.
NB: Knappen for å vise hele beskrivelsen har kun en visuell effekt.
NB: Knappen for å vise hele beskrivelsen har kun en visuell effekt.
Salgsoppgaven beskriver vesentlig og lovpålagt informasjon om eiendommen
Se komplett salgsoppgaveNyttige lenker
Nærområdet
EIE eiendomsmegling Stovner
Annonseinformasjon
| FINN-kode | 449355122 |
|---|---|
| Sist endret | 11. feb. 2026 15:30 |
| Referanse | 75250309 |
Annonsene kan være mangelfulle i forhold til lovpålagt opplysningsplikt. Før bindende avtale inngås oppfordres interessenter til å innhente komplett informasjon fra meglerforetaket, selger eller utleier.






























