Bildegalleri

Velkommen til Elvegata 10I! Foto: Normann Foto AS
Vesterntangen
Sentrumsnært rekkehus over 2 plan med 3 soverom | Solrikt og usjenert atrium | EL-bil lader, badstue og ny varmepumpe
Prisantydning2 990 000 kr
Nøkkelinfo
- Boligtype
- Rekkehus
- Eieform
- Andel
- Soverom
- 3
- Internt bruksareal
- 114 m² (BRA-i)
- Bruksareal
- 133 m²
- Eksternt bruksareal
- 19 m² (BRA-e)
- Balkong/Terrasse
- 48 m² (TBA)
- Etasje
- 2
- Byggeår
- 1964
- Energimerking
- D - Gul
- Rom
- 4
- Tomteareal
- 5 707 m² (eiet)
Fasiliteter
Balkong/Terrasse
Barnevennlig
Hage
Peis/Ildsted
Rolig
Sentralt
Utsikt
Bademulighet
Turterreng
Lademulighet
Visning
torsdag, 12. februar
17:00 – 18:00
Husk påmelding til visning.
For visninger utover de annonserte, ta kontakt med megler på telefon 480 64 074.
VisningspåmeldingOm boligen
Velkommen til Elvegata 10i! Her bor du attraktivt og rolig med kort vei til sentrum og Randselva som nærmeste nabo.
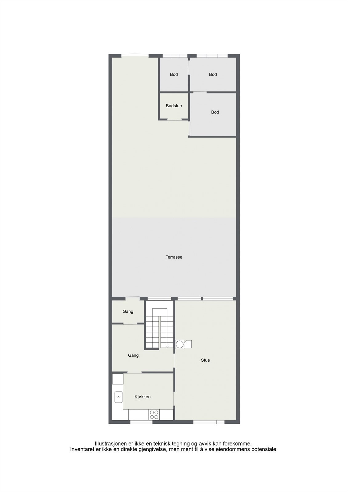
Dette er et innholdsrikt rekkehus med en fin beliggenhet på Vesterntangen. Herfra er det gangavstand til alt Hønefoss sentrum har å by på. Boligen har en praktisk planløsning over to plan, med en stor, delvis overbygget terrasse ved inngangspartiet og en balkong med trapp ned mot elven. Nyt rolige dager i et trygt og veletablert nabolag.
Stor og delvis overbygget terrasse på ca. 46 m². Ny varmepumpe fra 2024. Frittliggende garasjebygg med bod og badstue. Vedovn i stuen for ekstra varme og hygge. Elbillader. Tillatt med dyrehold.
Velkommen til visning!
Dette er et innholdsrikt rekkehus med en fin beliggenhet på Vesterntangen. Herfra er det gangavstand til alt Hønefoss sentrum har å by på. Boligen har en praktisk planløsning over to plan, med en stor, delvis overbygget terrasse ved inngangspartiet og en balkong med trapp ned mot elven. Nyt rolige dager i et trygt og veletablert nabolag.
Stor og delvis overbygget terrasse på ca. 46 m². Ny varmepumpe fra 2024. Frittliggende garasjebygg med bod og badstue. Vedovn i stuen for ekstra varme og hygge. Elbillader. Tillatt med dyrehold.
Velkommen til visning!
NB: Knappen for å vise hele beskrivelsen har kun en visuell effekt.
NB: Knappen for å vise hele beskrivelsen har kun en visuell effekt.
Salgsoppgaven beskriver vesentlig og lovpålagt informasjon om eiendommen
Se komplett salgsoppgaveNyttige lenker
Nærområdet
EiendomsMegler 1 Ringerike
Vi loser deg trygt gjennom hele boligsalget
Annonseinformasjon
| FINN-kode | 449340463 |
|---|---|
| Sist endret | 05. feb. 2026 13:05 |
| Referanse | 1210260004 |
Annonsene kan være mangelfulle i forhold til lovpålagt opplysningsplikt. Før bindende avtale inngås oppfordres interessenter til å innhente komplett informasjon fra meglerforetaket, selger eller utleier.




























