Bildegalleri

Enebolig med fantastisk utsikt og 923 m² stor tomt- Totalrenovering
Prisantydning1 990 000 kr
Nøkkelinfo
- Boligtype
- Enebolig
- Eieform
- Eier (Selveier)
- Soverom
- 3
- Internt bruksareal
- 198 m² (BRA-i)
- Bruksareal
- 198 m²
- Balkong/Terrasse
- 40 m² (TBA)
- Etasje
- 3
- Byggeår
- 1951
- Energimerking
- G - Rød
- Rom
- 5
- Tomteareal
- 923 m² (eiet)
Fasiliteter
Balkong/Terrasse
Garasje/P-plass
Hage
Kjæledyr tillatt
Peis/Ildsted
Utsikt
Turterreng
Visning
mandag, 16. februar
16:00 – 17:00
Ønsker du å delta på visningen ber vi deg melde deg på slik at vi vet at du kommer. Da kan vi bistå alle best mulig og gi deg tiden du trenger på visningen. Kontakt gjerne megler før visning hvis du har spørsmål. Visningen avholdes bare dersom det er påmeldte. Hvis det ikke er oppsatt visningstidspunkt eller tidspunkt ikke passer, kontakt megler.
VisningspåmeldingOm boligen
Velkommen til Barkanesvegen 2
Eldre enebolig som må betraktes som et totalrenoveringsprosjekt. Boligen har tre etasjer, inkludert en kjeller med god takhøyde.
Per i dag er det innlagt vann fra en privat brønn som ikke er i funksjon. Ny eier må koble seg til offentlig vann, vannledningen ligger i avkjørselen til Barkanesvegen.
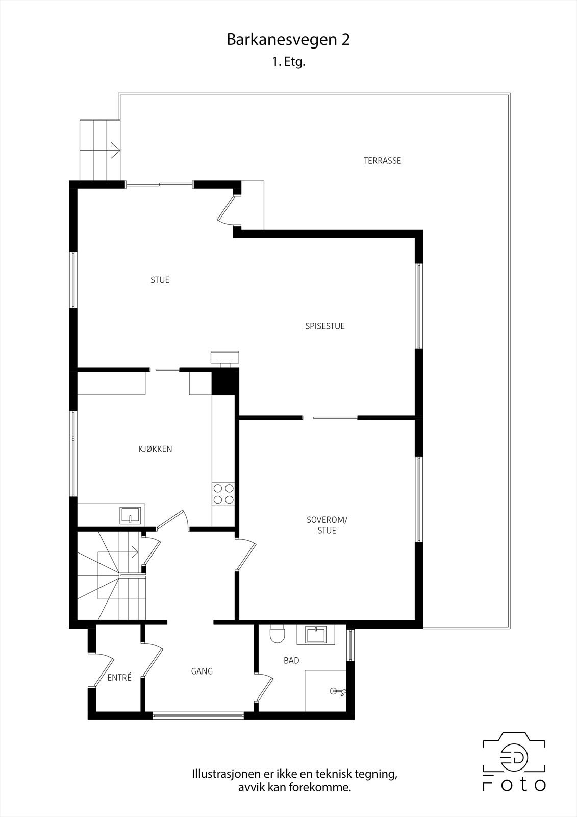
1. etasje BRA-i: Vindfang, gang, 2 stuer, kjøkken, og trapperom.
2. etasje BRA-i: Gang, loftstue, 3 soverom og bod.
Kjeller BRA-i: Gang, uinnredet kjellerrom, 2 boder og gang. BRA-e: Bod med lav takhøyde uten målbart areal.
Eiendommen ligger på Barka, kun 4 minutters kjøretur fra Jørpeland sentrum. Her får du flott utsikt og kort gangavstand til Barkaviga, en av Strands mest populære badeplasser. Kort avstand til turområder.
Eldre enebolig som må betraktes som et totalrenoveringsprosjekt. Boligen har tre etasjer, inkludert en kjeller med god takhøyde.
Per i dag er det innlagt vann fra en privat brønn som ikke er i funksjon. Ny eier må koble seg til offentlig vann, vannledningen ligger i avkjørselen til Barkanesvegen.
1. etasje BRA-i: Vindfang, gang, 2 stuer, kjøkken, og trapperom.
2. etasje BRA-i: Gang, loftstue, 3 soverom og bod.
Kjeller BRA-i: Gang, uinnredet kjellerrom, 2 boder og gang. BRA-e: Bod med lav takhøyde uten målbart areal.
Eiendommen ligger på Barka, kun 4 minutters kjøretur fra Jørpeland sentrum. Her får du flott utsikt og kort gangavstand til Barkaviga, en av Strands mest populære badeplasser. Kort avstand til turområder.
NB: Knappen for å vise hele beskrivelsen har kun en visuell effekt.
NB: Knappen for å vise hele beskrivelsen har kun en visuell effekt.
Salgsoppgaven beskriver vesentlig og lovpålagt informasjon om eiendommen
Se komplett salgsoppgaveNyttige lenker
Nærområdet
EiendomsMegler 1 Ryfylke
En del av Sparebank 1 Sør-Norge
Annonseinformasjon
| FINN-kode | 449327065 |
|---|---|
| Sist endret | 05. feb. 2026 07:12 |
| Referanse | 2209260004 |
Annonsene kan være mangelfulle i forhold til lovpålagt opplysningsplikt. Før bindende avtale inngås oppfordres interessenter til å innhente komplett informasjon fra meglerforetaket, selger eller utleier.

































