Bildegalleri

Velkommen til ditt nye hjem!
Innholdsrik og barnevennlig 1/2-part tomannsbolig | 3 soverom, 2 stuer, 2 bad | Solrike uteplasser og stor usjenert tomt
Prisantydning3 450 000 kr
Nøkkelinfo
- Boligtype
- Tomannsbolig
- Eieform
- Eier (Selveier)
- Soverom
- 3
- Internt bruksareal
- 118 m² (BRA-i)
- Bruksareal
- 122 m²
- Eksternt bruksareal
- 4 m² (BRA-e)
- Balkong/Terrasse
- 52 m² (TBA)
- Etasje
- 2
- Byggeår
- 2011
- Energimerking
- C - Lysegrønn
- Rom
- 5
- Tomteareal
- 529 m² (eiet)
Fasiliteter
Balkong/Terrasse
Barnevennlig
Bredbåndstilknytning
Garasje/P-plass
Hage
Kjæledyr tillatt
Ingen gjenboere
Offentlig vann/kloakk
Parkett
Peis/Ildsted
Rolig
Sentralt
Turterreng
Lademulighet
Balansert ventilasjon
Visning
torsdag, 12. februar
17:00 – 18:00
For å delta på visning, ber vi om at du melder deg på. Da sikrer vi at du får nødvendig informasjon og at det er satt av tilstrekkelig med tid. Kontakt megler dersom annet tidspunkt ønskes. Husk å lese salgsoppgaven før visningen, så du stiller forberedt.
Ønsker du kun å bli holdt orientert, kan du fra eiendommens hjemmeside få varsel om solgtpris, eller kontakte megler.
VisningspåmeldingOm boligen
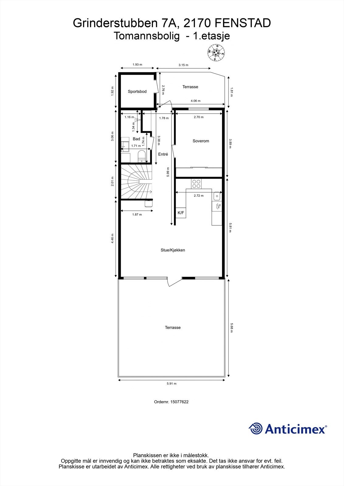
Griderstubben 7A - En lys og tiltalende halvpart tomannsbolig, over to etasjer. Første etasje byr på en flislagt entré med gulvvarme, en hyggelig stue med vedovn, et praktisk kjøkken med hvitevarer, helfliset bad og hovedsoverom. Fra stuen er det utgang til en romslig terrasse på 34 m² med direkte tilgang til hagen som innbyr til lek og moro for store og små.
I andre etasje finner du en ekstra stue med utgang til balkong, et baderom og to soverom. Boligen har god lagringsplass i sportsbod ved inngangspartiet, samt godt med parkering på egen gårdsplass.
Eiendommen ligger i et koselig og idyllisk område på Fenstad, med umiddelbar nærhet til barnehage og kort vei til barneskole, Joker Fenstad og Fenstad stadion. Det er også bussholdeplass i hovedveien med forbindelse mot Eidsvoll og Årnes.
I andre etasje finner du en ekstra stue med utgang til balkong, et baderom og to soverom. Boligen har god lagringsplass i sportsbod ved inngangspartiet, samt godt med parkering på egen gårdsplass.
Eiendommen ligger i et koselig og idyllisk område på Fenstad, med umiddelbar nærhet til barnehage og kort vei til barneskole, Joker Fenstad og Fenstad stadion. Det er også bussholdeplass i hovedveien med forbindelse mot Eidsvoll og Årnes.
NB: Knappen for å vise hele beskrivelsen har kun en visuell effekt.
NB: Knappen for å vise hele beskrivelsen har kun en visuell effekt.
Salgsoppgaven beskriver vesentlig og lovpålagt informasjon om eiendommen
Se komplett salgsoppgaveNyttige lenker
Nærområdet
Krogsveen Jessheim
Verdien av en god megler.
Annonseinformasjon
| FINN-kode | 449323255 |
|---|---|
| Sist endret | 05. feb. 2026 07:39 |
| Referanse | KR63.25266 |
Annonsene kan være mangelfulle i forhold til lovpålagt opplysningsplikt. Før bindende avtale inngås oppfordres interessenter til å innhente komplett informasjon fra meglerforetaket, selger eller utleier.










































