Bildegalleri

Ås/Dysterlia/Rustad
Enebolig med meget barnevennlig beliggenhet - Rustad skole, barnehager & flotte turmuligheter rett ved! Dobbelgarasje
Prisantydning6 790 000 kr
Nøkkelinfo
- Boligtype
- Enebolig
- Eieform
- Eier (Selveier)
- Soverom
- 5
- Internt bruksareal
- 186 m² (BRA-i)
- Bruksareal
- 226 m²
- Eksternt bruksareal
- 40 m² (BRA-e)
- Balkong/Terrasse
- 38 m² (TBA)
- Byggeår
- 1985
- Rom
- 8
- Tomteareal
- 693 m² (eiet)
Fasiliteter
Barnevennlig
Balkong/Terrasse
Garasje/P-plass
Offentlig vann/kloakk
Peis/Ildsted
Turterreng
Sentralt
Bredbåndstilknytning
Rolig
Visning
søndag, 15. februar
13:30 – 14:30
Velkommen til visning!
Alle våre visninger har påmelding. På denne måten sikrer vi at megler har god oversikt og tid til å imøtekomme alle interessenter på beste måte. Dette er veldig verdifullt for boligkjøpere og for oss. Det er enkelt å melde seg på, og du kan like enkelt melde deg av. Kontakt også gjerne megler i forkant av visning dersom du har spørsmål.
Om boligen
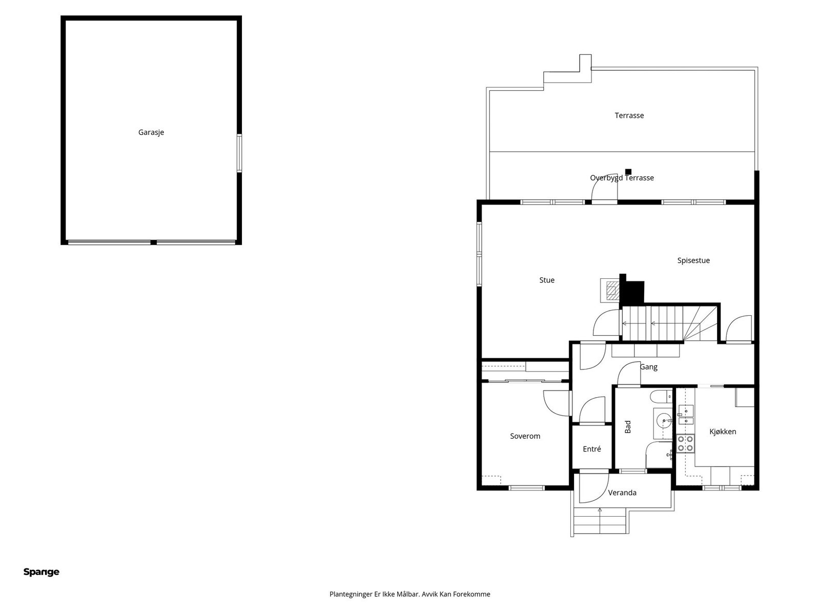
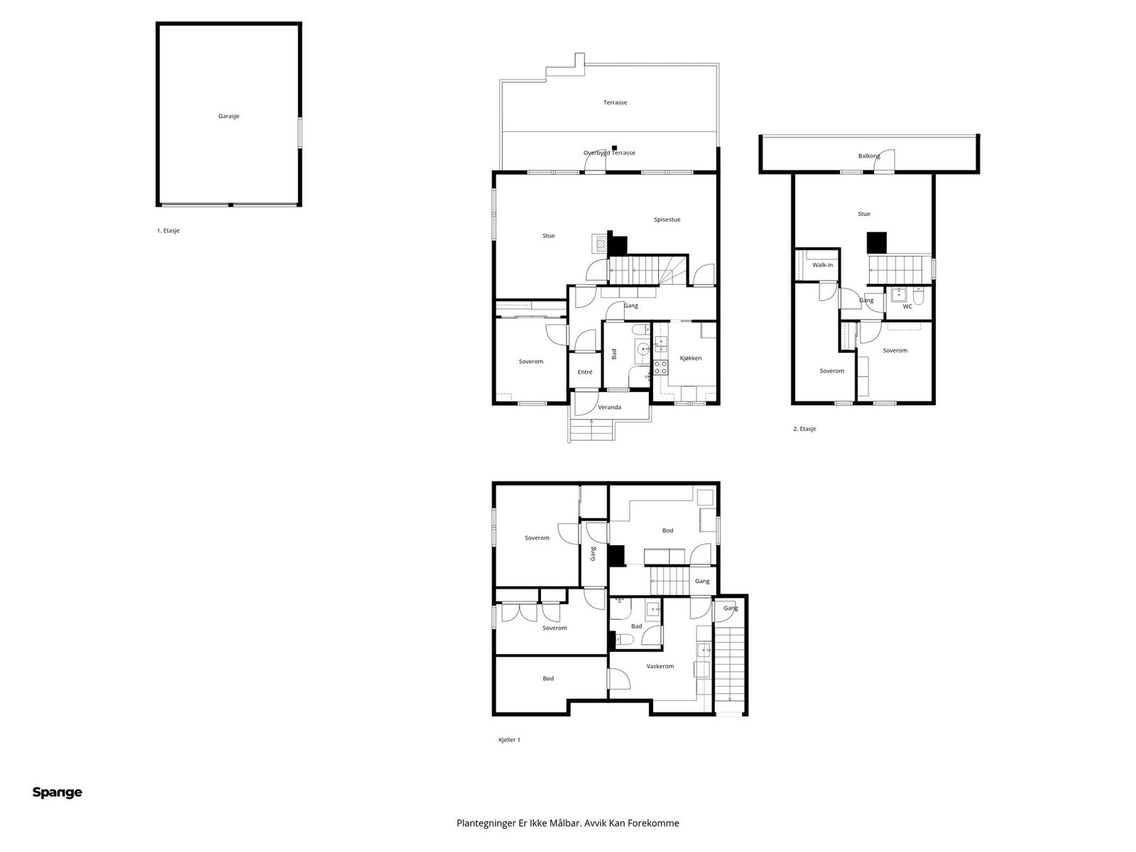
Velkommen til Gamle Kroervei 51 - en familievennlig enebolig med god planløsning, fem soverom, 2.5 bad pluss vaskerom
Boligen er oppført i 1985, men er de senere årene oppgradert og modernisert med nyere våtrom, kjøkken og tekniske installasjoner, samt ombygging og innredning av kjelleren med 2 soverom, bad og vaskerom
Eiendommen har en solrik og privat beliggenhet i et etablert og barnevennlig nabolag, hvor blant annet Rustadporten barnehage og Rustad skole ligger rett ved. Videre er det kun 180 meter til nærmeste bussholdeplass med avganger til Ås sentrum, samt kort vei til flotte turløyper i marka.
-Enebolig med dobbelgarasje
-5 sov, 2 bad, vaskerom + toalettrom
-Innredet kjeller m/full takhøyde og egen inngang
-Rett ved barnehager og Rustad skole
-Ås sentrum innen 20 min gangavstand
Boligen er oppført i 1985, men er de senere årene oppgradert og modernisert med nyere våtrom, kjøkken og tekniske installasjoner, samt ombygging og innredning av kjelleren med 2 soverom, bad og vaskerom
Eiendommen har en solrik og privat beliggenhet i et etablert og barnevennlig nabolag, hvor blant annet Rustadporten barnehage og Rustad skole ligger rett ved. Videre er det kun 180 meter til nærmeste bussholdeplass med avganger til Ås sentrum, samt kort vei til flotte turløyper i marka.
-Enebolig med dobbelgarasje
-5 sov, 2 bad, vaskerom + toalettrom
-Innredet kjeller m/full takhøyde og egen inngang
-Rett ved barnehager og Rustad skole
-Ås sentrum innen 20 min gangavstand
NB: Knappen for å vise hele beskrivelsen har kun en visuell effekt.
NB: Knappen for å vise hele beskrivelsen har kun en visuell effekt.
Salgsoppgaven beskriver vesentlig og lovpålagt informasjon om eiendommen
Se komplett salgsoppgaveNærområdet
PrivatMegleren Ski & Ås
Kun det beste på dine vegne
Annonseinformasjon
| FINN-kode | 449281770 |
|---|---|
| Sist endret | 10. feb. 2026 17:56 |
| Referanse | 309251162 |
Annonsene kan være mangelfulle i forhold til lovpålagt opplysningsplikt. Før bindende avtale inngås oppfordres interessenter til å innhente komplett informasjon fra meglerforetaket, selger eller utleier.






















































