Bildegalleri

Krogsveen har gleden av å presentere Linerlebakken 10 - En innholdsrik enebolig m/hybel, sjøutsikt og stor tomt!

Innholdsrik og modernisert enebolig m/​ 1,47 mål tomt og sjøutsikt - Hybel - Dobbel garasje - El-bil lader - Barnevennlig

Prisantydning8 490 000 kr
Totalpris
8 723 240 kr
Omkostninger
233 240 kr
Kommunale avg.
23 134 kr per år
Eiendomsskatt
6 725 kr per år
Formuesverdi
1 927 651 kr

Nøkkelinfo

Boligtype
Enebolig
Eieform
Eier (Selveier)
Soverom
6
Internt bruksareal
274 m² (BRA-i)
Bruksareal
317 m²
Eksternt bruksareal
43 m² (BRA-e)
Balkong/Terrasse
40 m² (TBA)
Etasje
3
Byggeår
1973
Rom
9
Tomteareal
1 478 m² (eiet)

Les mer om bruksareal her

Fasiliteter

Balkong/Terrasse
Barnevennlig
Bredbåndstilknytning
Garasje/P-plass
Hage
Kjæledyr tillatt
Offentlig vann/kloakk
Peis/Ildsted
Rolig
Sentralt
Utsikt
Turterreng
Lademulighet

Visning

tirsdag, 10. februar
16:00 – 17:00
For å delta på visning, ber vi om at du melder deg på. Da sikrer vi at du får nødvendig informasjon og at det er satt av tilstrekkelig med tid. Kontakt megler dersom annet tidspunkt ønskes. Husk å lese salgsoppgaven før visningen, så du stiller forberedt. Ønsker du kun å bli holdt orientert, kan du fra eiendommens hjemmeside få varsel om solgtpris, eller kontakte megler.
Visningspåmelding

Om boligen

Velkommen til Linelebakken 10 - din neste bolig!

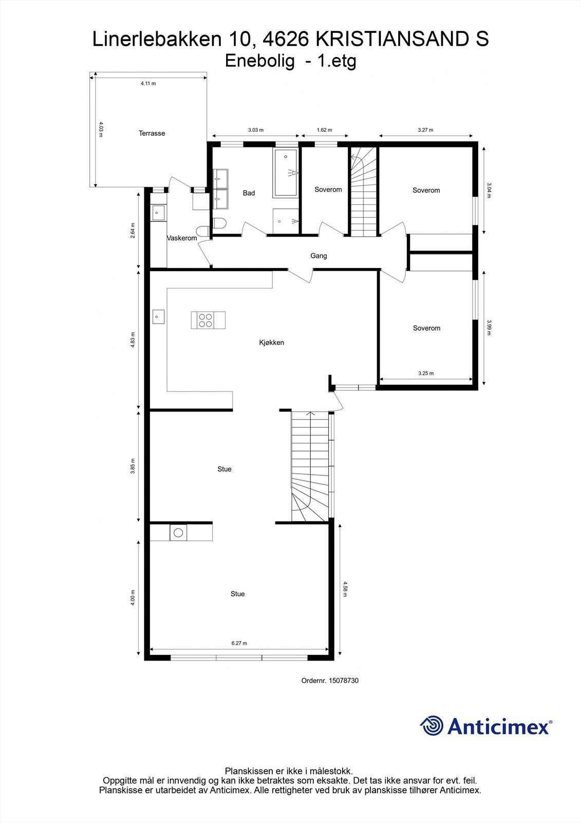
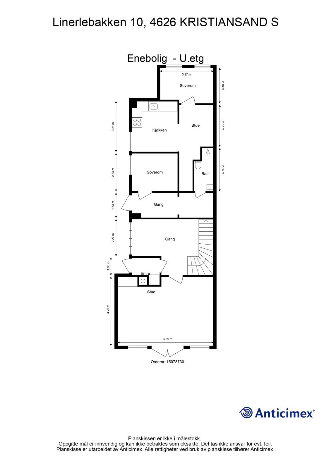
VI har gleden av å presentere en pent oppusset og innholdsrik enebolig med flotte kvaliteter og en meget solrik og stor tomt på 1.478 kvm. Boligen inneholder bl.a. fire soverom, to stuer, bad, vaskerom, kontor/bod, gang og entré i hoveddelen. I tillegg får du en 3-roms hybel med mulighet for utleieinntekter. Eneboligen har også en stor dobbel garasje med El-bil lader, og flere flotte uteplasser. Boligen er gjennomgående oppusset over årene og holder en god standard. Det er også solcelleanlegg på taket.

Eiendommen har en sentral beliggenhet med kort vei til skole, barnehage, fritidsaktiviter, bussforbindelse og andre servicetilbud. Dette er en enebolig du kan flytte rett inn i!

Velkommen til en hyggelig visning!

Salgsoppgaven beskriver vesentlig og lovpålagt informasjon om eiendommen

Se komplett salgsoppgave

Nærområdet

Annonseinformasjon

FINN-kode449262426
Sist endret03. feb. 2026 20:32
ReferanseKR31.25103

Rapporter annonse

Annonsene kan være mangelfulle i forhold til lovpålagt opplysningsplikt. Før bindende avtale inngås oppfordres interessenter til å innhente komplett informasjon fra meglerforetaket, selger eller utleier.