Bildegalleri

Leiligheten presenteres av megler Trond Ivar Olsen | Foto ved ISnitt og fotograf Emil Jacobczyk
Slemmestad
Sjarmerende og pen 2-roms selveier | Peis | EL-lader | Beliggende i blindvei | Gange til sjøen og kjøpesenter
Prisantydning3 290 000 kr
Nøkkelinfo
- Boligtype
- Leilighet
- Eieform
- Eier (Selveier)
- Soverom
- 1
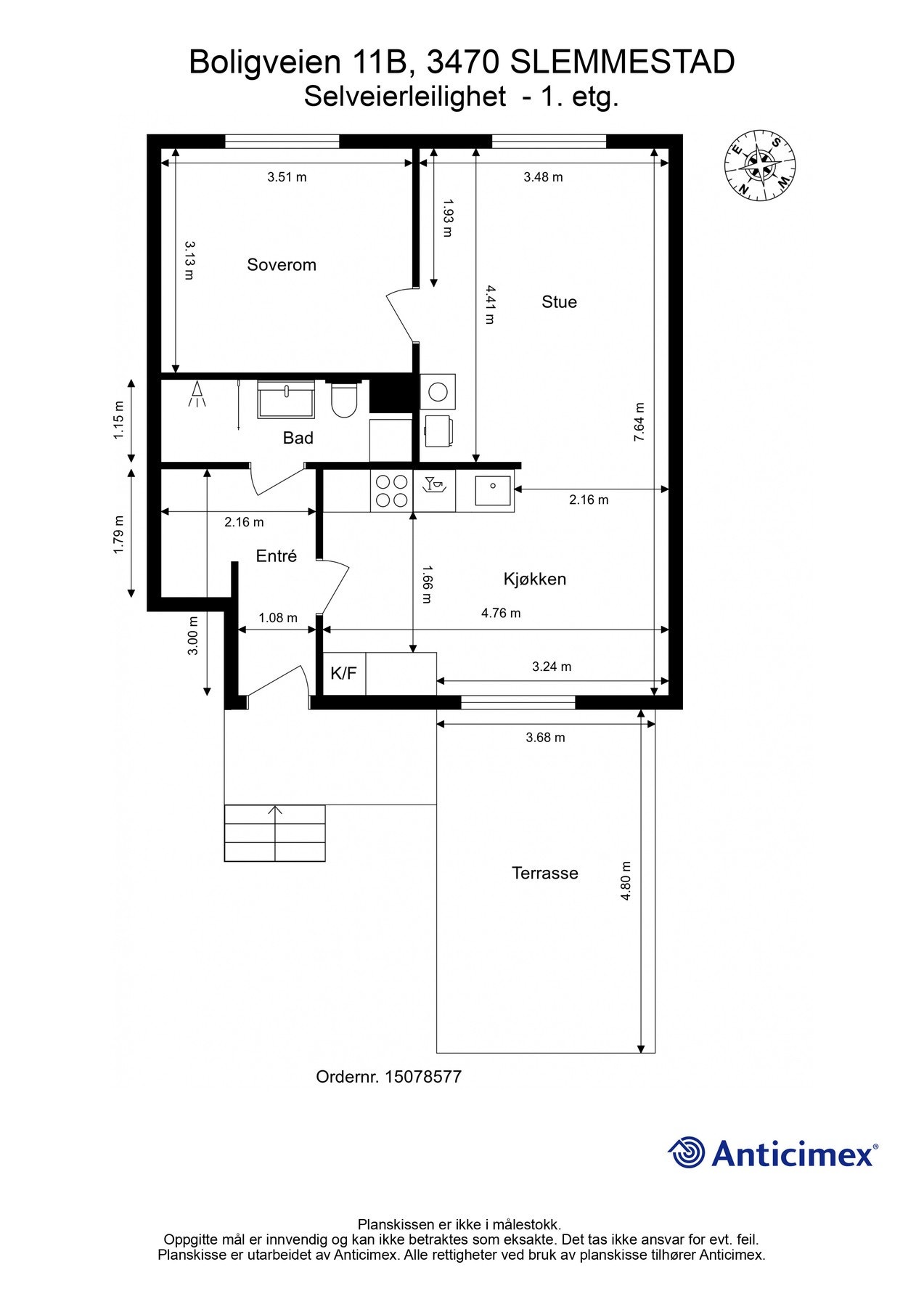
- Internt bruksareal
- 53 m² (BRA-i)
- Bruksareal
- 68 m²
- Eksternt bruksareal
- 15 m² (BRA-e)
- Balkong/Terrasse
- 16 m² (TBA)
- Etasje
- 1
- Byggeår
- 1916
- Energimerking
- G - Mørkegrønn
- Rom
- 2
- Tomteareal
- 518 m² (eiet)
Fasiliteter
Barnevennlig
Balkong/Terrasse
Garasje/P-plass
Offentlig vann/kloakk
Parkett
Peis/Ildsted
Sentralt
Bredbåndstilknytning
Moderne
Rolig
Lademulighet
Om boligen
Sjarmerende og gjennomført leilighet i klassisk bygg fra 1916, beliggende i et attraktivt og barnevennlig boligområde i Slemmestad. Her bor du tilbaketrukket i en rolig blindvei, samtidig som du har kort vei til sentrum, servicetilbud, kollektivtransport og flotte rekreasjonsområder. Leiligheten er godt vedlikeholdt og holder en gjennomgående god standard, med en velutnyttet planløsning som gir en luftig og funksjonell boligopplevelse.
Boligen ligger i en klassisk firemannsbolig med særpreg og sjel, hvor den opprinnelige arkitekturen er godt ivaretatt. Den ekstra gode takhøyden bidrar til en romslig atmosfære og forsterker følelsen av lys og luft i rommene.
Leiligheten inneholder entré, stue, kjøkken, bad og soverom, og passer utmerket for både enslige, par eller som en god førstegangsetablering.
Mangler du egenkapital? Boligen kan kjøpes med Finit Deleie.
Boligen ligger i en klassisk firemannsbolig med særpreg og sjel, hvor den opprinnelige arkitekturen er godt ivaretatt. Den ekstra gode takhøyden bidrar til en romslig atmosfære og forsterker følelsen av lys og luft i rommene.
Leiligheten inneholder entré, stue, kjøkken, bad og soverom, og passer utmerket for både enslige, par eller som en god førstegangsetablering.
Mangler du egenkapital? Boligen kan kjøpes med Finit Deleie.
NB: Knappen for å vise hele beskrivelsen har kun en visuell effekt.
NB: Knappen for å vise hele beskrivelsen har kun en visuell effekt.
Salgsoppgaven beskriver vesentlig og lovpålagt informasjon om eiendommen
Se komplett salgsoppgaveNærområdet
EIE eiendomsmegling Asker
Annonseinformasjon
| FINN-kode | 449254490 |
|---|---|
| Sist endret | 03. feb. 2026 19:43 |
| Referanse | 85260016 |
Annonsene kan være mangelfulle i forhold til lovpålagt opplysningsplikt. Før bindende avtale inngås oppfordres interessenter til å innhente komplett informasjon fra meglerforetaket, selger eller utleier.


































