Bildegalleri

Velkommen til Steinerud 26! (Foto: Paul Smith, Efkt)
Moen
Lettstelt 3-roms halvpart av tomannsbolig på ett plan | To terrasser og garasje | Vannbåren gulvvarme i alle rom
Prisantydning2 850 000 kr
Nøkkelinfo
- Boligtype
- Tomannsbolig
- Eieform
- Eier (Selveier)
- Soverom
- 2
- Internt bruksareal
- 75 m² (BRA-i)
- Bruksareal
- 91 m²
- Eksternt bruksareal
- 16 m² (BRA-e)
- Balkong/Terrasse
- 64 m² (TBA)
- Etasje
- 1
- Byggeår
- 2009
- Energimerking
- C - Gul
- Rom
- 3
- Tomteareal
- 890 m² (eiet)
Fasiliteter
Balkong/Terrasse
Bredbåndstilknytning
Garasje/P-plass
Offentlig vann/kloakk
Peis/Ildsted
Rolig
Sentralt
Turterreng
Lademulighet
Visning
onsdag, 11. februar
16:30 – 17:30
Vi fortsetter med visningspåmelding, til glede for våre boligselgere - og kjøpere.
VisningspåmeldingOm boligen
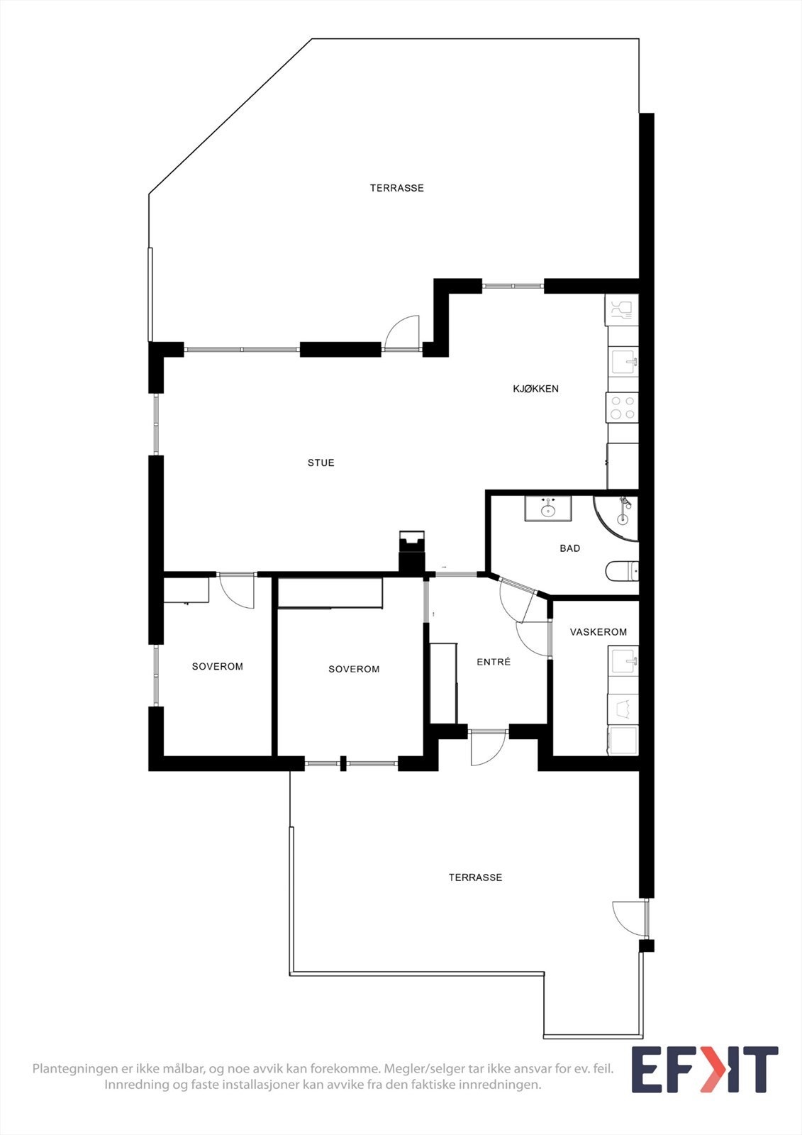
Velkommen til Steinerud 26! En moderne og lettstelt leilighet på ett plan med vannbåren gulvvarme og garasje.
Dette er en flott leilighet i et rolig og etablert boligområde med nærhet til skog og mark. Boligen har en praktisk planløsning på ett plan, med åpen stue- og kjøkkenløsning som et naturlig samlingspunkt. Her kan du nyte komforten av vannbåren varme i alle gulv, og med to terrasser er det enkelt å nyte utelivet.
Høydepunkter:
Dette er en flott leilighet i et rolig og etablert boligområde med nærhet til skog og mark. Boligen har en praktisk planløsning på ett plan, med åpen stue- og kjøkkenløsning som et naturlig samlingspunkt. Her kan du nyte komforten av vannbåren varme i alle gulv, og med to terrasser er det enkelt å nyte utelivet.
Høydepunkter:
- Arealeffektiv leilighet fra 2009
- Vannbåren varme i alle gulv for jevn komfort
- To terrasser på til sammen 64 m²
- Garasje (liten) med innlagt strøm og portåpner
- Peis i stuen for ekstra hygge
- Nyere gulv i stue, kjøkken og soverom
- El-bil lader
Velkommen til visning!
NB: Knappen for å vise hele beskrivelsen har kun en visuell effekt.
NB: Knappen for å vise hele beskrivelsen har kun en visuell effekt.
Salgsoppgaven beskriver vesentlig og lovpålagt informasjon om eiendommen
Se komplett salgsoppgaveNyttige lenker
Nærområdet
EiendomsMegler 1 Hadeland
Vi loser deg trygt gjennom hele boligsalget
Annonseinformasjon
| FINN-kode | 449250194 |
|---|---|
| Sist endret | 03. feb. 2026 14:51 |
| Referanse | 1211260008 |
Annonsene kan være mangelfulle i forhold til lovpålagt opplysningsplikt. Før bindende avtale inngås oppfordres interessenter til å innhente komplett informasjon fra meglerforetaket, selger eller utleier.







































