Bildegalleri

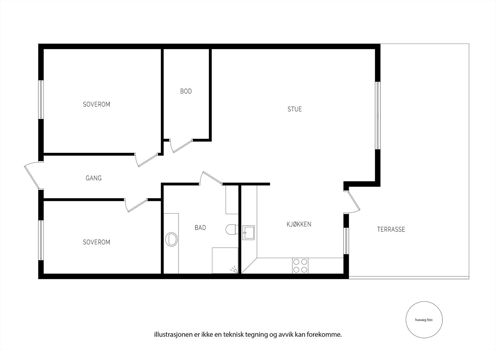
Lys og trivelig leilighet med praktisk og god planløsning. De fleste overflater er malte i 2025. Ny laminat på gulv i stue, kjøkken og gang. Ny kjøkkeninnredning (foto:Trond-Eirik Husvæg)
Ganddal
Pen og romslig selveierleilighet med 2 soverom - attraktiv og meget sentral beliggenhet
Prisantydning3 490 000 kr
Nøkkelinfo
- Boligtype
- Leilighet
- Eieform
- Eier (Selveier)
- Soverom
- 2
- Internt bruksareal
- 74 m² (BRA-i)
- Bruksareal
- 81 m²
- Eksternt bruksareal
- 7 m² (BRA-e)
- Balkong/Terrasse
- 27 m² (TBA)
- Etasje
- 1
- Byggeår
- 1993
- Energimerking
- D - Gul
- Rom
- 3
- Tomteareal
- 895 m² (eiet)
Om boligen
Lys og trivelig leilighet med praktisk og god planløsning.
De fleste overflater er malte i 2025.
Ny laminat på gulv i stue, kjøkken og gang. Laminat på soverommene fra 2019. Ny, moderne kjøkkeninnredning i sort utførelse fra IKEA. Integrert oppvaskmaskin, platetopp og stekeovn medfølger.
Attraktiv og barnevennlig beliggenhet i et etablert boligområde. Boligen har en svært sentral plassering på Ganddal og med kort vei til det meste en skulle ha behov for som barneskole, ungdomsskole, barnehage, lekeplass, idrettsanlegg og dagligvarebutikk.
Gangavstand på få minutter til flotte turområder som Stokkalandsvatnet, Sandvedparken og Vagleskogen. I tillegg har man sykkelløyper til Rogaland Arboret og Melsheia. Enkel tilkomst til Rv44/motorvei til E39.
De fleste overflater er malte i 2025.
Ny laminat på gulv i stue, kjøkken og gang. Laminat på soverommene fra 2019. Ny, moderne kjøkkeninnredning i sort utførelse fra IKEA. Integrert oppvaskmaskin, platetopp og stekeovn medfølger.
Attraktiv og barnevennlig beliggenhet i et etablert boligområde. Boligen har en svært sentral plassering på Ganddal og med kort vei til det meste en skulle ha behov for som barneskole, ungdomsskole, barnehage, lekeplass, idrettsanlegg og dagligvarebutikk.
Gangavstand på få minutter til flotte turområder som Stokkalandsvatnet, Sandvedparken og Vagleskogen. I tillegg har man sykkelløyper til Rogaland Arboret og Melsheia. Enkel tilkomst til Rv44/motorvei til E39.
NB: Knappen for å vise hele beskrivelsen har kun en visuell effekt.
NB: Knappen for å vise hele beskrivelsen har kun en visuell effekt.
Salgsoppgaven beskriver vesentlig og lovpålagt informasjon om eiendommen
Se komplett salgsoppgaveNyttige lenker
Nærområdet
EiendomsMegler 1 Sandnes
En del av Sparebank 1 Sør-Norge
Annonseinformasjon
| FINN-kode | 449234365 |
|---|---|
| Sist endret | 02. feb. 2026 16:08 |
| Referanse | 2301260007 |
Annonsene kan være mangelfulle i forhold til lovpålagt opplysningsplikt. Før bindende avtale inngås oppfordres interessenter til å innhente komplett informasjon fra meglerforetaket, selger eller utleier.































