Bildegalleri

Velkommen til Nedre Flatåsveg 320 - og dette moderne rekkehuset beliggende i attraktive og rolige omgivelser på Flatåsen.
Flatåsen
Moderne og innholdsrikt enderekkehus over tre plan i familievennlig område. Tre solrike uteplasser. Utvendig bod.
Prisantydning4 690 000 kr
Nøkkelinfo
- Boligtype
- Rekkehus
- Eieform
- Andel
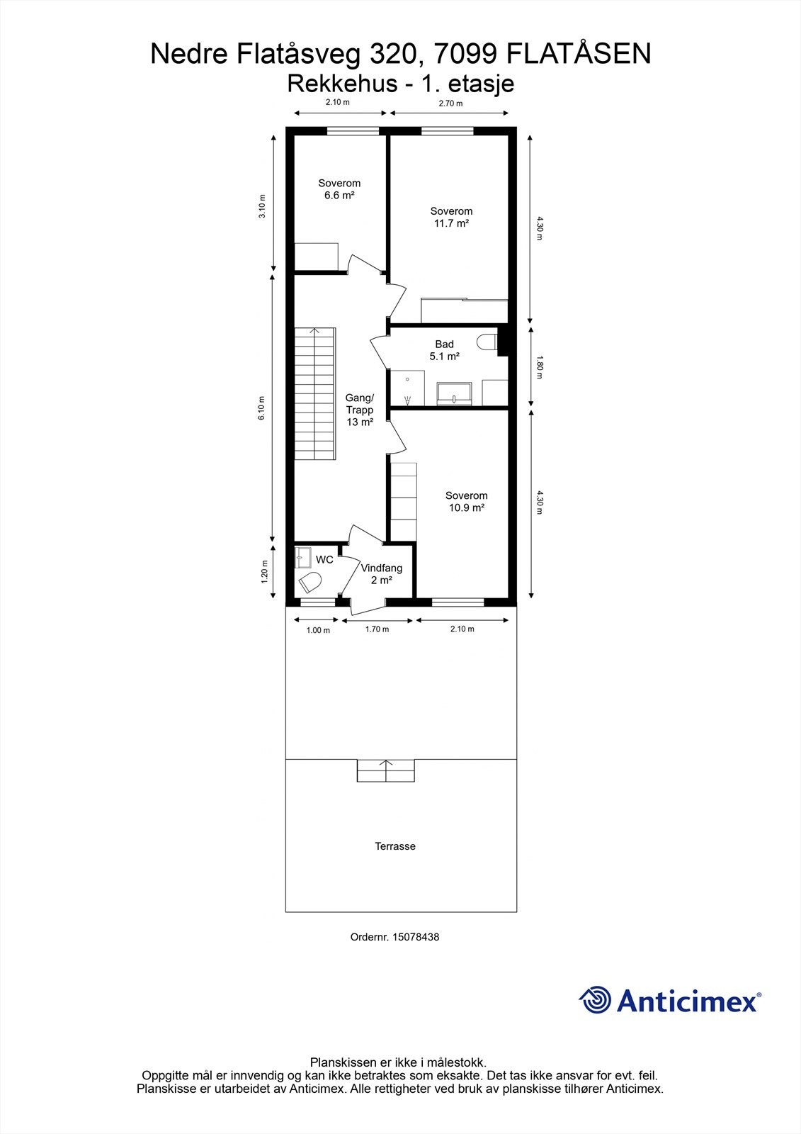
- Soverom
- 3
- Internt bruksareal
- 153 m² (BRA-i)
- Bruksareal
- 157 m²
- Eksternt bruksareal
- 4 m² (BRA-e)
- Balkong/Terrasse
- 67 m² (TBA)
- Etasje
- 3
- Byggeår
- 1980
- Energimerking
- D - Gul
- Rom
- 4
- Tomteareal
- 18 783 m² (eiet)
Fasiliteter
Balkong/Terrasse
Barnevennlig
Offentlig vann/kloakk
Peis/Ildsted
Turterreng
Om boligen
Velkommen til Nedre Flatåsveg 320 - og dette moderne rekkehuset beliggende i attraktive og rolige omgivelser på Flatåsen. Rekkehuset har en fin beliggenhet i feltet med kort vei til en rekke servicetilbud, gode kollektivmuligheter og turforhold.
Verdt å nevne:
- Pent HTH-kjøkken med rikelig skap- og benkeplass.
- Lys og luftig stue med utstrakte vindusflater som sikrer rikelig med naturlig dagslys.
- Pent bad på 5 kvm oppgradert med bla. nye flater, membran, dusjkabinett og innredning i 2026.
- Fem romslige soverom (hvorav tre godkjente).
- Praktisk vaskerom og to boder på til sammen 9,2 kvm i kjelleren.
- Ekstra kjellerstue (ikke søkt godkjent).
- Tre solrike uteplasser, hvorav et har utekjøkken.
- Barnevennlig område med kort vei til bla. skoler, barnehager, butikk og marka.
Verdt å nevne:
- Pent HTH-kjøkken med rikelig skap- og benkeplass.
- Lys og luftig stue med utstrakte vindusflater som sikrer rikelig med naturlig dagslys.
- Pent bad på 5 kvm oppgradert med bla. nye flater, membran, dusjkabinett og innredning i 2026.
- Fem romslige soverom (hvorav tre godkjente).
- Praktisk vaskerom og to boder på til sammen 9,2 kvm i kjelleren.
- Ekstra kjellerstue (ikke søkt godkjent).
- Tre solrike uteplasser, hvorav et har utekjøkken.
- Barnevennlig område med kort vei til bla. skoler, barnehager, butikk og marka.
NB: Knappen for å vise hele beskrivelsen har kun en visuell effekt.
NB: Knappen for å vise hele beskrivelsen har kun en visuell effekt.
Salgsoppgaven beskriver vesentlig og lovpålagt informasjon om eiendommen
Se komplett salgsoppgaveNyttige lenker
Nærområdet
Krogsveen Trondheim
Verdien av en god megler.
Annonseinformasjon
| FINN-kode | 449218160 |
|---|---|
| Sist endret | 02. feb. 2026 14:36 |
| Referanse | KR68.269 |
Annonsene kan være mangelfulle i forhold til lovpålagt opplysningsplikt. Før bindende avtale inngås oppfordres interessenter til å innhente komplett informasjon fra meglerforetaket, selger eller utleier.


































