Bildegalleri

Velkommen til Julianus Holms veg 66, en romslig 2-roms leilighet med sentral beliggenhet på Lade.

Lade

FLOTT 2-ROMS SELVEIERLEILIGHET I 3.ETG - BYGGEÅR 2015 - LAVE FELLESKOSTNADER - BAD OG KJØKKEN TG1 - BALKONG - HEIS

Prisantydning3 350 000 kr
Totalpris
3 434 840 kr
Omkostninger
84 840 kr
Felleskost/mnd.
2 478 kr
Fellesformue
10 454 kr
Formuesverdi
971 703 kr

Nøkkelinfo

Boligtype
Leilighet
Eieform
Eier (Selveier)
Soverom
1
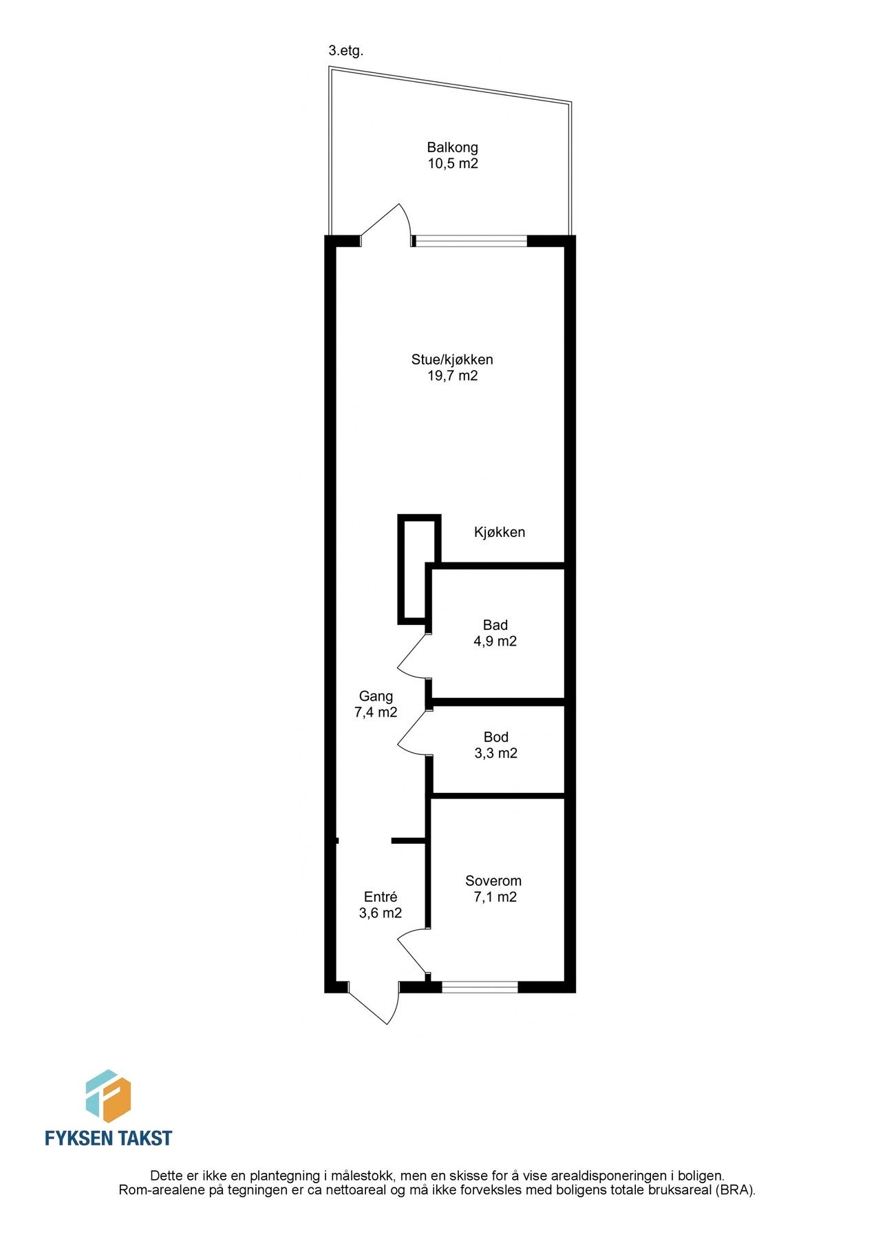
Internt bruksareal
49 m² (BRA-i)
Bruksareal
54 m²
Eksternt bruksareal
5 m² (BRA-e)
Balkong/Terrasse
11 m² (TBA)
Etasje
3
Byggeår
2015
Energimerking
C - Mørkegrønn
Rom
2
Tomteareal
4 721 m² (eiet)

Les mer om bruksareal her

Fasiliteter

Barnevennlig
Balkong/Terrasse
Kabel-TV
Heis
Offentlig vann/kloakk
Parkett
Turterreng
Vaktmester-/vektertjeneste
Sentralt
Bredbåndstilknytning
Moderne
Rolig
Balansert ventilasjon

Visning

tirsdag, 24. februar
15:30 – 16:30
Våre visninger har påmelding. Dette gjør vi for å kunne yte bedre service for våre kunder. Verdifullt for boligkjøper og for oss. Vi anbefaler at salgsoppgaven lastes ned digitalt før visning, og ring oss gjerne på forhånd for spørsmål om boligen. Passer ikke angitt tidspunkt, ta kontakt så finner vi en løsning. Skulle det mot formodning ikke være påmeldte til angitt visningstidspunkt vil ikke visning bli gjennomført.
Visningspåmelding

Om boligen

Velkommen til Julianus Holms veg 66, en praktisk 2-roms selveierleilighet med moderne fasiliteter, god planløsning og solrik beliggenhet.

Boligen ligger pent til i byggets tredje etasje, og i den fremste rekken av sameiet, noe som gjør at boligen oppleves luftig og med lite innsyn. I tillegg vender balkongen mot vest noe som sikrer deg gode solforhold store deler av året.

Leiligheten sto ferdig i 2015 og har med det god standard og moderne fasiliteter som fjernvarme, balansert ventilasjon og heis. I tilstandsrapporten er 18 av 20 punkter vurdert til TG0/TG1 av takstmann. Her kan du med andre ord flytte rett inn.

Dette er leiligheten for deg som ønsker å bo lettvint og sentralt, samtidig som du har fantastiske turområder innen gangavstand.

Kort oppsummert:
- Sentral beliggenhet på Lade med "alt" av servicefasiliteter i umiddelbar nærhet.
- Lave felleskostnader inkl. fjernvarme og TV/internett
- Stor balkong med svært gode solforhold.
- Svært gode kollektivforbindelser.

Salgsoppgaven beskriver vesentlig og lovpålagt informasjon om eiendommen

Se komplett salgsoppgave

Nærområdet

Annonseinformasjon

FINN-kode449218019
Sist endret14. feb. 2026 10:40
Referanse36260015

Rapporter annonse

Annonsene kan være mangelfulle i forhold til lovpålagt opplysningsplikt. Før bindende avtale inngås oppfordres interessenter til å innhente komplett informasjon fra meglerforetaket, selger eller utleier.